Bewertung gespeichert!
Diese Info sehen nur Sie
Kommentar gespeichert!
Fügen Sie eine bewertung bzw. Einen Kommentar zu dieser Anzeige hinzu. Nurfür Sie sichtbar

Wohngrundstück in Zona d´Interior Son Servera

  • 15.000 m2
  • 207 €/m2

Su refugio exclusivo entre naturaleza, mar y elegancia: una finca mallorquina de nueva construcción de categoría superior

Bienvenido a una propiedad que combina tranquilidad, confort y calidad arquitectónica al más alto nivel. Esta espaciosa finca en construcción - una elegante villa de estilo mallorquín - establece nuevos estándares para la vida sofisticada en la isla. Con un total de 7 dormitorios y 7 baños, un concepto de habitaciones bien pensado y un mobiliario que no deja nada que desear, este es un lugar que crea valor a largo plazo y redefine la calidad de vida.

Incluso a primera vista, está claro que este proyecto es único. Un pozo privado, una impresionante piscina infinita de 44 m², un sistema fotovoltaico de alto rendimiento, calefacción por suelo radiante, aire acondicionado y vistas panorámicas sin obstáculos del mar y las montañas crean una calidad de vida que rara vez se encuentra en Mallorca. Gracias a la cómoda conexión por carretera, el acceso no presenta complicaciones y, sin embargo, se disfruta de una privacidad absoluta.

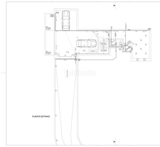
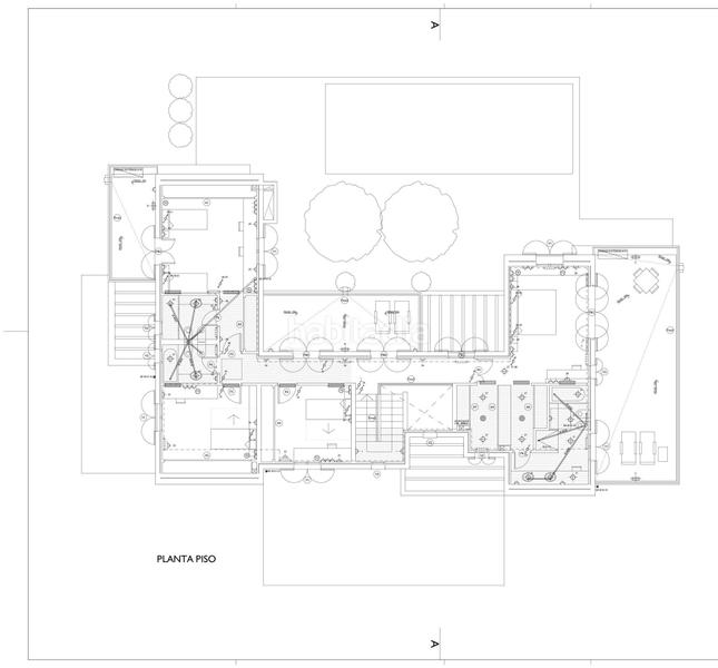
Los aproximadamente 545 m² de superficie habitable se distribuyen en tres niveles, combinando amplitud, luz y una sensación atemporal de espacio:

Sótano:
Un amplio garaje con espacio para varios vehículos, así como habitaciones adicionales que pueden utilizarse de forma flexible como salas de ocio, técnicas o de almacenamiento. La funcionalidad se une al confort.

Planta baja:
Una luminosa zona de estar, comedor y cocina que se integra armoniosamente en el paisaje natural circundante. Grandes ventanales conectan el interior y el exterior para crear una experiencia fluida. La lujosa cocina, totalmente amueblada y equipada, está incluida en el precio - perfecta para cualquiera que aprecie la indulgencia y el diseño.

Primera planta:
La zona de retiro privado con varios vestidores, espaciosas suites dormitorio y tres amplias terrazas que se abren a unas espectaculares y despejadas vistas al mar. Aquí es donde se unen la relajación, la exclusividad y el estilo de vida mediterráneo.

La propiedad se encuentra en una ubicación privilegiada en Son Servera, a pocos minutos del renombrado resort de golf "Pula", varias playas fantásticas y numerosas opciones gastronómicas y de infraestructura. Una ubicación que promete no sólo calidad de vida, sino también estabilidad de valor a largo plazo.

Estamos construyendo esta casa de ensueño a la medida de sus deseos individuales - con materiales seleccionados de alta calidad y los más altos estándares de calidad. La oportunidad ideal para hacer realidad su concepto de vida personal en una de las regiones más codiciadas de Mallorca.

Un proyecto que inspira. Una casa que inspira. Una inversión que perdura.

letzte Änderung

Aufteilung

  • Fläche 15000 m2
Inserat: 54913000000937

Lage

Zona d´Interior

Karte anklicken, um sich darauf zu bewegen
Sollen wir Ihnen mitteilen, wenn ein Inserat wie dieses veröffentlicht wird? Legen Sie Ihre Benachrichtigungen an und wir informieren Sie per E-Mail über neue und geänderte Inserate
 

Kontaktieren Falc Real Estate

Referenz der Anzeige habitaclia/FALC-HeMa-77376:

Die Telefonnummer wird angezeigt after sending your contact to the announcer to attend you.
Die Telefonnummer wird nach Kontakt angezeigt
Sending...