Favorito y comentario
Wohngrundstück in Sóller
Main characteristics
- 668 m2
- 2.919 €/m2
Detailed information
Oportunidad excepcional de desarrollo Tres parcelas con proyecto aprobado para elegantes casas adosadas con piscinas y garajes en
PROYECTO
Ejecución a cargo del inversor o a cargo del vendedor por contrato
En el encantador pueblo de Sóller, en el corazón de la pintoresca Serra de Tramuntana, se encuentra a la venta un proyecto excepcional. Tres parcelas de suelo urbano con licencias aprobadas para construir tres casas adosadas exclusivas, cada una de ellas con cuatro a cinco dormitorios, jardines privados y piscinas climatizadas de agua salada. Situadas a solo cinco minutos a pie de la animada plaza principal, estas propiedades también ofrecen vistas despejadas e impresionantes a las montañas circundantes.
Las tres casas combinan diseño moderno y máximo confort con la belleza natural de Mallorca.
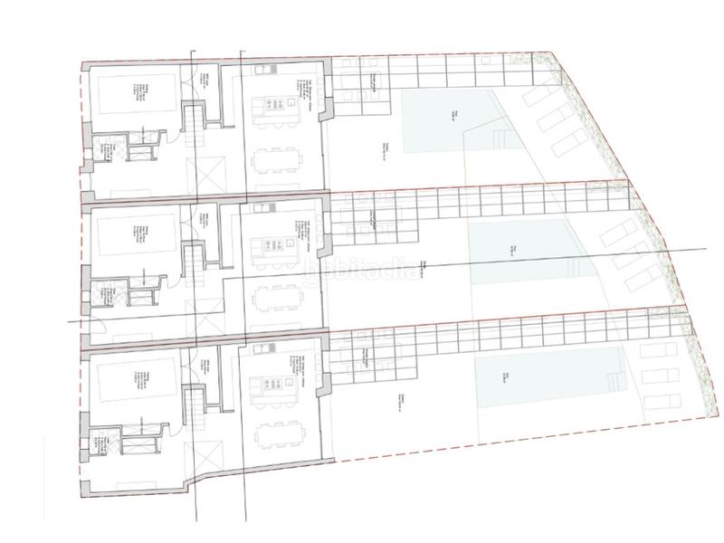
El proyecto incluye la siguiente distribución:
Casa 1 cuenta con una superficie habitable de 326 m2 y un jardín privado de 126 m2 con una piscina climatizada de agua salada. La vivienda ofrece hasta cinco dormitorios, cada uno con baño en suite. La cocina abierta conecta de manera fluida con un amplio salón que brinda vistas espectaculares a las montañas. Un garaje privado y un sótano espacioso completan esta exclusiva propiedad.
Casa 2 se distribuye en tres plantas con una superficie habitable de 329 m2, un jardín privado de 127 m2 y una piscina climatizada de agua salada. Esta casa combina elegancia y funcionalidad, reflejando la belleza natural de Sóller. Incluye cuatro amplios dormitorios con baños en suite, una cocina moderna de concepto abierto y una gran sala de estar con vistas a las montañas. También dispone de un garaje privado y un amplio sótano.
Casa 3 ofrece una superficie habitable de 319 m2 y un jardín de 100 m2 con una piscina climatizada de agua salada, que proporciona una experiencia de vida especialmente armónica. Distribuida en tres plantas, cuenta con cuatro dormitorios con baños en suite, una cocina abierta y una sala de estar elegante con vistas directas a las montañas. Al igual que las otras casas, incluye un garaje privado y un sótano amplio.
UBICACIÓN
Las parcelas están situadas en el centro de Sóller, a solo cinco minutos a pie de la encantadora plaza principal y a menos de diez minutos en bicicleta de la playa. Las casas están flanqueadas por vecinos, pero ofrecen vistas inmejorables a las montañas de la Tramuntana, incluido El Barranc y Puig Major. La proximidad de un arroyo y la ausencia de terrenos edificables en la parte trasera garantizan una sensación de amplitud y exclusividad.
ACERCA DE SÓLLER
Sóller, conocido como el «Valle de las Naranjas», cautiva con sus extensos huertos de cítricos y el encanto auténtico de un pueblo mallorquín. Ubicado en la Serra de Tramuntana, Patrimonio de la Humanidad por la UNESCO, esta región es un paraíso para los amantes de la naturaleza, los senderistas y los ciclistas. La cercanía al Port de Sóller también ofrece acceso a playas y actividades acuáticas.
MERCADO INMOBILIARIO EN EL VALLE DE SÓLLER
El valle de Sóller ha sido durante mucho tiempo una de las zonas más codiciadas de la isla, gracias a su combinación única de montañas, mar, ciudad e historia y tradición mallorquina. Una clientela internacional busca constantemente adquirir una residencia o segunda vivienda en la región. Aunque las casas adosadas aparecen regularmente en el mercado, es raro encontrar propiedades que combinen características tan solicitadas como amplios espacios, garaje privado, piscina y jardín, con vistas y privacidad, a poca distancia del centro del pueblo.
Por lo tanto, estas tres casas adosadas ofrecen una rara oportunidad de inversión para inversores y promotores que deseen invertir en un proyecto ya aprobado con un gran potencial.
En la compra se aplica un IVA del 21 % en lugar del ITP. El precio se refiere al terreno con el proyecto, la ejecución de la construcción no está incluida en el precio. Las obras pueden comenzar de inmediato.
Aviso Legal: Las visualizaciones que se muestran aquí tienen fines ilustrativos únicamente y son representaciones artísticas no vinculantes. Se reserva el derecho a realizar cambios en el diseño, las características y las dimensiones de la propiedad.
#ref:6068
letzte Änderung
Aufteilung
- Fläche 668 m2
Gallery
Lage
