Bewertung gespeichert!
Diese Info sehen nur Sie
Kommentar gespeichert!
Fügen Sie eine bewertung bzw. Einen Kommentar zu dieser Anzeige hinzu. Nurfür Sie sichtbar

Wohngrundstück in Sineu

  • 21.300 m2
  • 16 €/m2

Finca rustica con licencia en Sineu.

- Terreno en Sineu con Licencia.
- Parcela 21.300 m² .
- Posibilidad de luz de gesa y agua de pozo.
- A 5 minutos del pueblo.
- Se puede empezar la construcción inmediatamente.
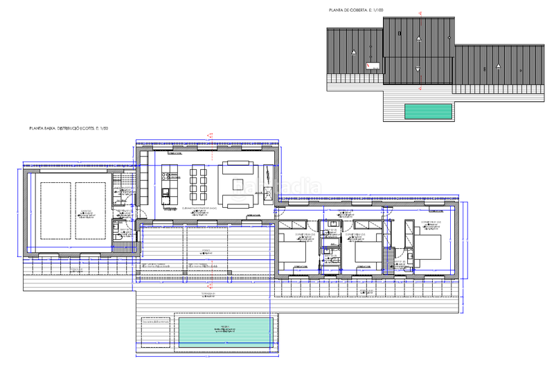
- El proyecto de la vivienda consta de :
• Todo planta baja.
• 3 habitaciones.
• 4 baños.
• Salón/comedor/cocina abierta.
• Porches y terrazas.
• Piscina.

Ponemos a la venta esta maravillosa finca rústica de 21.300 m² en el centro de la isla de Mallorca, en Sineu. La finca cuenta con una licencia para empezar la construcción de forma inmediata de una casa unifamiliar, toda en planta baja de 193 m² . La vivienda se distribuye en; un salón diáfano con chimenea, cocina abierta, 3 dormitorios con un baño en suite cada habitación, 1 baño, lavadero y garaje de dos plaza. En el exterior nos encontramos 38 m² de porches, 93 m² de terrazas, piscina de 15 m² y hermosas vistas al paisaje.

La propiedad completamente cerrada con pared de piedra y vegetación, tiene según estudio geotécnico una vena de agua, no cuenta con suministro eléctrico actualmente.
Sineu es uno de los pueblos más antiguos de Mallorca, es el centro económico y cultural del Pla de Mallorca. Se encuentra situado en el corazón de la isla, con conexión a Palma en 30 minutos y vistas de la Tramuntana y a tan solo 20 minutos en coche de la playa.

Disfrute de la paz y tranquilidad en la casa de tus sueños y viva la vida soñada construyendo raíces. No pierda la oportunidad de pedir mas información o una visita sin compromiso.

Registre Oficial Agents Immobiliaris Illes Balears. Govern de les Illes Balears. NÚMERO DE REGISTRE: GOIBE7630035/24
_____________________________________________________________________________

- Grundstück in Sineu mit Lizenz.
- Grundstück 21.300 m².
- Möglichkeit von Stadtstrom und Brunnenwasser.
- 5 Minuten von der Stadt entfernt.
- Der Bau kann sofort beginnen.
- Das Wohnprojekt besteht aus:
• Alles im Erdgeschoss.
• 3 Schlafzimmer.
• 4 Badezimmer.
• Offenes Wohn-/Esszimmer/Küche.
• Veranden und Terrassen.
• Pool.

Rustikales Anwesen mit Lizenz, Sineu.
Wir bieten dieses wunderschöne, 21.300 m² große, rustikale Anwesen im Zentrum der Insel Mallorca, in Sineu, zum Verkauf an. Das Anwesen verfügt über eine Lizenz zum sofortigen Bau eines Einfamilienhauses, alles im Erdgeschoss von 193 m². Das Haus ist unterteilt in; ein offenes Wohnzimmer mit Kamin, offene Küche, 3 Schlafzimmer jeweils mit eigenem Bad, 1 Badezimmer, Waschküche und Garage mit zwei Stellplätzen. Draußen finden wir 38 m² Veranden, 93 m² Terrassen, einen 15 m² großen Pool und eine wunderschöne Aussicht auf die Landschaft.

Das Grundstück ist komplett mit einer Steinmauer und Bepflanzung umschlossen, verfügt laut einer geotechnischen Studie über eine Wasserader und verfügt derzeit über keinen Stromanschluss.
Sineu ist eine der ältesten Städte Mallorcas und das wirtschaftliche und kulturelle Zentrum von Pla de Mallorca. Es liegt im Herzen der Insel, mit einer Verbindung nach Palma in 30 Minuten und Blick auf die Tramuntana und nur 20 Autominuten vom Strand entfernt.

Genießen Sie den Frieden und die Ruhe in Ihrem Traumhaus und leben Sie Ihr Traumleben, indem Sie Wurzeln schlagen. Verpassen Sie nicht die Gelegenheit, weitere Informationen oder einen unverbindlichen Besuch anzufordern.

letzte Änderung

Aufteilung

  • Fläche 21300 m2
Inserat: 40317000000277

Lage

Karte anklicken, um sich darauf zu bewegen
Sollen wir Ihnen mitteilen, wenn ein Inserat wie dieses veröffentlicht wird? Legen Sie Ihre Benachrichtigungen an und wir informieren Sie per E-Mail über neue und geänderte Inserate
 

Kontaktieren GESTIÓ IMMOBILIÀRIA INTEGRAL

Referenz der Anzeige habitaclia/545. Finca rustica con licencia, Sineu.:

Die Telefonnummer wird angezeigt after sending your contact to the announcer to attend you.
Die Telefonnummer wird nach Kontakt angezeigt
Sending...