Bewertung gespeichert!
Diese Info sehen nur Sie
Kommentar gespeichert!
Fügen Sie eine bewertung bzw. Einen Kommentar zu dieser Anzeige hinzu. Nurfür Sie sichtbar

Wohngrundstück in Colònia de Sant Pere Artà

  • 15.500 m2
  • 194 €/m2

Terreno con proyecto de construcción aprobado y espectaculares vistas panorámicas en Colònia de Sant Pere

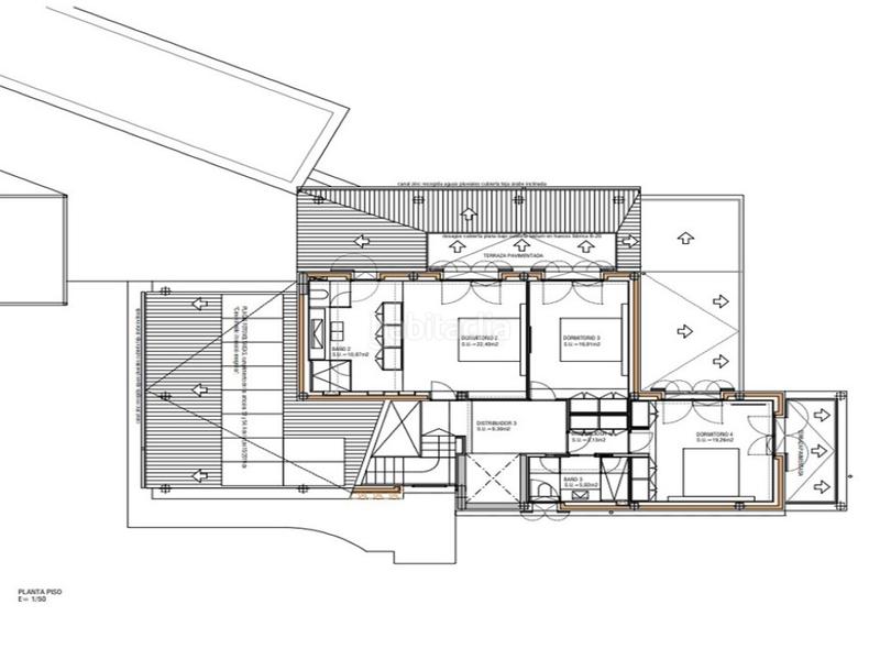
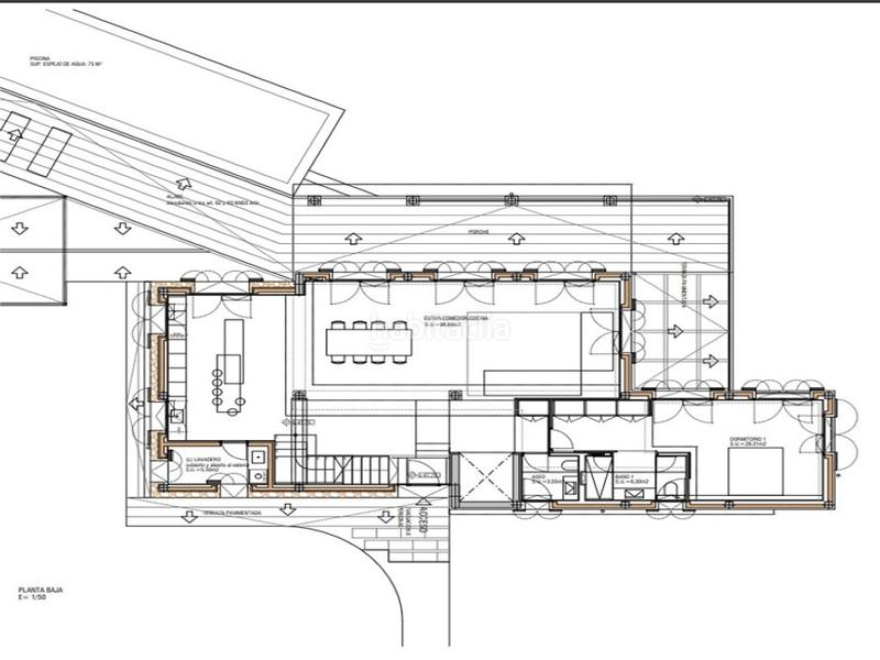
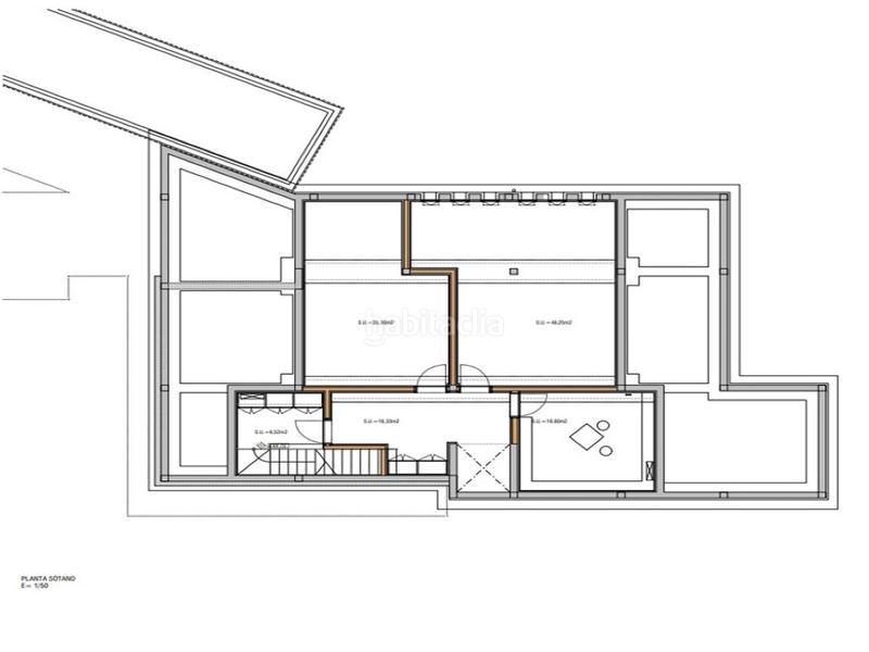
Este solar se encuentra en Colònia de Sant Pere y destaca por su ubicación excepcional y por un proyecto aprobado para la construcción de una finca. La nueva edificación está concebida con vistas espectaculares al mar y a las montañas, combinando un estilo de vida moderno con el entorno natural.

La vivienda se distribuye en tres plantas y se caracteriza por espacios amplios y luminosos que se relacionan directamente con las terrazas. El diseño integra cuatro dormitorios, uno de ellos en la planta baja, lo que garantiza un mayor confort.

Una piscina integrada en el paisaje completa el proyecto y brinda la oportunidad de disfrutar plenamente del estilo de vida mediterráneo. La arquitectura está concebida para unir modernidad y naturaleza en perfecta armonía.

La ubicación ofrece privacidad y tranquilidad sin renunciar a la proximidad de las playas, la naturaleza y todas las comodidades cotidianas. Colònia de Sant Pere conserva su encanto auténtico y constituye un lugar ideal para quienes buscan descanso en un entorno original.

La licencia de construcción ya está concedida, por lo que la obra puede comenzar de inmediato. El precio ofertado corresponde al terreno con proyecto aprobado, no a la ejecución de la vivienda.

Aviso Legal: Las visualizaciones que se muestran aquí tienen fines ilustrativos únicamente y son representaciones artísticas no vinculantes. Se reserva el derecho a realizar cambios en el diseño, las características y las dimensiones de la propiedad.
#ref:6816

letzte Änderung

Aufteilung

  • Fläche 15500 m2
Inserat: 46408000001770

Lage

Colònia de Sant Pere

Karte anklicken, um sich darauf zu bewegen
Sollen wir Ihnen mitteilen, wenn ein Inserat wie dieses veröffentlicht wird? Legen Sie Ihre Benachrichtigungen an und wir informieren Sie per E-Mail über neue und geänderte Inserate
 

Kontaktieren Living Blue Mallorca

Referenz der Anzeige habitaclia/6816:

Die Telefonnummer wird angezeigt after sending your contact to the announcer to attend you.
Die Telefonnummer wird nach Kontakt angezeigt
Sending...