Favorito y comentario
Dachwohnung 81m2 in carrer de sardenya 14 in El Pedró Palamós
Main characteristics
- von 81 m2
- 3 hab.
- 2 Badezimmer
- 7.346 €/m2
Detailed information
ESP:
Descubre la magia de la vida en el corazón del Casco Antiguo de Palamós con nuestra espectacular nueva promoción de obra nueva. Dos imponentes bloques, 31 lujosos apartamentos y 38 plazas de aparcamiento te esperan en este rincón único de la Costa Brava. Inspirados en el estilo mediterráneo, los edificios se visten con colores claros y un diseño minimalista que se integra armoniosamente con el encanto histórico de la ciudad. Todo ello con unos acabados de una inmejorable calidad y un diseño que cuida hasta el último detalle..
Características Principales:
Ubicación Inigualable: Situados en el punto más alto del Casco Antiguo, nuestros edificios proporcionan una agradable sensación de tranquilidad i confort, en la que las viviendas dúplex dispondrán también de unas bonitas vistas a la bahía de Palamós. Con una distribución en forma de L, rodean una elegante zona comunitaria privada con piscina, zonas de sombra y jardines exquisitamente ajardinados.
Espacios Exteriores Únicos: Disfruta del sol mediterráneo durante el día en las amplias terrazas y jardines privativos de los apartamentos en planta baja. Las balconeras deslizantes de pared a pared conectan perfectamente el interior con el exterior, permitiendo que la luz natural y la brisa marina llenen tu hogar.
Diseño Interior Sofisticado: Los apartamentos y dúplex presentan amplios salones con vistas a la zona ajardinada con piscina o al mar, dormitorios dobles de superficie generosa y, en los dúplex, una vista impresionante de la bahía de Palamós y las montañas. Las cubiertas con vigas de madera natural crean una atmósfera única de confort.
Equipamiento de Calidad: Cada vivienda se entrega con una cocina totalmente equipada, incluyendo frigorífico y lavavajillas empotrados, y baños completos con muebles de diseño. La atención a los detalles garantiza que cada espacio sea funcional y elegante.
Aparcamiento y Acceso Conveniente: Amplias plazas de aparcamiento con acceso directo a las viviendas mediante
letzte Änderung
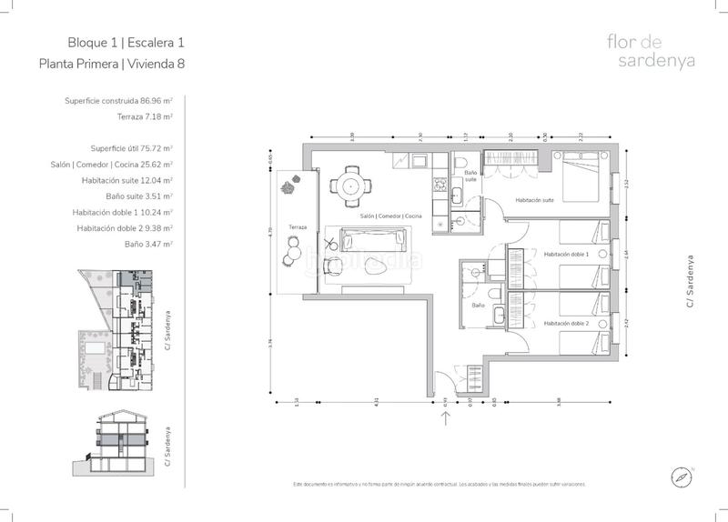
Aufteilung
- 3 Zimmer
- Fläche 81 m2
- Terrasse 12 m2
- 2 Badezimmer
- Küche mit Essplatz
Allgemeine Merkmale
- Heizung
- Ohne parkplatz
- Klimaanlage
- Nummer des Stockwerks 2
Gemeinschaftlich genutzte Austattung
- Fahrstuhl
- Gemeinschaftsschwimmbad
Gallery
Lage
El Pedró Carrer de Sardenya 14
Comparative data
Teil des Neubauprojekts FLOR DE SARDENYA
- Apartamento
- 57 m2
- 1 hab
- 269.000 €
- Anzeige ansehen
- Piso
- 52 m2
- 2 hab
- 354.000 €
- Anzeige ansehen
- Planta baja
- 57 m2
- 2 hab
- 390.000 €
- Anzeige ansehen
- Piso
- 87 m2
- 3 hab
- 480.000 €
- Anzeige ansehen
- Dúplex
- 105 m2
- 3 hab
- 649.000 €
- Anzeige ansehen