Bewertung gespeichert!
Diese Info sehen nur Sie
Kommentar gespeichert!
Fügen Sie eine bewertung bzw. Einen Kommentar zu dieser Anzeige hinzu. Nurfür Sie sichtbar

Zweistöckige wohnung 105m2 in carrer de sardenya 14 in El Pedró Palamós

Carrer de Sardenya 14

  • von 105 m2
  • 3 hab.
  • 3 Badezimmer
  • 6.181 €/m2
FLOR DE SARDENYA
Teil des Neubauprojekts

FLOR DE SARDENYA

Esta promoción tiene 6 tipos de wohnungen Projekt anzeigen

ESP:

Descubre la magia de la vida en el corazón del Casco Antiguo de Palamós con nuestra espectacular nueva promoción de obra nueva. Dos imponentes bloques, 31 lujosos apartamentos y 38 plazas de aparcamiento te esperan en este rincón único de la Costa Brava. Inspirados en el estilo mediterráneo, los edificios se visten con colores claros y un diseño minimalista que se integra armoniosamente con el encanto histórico de la ciudad. Todo ello con unos acabados de una inmejorable calidad y un diseño que cuida hasta el último detalle..



Características Principales:

Ubicación Inigualable: Situados en el punto más alto del Casco Antiguo, nuestros edificios proporcionan una agradable sensación de tranquilidad i confort, en la que las viviendas dúplex dispondrán también de unas bonitas vistas a la bahía de Palamós. Con una distribución en forma de L, rodean una elegante zona comunitaria privada con piscina, zonas de sombra y jardines exquisitamente ajardinados.
Espacios Exteriores Únicos: Disfruta del sol mediterráneo durante el día en las amplias terrazas y jardines privativos de los apartamentos en planta baja. Las balconeras deslizantes de pared a pared conectan perfectamente el interior con el exterior, permitiendo que la luz natural y la brisa marina llenen tu hogar.
Diseño Interior Sofisticado: Los apartamentos y dúplex presentan amplios salones con vistas a la zona ajardinada con piscina o al mar, dormitorios dobles de superficie generosa y, en los dúplex, una vista impresionante de la bahía de Palamós y las montañas. Las cubiertas con vigas de madera natural crean una atmósfera única de confort.
Equipamiento de Calidad: Cada vivienda se entrega con una cocina totalmente equipada, incluyendo frigorífico y lavavajillas empotrados, y baños completos con muebles de diseño. La atención a los detalles garantiza que cada espacio sea funcional y elegante.
Aparcamiento y Acceso Conveniente: Amplias plazas de aparcamiento con acceso directo a las viviendas mediante

letzte Änderung

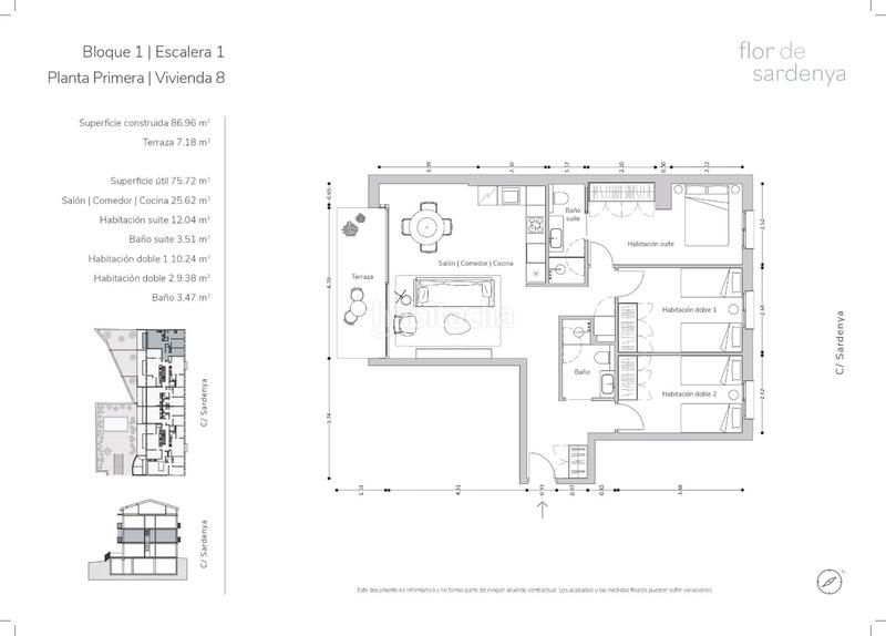
Aufteilung

  • 3 Zimmer
  • Fläche 105 m2
  • Terrasse 15 m2
  • 3 Badezimmer
  • Küche mit Essplatz

Allgemeine Merkmale

  • Heizung
  • Ohne parkplatz
  • Klimaanlage
  • Nummer des Stockwerks 2
  • Energieausweis :
    Consumo:
    A
    1 kW h m2 / año
    Emisiones:
    A
    1 kg CO2 m2 / año

Gemeinschaftlich genutzte Austattung

  • Fahrstuhl
  • Gemeinschaftsschwimmbad
Inserat: 8022004351641

Lage

El Pedró Carrer de Sardenya 14

Karte anklicken, um sich darauf zu bewegen
649.000 € Preis des Inserats
3.613 €/m2€/m2 población
6.181 €/m2€/m2 des Inserats
Entwicklung €/m2 der Zone in Palamós
Sollen wir Ihnen mitteilen, wenn ein Inserat wie dieses veröffentlicht wird? Legen Sie Ihre Benachrichtigungen an und wir informieren Sie per E-Mail über neue und geänderte Inserate
 

Teil des Neubauprojekts FLOR DE SARDENYA

Palamós - Carrer de Sardenya, 14
Promoción FLOR DE SARDENYA Palamós - Carrer de Sardenya, 14 von 269.000 € Projekt anzeigen
Andere Wohnungen dieses Projekts

Kontaktieren NOU HABITAT

Referenz der Anzeige habitaclia/11000.21:

Die Telefonnummer wird angezeigt after sending your contact to the announcer to attend you.
Die Telefonnummer wird nach Kontakt angezeigt
Sending...