Bewertung gespeichert!
Diese Info sehen nur Sie
Kommentar gespeichert!
Fügen Sie eine bewertung bzw. Einen Kommentar zu dieser Anzeige hinzu. Nurfür Sie sichtbar
Günstiges Angebot 45.000 € Benachrichtigen, wenn sinkt
ist gesunken 20.000 €

Umzug geschäftsraum mit heizung in Sant Gervasi - Bonanova Barcelona

  • 180 m2
  • 2 Badezimmer
  • 250,00 €/m2

OFERTA ULTIMA BAJADA DE PRECIO

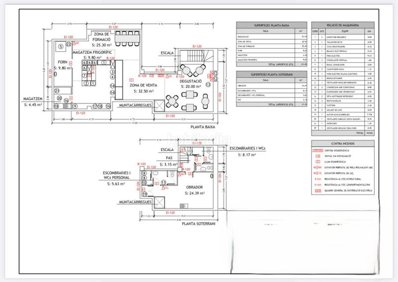
OFERTA PRECIO EXCEPCIONAL Panadería con degustación al lado del mercado San Gervasi zona con muy buena Ubicación Estratégica – Zona de alto tránsito peatonal y excelente visibilidad.

Negociable la cesión 45.000,00€
Alquiler 3.500€
Local de Dos Plantas

Características Generales:
Licencia en vigor de despacho de pan con degustación.
Ideal para combinar panadería tradicional con cafetería o servicio de meriendas.
Tienes 8 mesas y 14 sillas y una mesa de 8 sillas mas grande

Dos plantas bien distribuidas, adaptables a múltiples usos (zona de venta, obrador, almacén, degustación, etc. ).
Dos escaparates muy amplios se podría distribuir dos entradas para tener mas mesas de degustación

Equipamiento incluido:
Hornos profesionales listos para producción diaria.

Neveras y cámaras frigoríficas, perfectas para conservación y exhibición de productos.
Mostradores de exposición y vitrinas para pan, bollería, pasteles y productos gourmet.
Zona de atención al cliente cómoda y acogedora, Bonita decoración
Almacén y espacio de preparación en perfecto estado.
Ideal para:
Panaderos/as que buscan un local llave en mano
Cafetería con degustación
Condiciones:
Traspaso con todo el mobiliario y equipamiento incluido.
Posibilidad de continuar con la actividad desde el primer día, sin necesidad de reformas.
Negocio con clientela fija y buena reputación en la zona.
Visitas concertadas.

letzte Änderung

Aufteilung

  • Fläche 180 m2

Allgemeine Merkmale

  • Heizung
  • möbliert
  • Klimaanlage
  • Energieausweis :
    Befreit
Inserat: 37484000000157

Lage

Sant Gervasi - Bonanova

Karte anklicken, um sich darauf zu bewegen
Sollen wir Ihnen mitteilen, wenn ein Inserat wie dieses veröffentlicht wird? Legen Sie Ihre Benachrichtigungen an und wir informieren Sie per E-Mail über neue und geänderte Inserate
 

Kontaktieren Negocios Bcn - Pisos Bcn

Referenz der Anzeige habitaclia/Panderia Degustacion:

Die Telefonnummer wird angezeigt after sending your contact to the announcer to attend you.
Die Telefonnummer wird nach Kontakt angezeigt
Sending...