Bewertung gespeichert!
Diese Info sehen nur Sie
Kommentar gespeichert!
Fügen Sie eine bewertung bzw. Einen Kommentar zu dieser Anzeige hinzu. Nurfür Sie sichtbar

Miete haus mit heizung parking in Can Girona - Terramar - Vinyet Sitges

  • 800 m2
  • 7 hab.
  • 7 Badezimmer
  • 22,50 €/m2

Casa en alquiler en Can Girona

EXCLUSIVA VIVIENDA SIN AMUEBLAR A ESTRENAR DE 7 HABITACIONES EN CAN GIRONA (SITGES)

¡¡¡DISPONIBLE YA PARA CONTRATOS DE LARGA DURACIÓN!!!!

Ubicada en la prestigiosa y segura urbanización de Can Girona, esta imponente casa de tres plantas sobre una parcela de 1.640m2, 800m2 construidos y 590m2 útiles, ofrece una combinación única de amplitud, diseño moderno y privacidad, rodeada de naturaleza y con vistas totales al mar, al campo de golf y a la maravillosa Sitges que estará disponible para contratos de larga duración a primeros de septiembre.

Distribución y características principales:

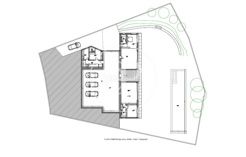
Planta principal:

Impresionante hall de entrada de techos altos de microcemento que distribuye las zonas de día: Gran salón-comedor de 80m2 con ventanales de suelo a techo que inundan el espacio de luz natural y se abren a una terraza de 177m2 con vistas al mar Mediterráneo más una habitación doble a modo de servicio o para invitados.

Cocina abierta de estilo minimalista con electrodomésticos de alta gama, con acceso directo a la terraza y escaleras centrales al jardín.

Planta superior:

Cuatro amplias habitaciones en suite, todas exteriores, con armarios y salida a la terraza con unas vistas despejadas y maravillosas al mar y con gran luminosidad en cada estancia.

Planta sótano:

Dos habitaciones adicionales ideales tipo estudio y en suite que darán independencia a los invitados.

Zona de aguas, trastero y parking para hasta siete coches

Zona exterior:

Jardín privado con zonas de vegetación mediterránea.

Piscina de diseño rectangular, ideal para el disfrute en verano.

Parcela completamente vallada que garantiza privacidad y seguridad.

Extras:

Garaje cerrado con capacidad para 7 coches.
Calefacción por suelo radiante y aire acondicionado por conductos.
Vivienda sin amueblar, ideal para personalizar al gusto.
Los suministros de agua, luz, internet y alarma se pagan aparte.
Los servicios de mantenimiento de piscina y jardín están incluidos en el precio.

Esta propiedad es perfecta para familias que buscan una residencia exclusiva, espaciosa y lista para ser adaptada a su estilo de vida en uno de los entornos más codiciados del Mediterráneo.

¡No puedes dejar de concertar una visita para visitar y enamorarte de esta exclusiva propiedad!
* En cumplimiento de la Ley 12/2023 y la Llei 18/2007 informamos que:
Respecto a la presente propiedad no existe certificado informativo estatal de referencia de precios de alquiler
La presente propiedad tiene la consideración de suntuaria por razón de superficie y/o renta, y por ello de conformidad a la LAU no es de aplicación el índice estatal de referencia de precios de alquiler.
Ref. AB2507080

letzte Änderung

Información del precio

  • Precio alquiler: 18.000 €
  • Índice Alquiler: Vom Inserenten nicht informiert / trifft nicht zu

Aufteilung

  • 7 Zimmer
  • Fläche 800 m2
  • 7 Badezimmer
  • Abstellraum

Allgemeine Merkmale

  • Heizung
  • Parkplatz
  • Klimaanlage
  • Baujahr 2025
  • Energieausweis :
    Consumo:
    A
    100 kW h m2 / año
    Emisiones:
    A
    10 kg CO2 m2 / año
Inserat: 4737003825625

Lage

Can Girona - Terramar - Vinyet Carrer del Molí

Karte anklicken, um sich darauf zu bewegen
18.000 € Preis des Inserats
23,21 €/m2€/m2 población
22,50 €/m2€/m2 des Inserats
3% billiger als Durchschnitt*
Entwicklung €/m2 der Zone in Sitges
Sollen wir Ihnen mitteilen, wenn ein Inserat wie dieses veröffentlicht wird? Legen Sie Ihre Benachrichtigungen an und wir informieren Sie per E-Mail über neue und geänderte Inserate
 

Kontaktieren APROPERTIES REAL ESTATE BARCELONA Nº Aicat 6388

Referenz der Anzeige habitaclia/AB2507080:

Die Telefonnummer wird angezeigt after sending your contact to the announcer to attend you.
Die Telefonnummer wird nach Kontakt angezeigt
Sending...