Favorito y comentario
Miete geschäftsraum in Guinardó Barcelona
Main characteristics
- 105 m2
- 16,83 €/m2
Detailed information
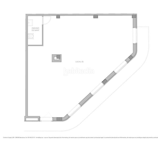
Local comercial en alquiler
Dos locales comerciales en alquiler, cuentan con un amplio escaparate y acceso para personas con movilidad reducida desde la calle.
Los locales se caracterizan por ser luminosos, con techos altos, totalmente diáfanos y entregado en rústico con previsión de instalaciones.
Ambos locales tienen salida de humo.
Se encuentran ubicados en una zona de gran actividad comercial y social. Está situada cerca de la intersección con Passeig de Maragall y la ronda del Guinardó, lo que facilita el acceso a otras áreas de la ciudad. En cuanto a las opciones de transporte público, la zona está bien comunicada, con la estación de metro Maragall cerca, la cual sirve a las líneas L4 y L5. También cabe mencionar que en la zona de Varsovia se encuentran varias paradas de bus.
letzte Änderung
Aufteilung
- Fläche 105 m2
Allgemeine Merkmale
- Baujahr 2000
Gallery
Lage
Guinardó Passeig de Maragall
