Bewertung gespeichert!
Diese Info sehen nur Sie
Kommentar gespeichert!
Fügen Sie eine bewertung bzw. Einen Kommentar zu dieser Anzeige hinzu. Nurfür Sie sichtbar

Miete fabrikhalle in número 3 de la zona franca 1 in Barcelona

  • 1.766 m2
  • 1 Badezimmer
  • 8,25 €/m2

Nave Industrial en Alquiler Zona Franca

La nave se encuentra situada el Polígono Industrial de la Zona Franca, su ubicación es privilegiada no solo por el fácil acceso a carreteras y autopistas, sino también por estar a 7km del aeropuerto, a 100m del puerto, y a 200m de la gran estación ferroviaria de mercancía.

Cuenta con fácil acceso desde la autovía C-31 y una buena comunicación con transporte público como las líneas L9 y L10 de metro.

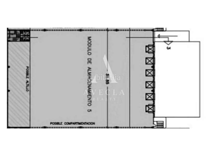
DESGLOSE DE SUPERFICIE:
Planta Baja: 1.528, 80m²
Planta altillo: 237,30m²
Altura: 11m
Superficie Total: 1.766, 10m²

CARACTERÍSTICAS:
Módulo diáfano de 48x31,85m
6 muelles a 1,10m de altura con rampa niveladora.
1 rampa acceso vehículos
Dotado de equipos de detección y extinción de incendios.
Instalación de Exutorios y Sprinklers
Servicios Completos
Iluminación LED en oficina y nave
Oficina equipada.
Acceso directo a Rondas.

UBICACIÓN:
ZAL Port Barcelona es una plataforma logística ubicada dentro del Puerto de Barcelona, uno de los enclaves más importantes del Corredor del Mediterráneo, y está a tan solo 2km del aeropuerto y a 10 minutos del centro de la ciudad.
Comunicaciones:
Acceso directo desde Ronda Litoral (B-10) salida 17-18A.
Bus: 23 desde Plaza España, conexión con las líneas 1 y 3 de metro.
Metro: L9 parada Parc Logístic.

letzte Änderung

Aufteilung

  • Fläche 1766 m2
Inserat: 28314004370276

Lage

Zona Franca - Port Número 3 de la Zona Franca 1

Karte anklicken, um sich darauf zu bewegen
Sollen wir Ihnen mitteilen, wenn ein Inserat wie dieses veröffentlicht wird? Legen Sie Ihre Benachrichtigungen an und wir informieren Sie per E-Mail über neue und geänderte Inserate
 

Kontaktieren AVECLA REALTY

Referenz der Anzeige habitaclia/11102:

Die Telefonnummer wird angezeigt after sending your contact to the announcer to attend you.
Die Telefonnummer wird nach Kontakt angezeigt
Sending...