Favorito y comentario
Miete chalet mit pool in El Faro Cullera
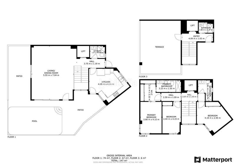
Main characteristics
- 350 m2
- 3 hab.
- 4 Badezimmer
- 12,86 €/m2
Detailed information
IMPRESIONANTE VILLA CON LICENCIA TURÍSTICA, CON UN RENDIMIENTO ANUAL DEL 5% AL 6% SOLO CON ALQUILER DE VERANO.
Si buscas impresionantes vistas panorámicas al Mar, descansar y disfrutar en familia o con amigos has encontrado una excelente opción. Esta Villa de 200 m2 útiles está situada en un lugar inmejorable con hermosas vistas al mar.
La Villa está en el complejo residencial Monte azul, para acceder a la villa y al garaje es necesario primero acceder por el portón del complejo (por medio de un mando), acceso privado y muy seguro. Cuenta con todas las comodidades. Una gran terraza de 45 m2 con hamacas, sofá-cama estilo chill-out con césped artificial de alta calidad, un baño completo totalmente nuevo, 3 dormitorios grandes (2 dormitorios con cama queen y un dormitorio con 3 camas individuales, habitaciones con grandes armarios), dos baños completos que dan servicio a las habitaciones. Un gran salón comedor con un sofá cama extra grande.
Una segunda terraza con impresionantes vistas al mar, piscina privada Infinity, zona de comedor con barbacoa para una maravillosa cena, una amplia cocina totalmente equipada de electrodomésticos.
letzte Änderung
Aufteilung
- 3 Zimmer
- Fläche 350 m2
- Gelände 250 m2
- 4 Badezimmer
- Abstellraum
Allgemeine Merkmale
- Klimaanlage
- Baujahr 2010
Gemeinschaftlich genutzte Austattung
- Gemeinschaftsschwimmbad
Gallery
Lage
El Faro Calle de la Serra d'Espadà
