Bewertung gespeichert!
Diese Info sehen nur Sie
Kommentar gespeichert!
Fügen Sie eine bewertung bzw. Einen Kommentar zu dieser Anzeige hinzu. Nurfür Sie sichtbar

Miete büro in Zona Industrial Tres Cantos

  • 1.010 m2
  • 5,94 €/m2

WGI INMOBILIARIA alquila en exclusiva EDIFICIO en ZONA CONSOLIDADA con PARCELA de 2.489 m2.

Ubicado en una de las zonas más ESTRATÉGICAS Y CONSOLIDADAS de Tres Cantos, el edificio situado en CALLE FRAGUA 21 representa una OPORTUNIDAD ÚNICA EN ALQUILER. Se trata de un inmueble singular por su GRAN DIMENSIÓN CONSTRUIDA, su VERSATILIDAD DE USOS y, especialmente, por contar con una PARCELA PRIVADA DE 2.489 M², algo EXCEPCIONAL EN EL ENTORNO URBANO del municipio.

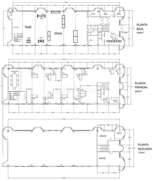
El edificio dispone de una SUPERFICIE CONSTRUIDA TOTAL DE 1.200 M², distribuidos en varias plantas y espacios diferenciados. En la PLANTA BAJA se encuentran 340 M² DE USO INDUSTRIAL, complementados por otros 340 M² EN EL ENTRESUELO, también destinados a actividad industrial. A esto se suman TRES PLANTAS DE OFICINAS con superficies de 108 M², 110 M² Y 110 M², lo que permite una clara separación entre áreas operativas y administrativas. Además, cuenta con 192 M² DE SOPORTALES, que aportan valor añadido como zona cubierta de acceso o uso auxiliar.

La AMPLIA PARCELA EXTERIOR es uno de los principales activos del inmueble. Su extensión permite múltiples usos: APARCAMIENTO PRIVADO, ZONAS DE CARGA Y DESCARGA, PATIOS FUNCIONALES O ÁREAS VERDES, e incluso la posibilidad de AMPLIACIONES O INSTALACIONES AUXILIARES. Esta característica lo convierte en el ÚNICO EDIFICIO DE LA ZONA CON UNA SUPERFICIE EXTERIOR TAN AMPLIA Y APROVECHABLE, ideal para empresas que requieren ESPACIO LOGÍSTICO o desean ofrecer COMODIDAD ADICIONAL a empleados y visitantes.

Gracias a su ESTRUCTURA POLIVALENTE, el edificio es apto para una amplia variedad de proyectos: SEDES CORPORATIVAS, CENTROS DE FORMACIÓN, COWORKING, CLÍNICAS, LABORATORIOS, CENTROS TECNOLÓGICOS O ACTIVIDADES INDUSTRIALES LIGERAS. Su diseño permite una ADAPTACIÓN FLEXIBLE a las necesidades de cada empresa, con ACCESOS INDEPENDIENTES, BUENA ILUMINACIÓN NATURAL y DISTRIBUCIÓN EFICIENTE.

En cuanto a su entorno, el inmueble se encuentra rodeado de COMERCIOS, SERVICIOS Y EQUIPAMIENTOS URBANOS. A pocos minutos a pie se puede acceder a SUPERMERCADOS, RESTAURANTES, CAFETERÍAS, FARMACIAS, BANCOS Y CENTROS DEPORTIVOS, lo que garantiza una excelente CALIDAD DE VIDA LABORAL y comodidad para el personal.

La CONECTIVIDAD es otro de sus puntos fuertes. El edificio está situado a escasa distancia de la ESTACIÓN DE CERCANÍAS DE TRES CANTOS (LÍNEA C-4), con conexión directa a MADRID. Además, cuenta con acceso inmediato a la M-607, lo que facilita la movilidad hacia la capital y otras zonas del norte de la Comunidad de Madrid. También dispone de LÍNEAS DE AUTOBÚS URBANO E INTERURBANO, lo que refuerza su ACCESIBILIDAD.

En resumen, este edificio en CALLE FRAGUA 21 ofrece una combinación excepcional de ESPACIO, FUNCIONALIDAD, VISIBILIDAD Y UBICACIÓN, siendo una opción ideal para empresas que buscan crecer en un entorno DINÁMICO, BIEN COMUNICADO Y CON PROYECCIÓN. Su GRAN DIMENSIÓN, POLIVALENCIA y PARCELA EXTERIOR lo convierten en una propiedad DIFÍCIL DE IGUALAR en el mercado de alquiler de Tres Cantos.

letzte Änderung

Aufteilung

  • Fläche 1010 m2
  • Abstellraum

Allgemeine Merkmale

  • Baujahr 1987
  • Energieausweis :
    Consumo:
    G
    999 kW h m2 / año
    Emisiones:
    G
    999 kg CO2 m2 / año
Inserat: 16356000001045

Lage

Zona Industrial Avenida artesanos

Karte anklicken, um sich darauf zu bewegen
Sollen wir Ihnen mitteilen, wenn ein Inserat wie dieses veröffentlicht wird? Legen Sie Ihre Benachrichtigungen an und wir informieren Sie per E-Mail über neue und geänderte Inserate
 

Kontaktieren WGI Inmobiliaria

Referenz der Anzeige habitaclia/WGI00975:

Die Telefonnummer wird angezeigt after sending your contact to the announcer to attend you.
Die Telefonnummer wird nach Kontakt angezeigt
Sending...