Bewertung gespeichert!
Diese Info sehen nur Sie
Kommentar gespeichert!
Fügen Sie eine bewertung bzw. Einen Kommentar zu dieser Anzeige hinzu. Nurfür Sie sichtbar

Miete büro mit heizung in La Nova Esquerra de l´Eixample Barcelona

  • 654 m2
  • 16,81 €/m2

Estrene su oficina en la calle Calabria

Referencia 12d11910

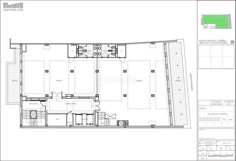
Oficina dúplex con varias terrazas, ubicada en edificio de oficinas reformado en su totalidad, situado en el Eixample de Barcelonés, en zona con infinidad de servicios y excelentes comunicaciones. A pocos metros de Sants Estación y Plaza España.

LA OFICINA:
¦ Abundante luz natural.
¦ Acabados de primera calidad.
¦ Dispone de varias terrazas de hasta 118,85m².
¦ Diáfana con divisiones.
¦ Falso techo.
¦ Luminarias empotradas.
¦ Ventanas practicables.
¦ Pavimento de parquet.
¦ Canalizaciones perimetrales de cableado.
¦ Climatización frío/calor independiente por plantas.
¦ Office y aseos privativos.
¦ Gastos de comunidad 1.476,27 €/mes (2,26 €/m²/mes).
¦ IBI 718,23 €/mes (1,10 €/m²/mes).

EL EDIFICIO:
¦ Edificio reformado en su totalidad.
¦ Fibra óptica.
¦ Servicio conserjería 12h.
¦ 3 ascensores.
¦ Sin barreras arquitectónicas.
¦ Salida de evacuación.

COMUNICACIONES:
¦ Bus: 109, 141, H10, V9
¦ Metro: L1, Rocafort / L3, L5 Sants Estació
¦ Renfe: Sants Estació
¦ FGC: Plaça España

Para visitas u otras oficinas similares:
-t.
-
[IW]

letzte Änderung

Aufteilung

  • Fläche 654 m2
  • Terrasse 119 m2

Allgemeine Merkmale

  • Heizung
  • Klimaanlage
  • Baujahr 1960
  • Energieausweis :
    Consumo:
    G
    999 kW h m2 / año
    Emisiones:
    G
    999 kg CO2 m2 / año

Gemeinschaftlich genutzte Austattung

  • Fahrstuhl
Inserat: 10944000010032

Lage

La Nova Esquerra de l´Eixample calabria

Karte anklicken, um sich darauf zu bewegen
Sollen wir Ihnen mitteilen, wenn ein Inserat wie dieses veröffentlicht wird? Legen Sie Ihre Benachrichtigungen an und wir informieren Sie per E-Mail über neue und geänderte Inserate
 

Kontaktieren CAPOLRA

Referenz der Anzeige habitaclia/12d11910:

Die Telefonnummer wird angezeigt after sending your contact to the announcer to attend you.
Die Telefonnummer wird nach Kontakt angezeigt
Sending...