Virtueller Besuch
Bewertung gespeichert!
Diese Info sehen nur Sie
Kommentar gespeichert!
Fügen Sie eine bewertung bzw. Einen Kommentar zu dieser Anzeige hinzu. Nurfür Sie sichtbar

Miete büro mit heizung in Dreta de l´Eixample Barcelona

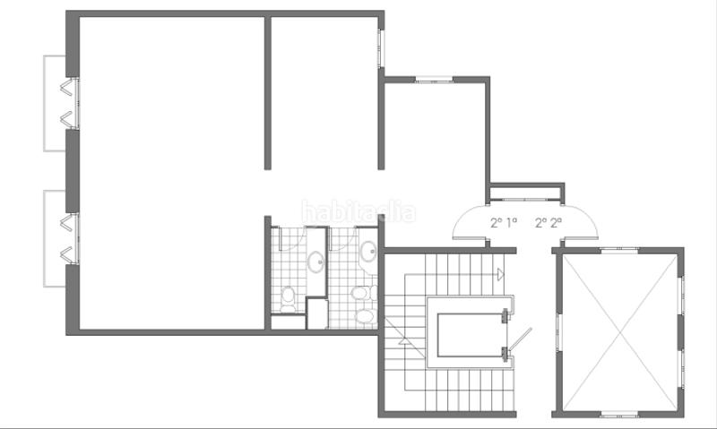
  • 80 m2
  • 2 Badezimmer
  • 17,50 €/m2

Oficina en alquiler en calle Bruc

Referencia OFI_169

Edificio clásico de oficinas ubicado en el barrio del Eixample Muy cercano a Paseo de Gracia y Plaza Catalunya. En zona plenamente consolidada con todo tipo de servicios.
Oficina en alquiler en Eixample Dret.
Oficinas de buena calidad, instalación perimetral y rack informático. Exteriores a patio de manzana.
Espacio dividido con tabiquería de obra configurando 1 gran espacio abierto y 1 despacho.

CARACTERISTICAS
- Servicio conserjería
- Climatización individualizada frío/calor
- Canaleta perimetral con Rack
- Instalación antena TDT y fibra óptica en el edificio (COLT, MOVISTAR, ONO)
- Alarma en el interior de la oficina. Cámaras de video vigilancia 24h en las zonas comunes del edificio.
- Baños privativos
- Gastos comunitarios 140,42€/mes (incluye comunidad, IBI, seguro contenente y R.C. y mantenimiento clima)

TRANSPORTE
- Metro: L1, L2, L3 y L4
- RENFE
- Autobuses
- FGC

¿Listo para dar el siguiente paso?
Agenda tu visita hoy mismo.
En Estrada & Partners lo hacemos fácil: contáctanos y nos encargamos de todo.

letzte Änderung

Aufteilung

  • Fläche 80 m2

Allgemeine Merkmale

  • Heizung
  • Ohne parkplatz
  • Ohne furnish
  • Klimaanlage
  • Energieausweis :
    Consumo:
    B
    40 kW h m2 / año
    Emisiones:
    B
    40 kg CO2 m2 / año

Gemeinschaftlich genutzte Austattung

  • Fahrstuhl
Inserat: 4798004413072

Lage

Dreta de l´Eixample Carrer del Bruc

Karte anklicken, um sich darauf zu bewegen
Sollen wir Ihnen mitteilen, wenn ein Inserat wie dieses veröffentlicht wird? Legen Sie Ihre Benachrichtigungen an und wir informieren Sie per E-Mail über neue und geänderte Inserate
 

Kontaktieren Estrada & Partners Asesores Inmobiliarios

Referenz der Anzeige habitaclia/OFI_169:

Die Telefonnummer wird angezeigt after sending your contact to the announcer to attend you.
Die Telefonnummer wird nach Kontakt angezeigt
Sending...