Bewertung gespeichert!
Diese Info sehen nur Sie
Kommentar gespeichert!
Fügen Sie eine bewertung bzw. Einen Kommentar zu dieser Anzeige hinzu. Nurfür Sie sichtbar

Miete büro mit heizung in Dreta de l´Eixample Barcelona

  • 689 m2
  • 12,36 €/m2

OFICINA EN ZONA PRIME.
Ubicada en zona prime, en el corazón del Eixample, punto neurálgico de interés comercial, turístico y de negocios.
Edificio modernista en perfecto estado de conservación.

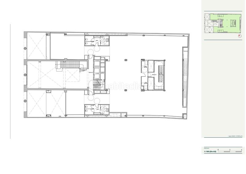
Oficina de 689m² en alquiler en Rambla Catalunya.
Primera planta real en finca exclusiva de oficinas.

Dispone de sistema de climatización frío.-calor por conductos, iluminación Led suspendida y suelos de parquet, ventanas practicables.
Tiene seis aseos, dos de ellos adaptados.

La oficina ha sido rehabilitada y está para estrenar.
Dispone de servicio de conserjería 24hs y tres ascensores.

Posibilidad de alquilar plazas de parking en la misma planta.
Edificio con terraza&rooftop en la azotea y con certificación Leed Gold en términos de eficiencia energética.

Gastos de comunidad: a concretar importe a cargo del arrendatario.
IBI: a concretar importe a cargo del arrendatario.

Fianzas: 2 meses según LAU.
Garantía adicional: a concretar según solvencia que se presente.

Transporte público: paradas de metro Passeig de Gracia y parada de metro y FGC Plaça Catalunya. Amplia red de autobuses.

letzte Änderung

Aufteilung

  • Fläche 689 m2

Allgemeine Merkmale

  • Heizung
  • Ohne parkplatz
  • Ohne furnish
  • Klimaanlage
  • Nummer des Stockwerks 1
  • Energieausweis :
    Consumo:
    A
    3 kW h m2 / año
    Emisiones:
    A
    10 kg CO2 m2 / año

Gemeinschaftlich genutzte Austattung

  • Fahrstuhl
Inserat: 10867004441655

Lage

Dreta de l´Eixample Rambla de Catalunya

Karte anklicken, um sich darauf zu bewegen
Sollen wir Ihnen mitteilen, wenn ein Inserat wie dieses veröffentlicht wird? Legen Sie Ihre Benachrichtigungen an und wir informieren Sie per E-Mail über neue und geänderte Inserate
 

Kontaktieren MULTIESPAI

Referenz der Anzeige habitaclia/OFI5266A:

Die Telefonnummer wird angezeigt after sending your contact to the announcer to attend you.
Die Telefonnummer wird nach Kontakt angezeigt
Sending...