Bewertung gespeichert!
Diese Info sehen nur Sie
Kommentar gespeichert!
Fügen Sie eine bewertung bzw. Einen Kommentar zu dieser Anzeige hinzu. Nurfür Sie sichtbar

Zweistöckige wohnung mit heizung pool in Norte Majadahonda

  • 150 m2
  • 4 hab.
  • 2 Badezimmer
  • 5.733 €/m2

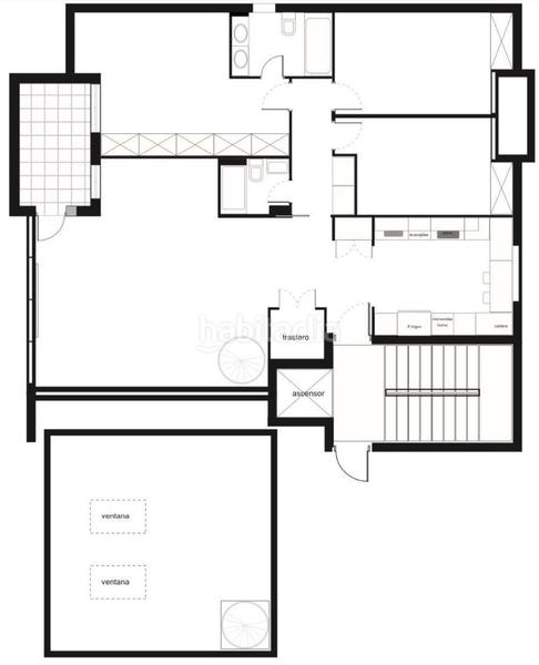
HOGARES MAJADAHONDA CENTRO vende en exclusiva maravilloso dúplex de 150 m² en Majadahonda, recientemente reformado y listo para entrar a vivir. La vivienda cuenta con orientación sur (luz natural todo el día), está en la última planta y cuenta con un amplio trastero de 35m2 incorporado mediante una escalera de caracol. Cuenta con las siguientes características:

*Planta baja: *
- Totalmente reformada, incluyendo nuevas ventanas Kommerling.
- Renovación completa de tuberías de agua, gas y sistema de calefacción.
- Aire acondicionado por conductos nuevo, con control independiente por habitaciones.
- Aislamiento completo realizado durante la reforma.
- Control individual en cada habitación tanto de la calefacción como del aire acondicionado.
- Terraza amplia en la que cabe una mesa para 6 personas.
- Amplio salón.
- Cocina completamente reformada y equipada con:
Nevera americana y todos los electrodomésticos.
Amplio espacio de almacenaje y despensa.
Barra para dos personas.
- Dormitorio principal en suite con una pared de 5 armarios de 1 metro cada uno, todos con iluminación.
- Dos dormitorios adicionales con baño en el pasillo.
- Gran capacidad de almacenaje: Armario en el pasillo para ropa blanca, armario en la entrada y armario trastero de aprox 3m2.

*Segunda planta: *
- Habitación diáfana sin reformar, con preinstalación de agua, electricidad, calefacción y desagüe, permitiendo la posibilidad de añadir un baño.
- Ventanas Velux en la planta alta.

*Ubicación: *
- Muy buena ubicación en una zona tranquila.
- Rápido acceso a la A6 con acceso directo al carril Bus-VAO.
- Con fácil acceso a pie a:
Centro de salud público y privado.
Colegios
Gran variedad de comercio y servicios en la Gran Vía de Majadahonda (bancos, restaurantes, pequeño comercio, panaderías, peluquerías, cafeterías.. . )
Gimnasio, centro de CrossFit, de pilates…
Farmacia.
Parque del Cerro del Aire.
Supercor, Ahorramas y el nuevo BM a menos de 3 minutos andando.
Centro de Salud Cerro del Aire
Parada de autobús a Moncloa a 1 minuto andando. Autobuses y 652.
Cercanías Renfe a 18 minutos andando.

*Urbanización: *
Urbanización cerrada con múltiples servicios:
- Portero.
- Pista de tenis.
- Piscina (y piscina infantil adicional) que va a ser totalmente reformada este año.
- Parque infantil.
- Amplias zonas verdes muy cuidadas.
- Mini pista de fútbol y mini cancha de baloncesto.

Financiación al 100%.

letzte Änderung

Aufteilung

  • 4 Zimmer
  • Fläche 150 m2
  • 2 Badezimmer
  • Küche mit Essplatz: No
  • Abstellraum

Allgemeine Merkmale

  • Heizung
  • Ohne parkplatz
  • Klimaanlage
  • Nummer des Stockwerks 3
  • Baujahr 1975
  • Energieausweis :
    Consumo:
    E
    20 kW h m2 / año
    Emisiones:
    E
    200 kg CO2 m2 / año

Gemeinschaftlich genutzte Austattung

  • Fahrstuhl
  • Gemeinschaftsschwimmbad
  • Equipamiento deportivo
Inserat: 42771000000071

Lage

Norte Calle Panamá

Karte anklicken, um sich darauf zu bewegen
860.000 € Preis des Inserats
4.591 €/m2€/m2 población
5.733 €/m2€/m2 des Inserats
Wie viel würdest Du bezahlen?
Entwicklung €/m2 der Zone in Majadahonda
Sollen wir Ihnen mitteilen, wenn ein Inserat wie dieses veröffentlicht wird? Legen Sie Ihre Benachrichtigungen an und wir informieren Sie per E-Mail über neue und geänderte Inserate
 

Kontaktieren Hogares Majadahonda Centro

Referenz der Anzeige habitaclia/MC33-25:

Die Telefonnummer wird angezeigt after sending your contact to the announcer to attend you.
Die Telefonnummer wird nach Kontakt angezeigt
Sending...