Favorito y comentario
Wohngrundstück in Vallvidrera - Tibidabo - Les Planes Barcelona
Main characteristics
- 389 m2
- 643 €/m2
Detailed information
TERRENO CON PROYECTO Y LICENCIA APROBADA, EN VENTA EN CALLE DE MARCO POLO
Desde Aproperties tenemos el agrado de ofrecerles este solar urbano esquinero de 389m² licencia y proyecto aprobados para la construcción de una vivienda de 240 m².
Situado en el barrio de montaña de Barcelona de Can Rectoret sobre las colinas de Vallvidrera con vistas al parque natural de Collserola y a tan sólo 7 minutos en coche de la estación de Les Planes, que, tras un trayecto de 3 estaciones de tren (6 minutos), os llevará a Sarria, Barcelona. La zona, muy tranquila, privacidad total y contacto directo con la naturaleza.
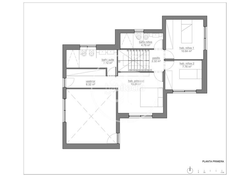
El proyecto de casa aislada con el que se vende el solar tiene la siguiente previsión:
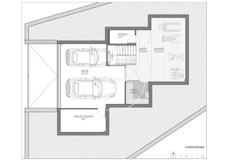
- Primer planta a pie de calle: sala polivalente, posible cine o gimnasio, espacio para sauna y lavadero. Parking calle con espacio para dos coches.
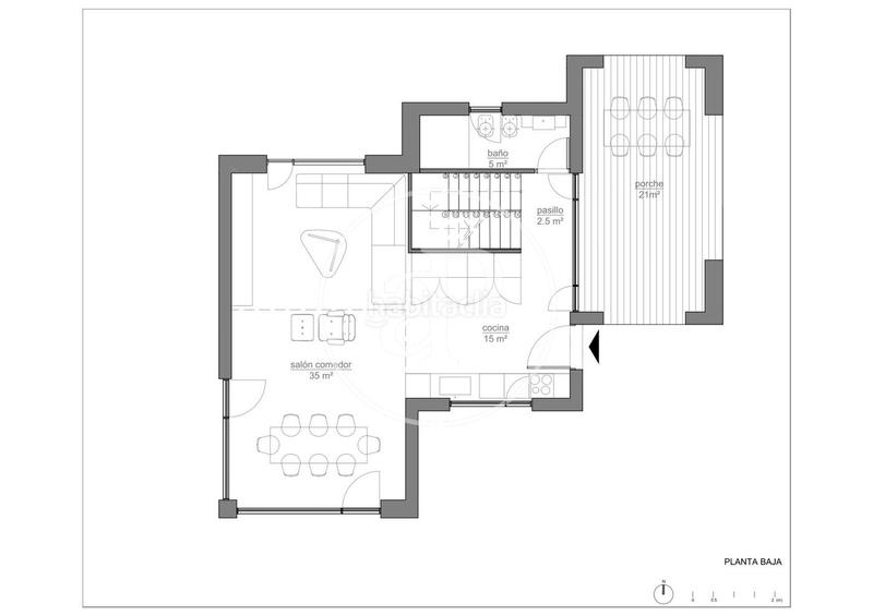
- Primer planta, zona de día: cocina abierta que conecta salón y comedor. Desde la cocina hay acceso a las terrazas exteriores con vistas panorámicas.
- Planta superior: tres habitaciones y dos baños. La habitación principal es una master suite que incluye vestidor y baño completo.
- Exterior: amplio jardín y piscina.
Dependiendo del momento de la adquisición el cliente podría aumentar la casa hasta 290 m² (4 habitaciones y 4 baños).
Cada rincón de esta casa ha sido cuidadosamente diseñado para ofrecer comodidad, estilo y calidad de vida, certificación energética A+, materiales de alta calidad, etc.
Tenemos a su disposición las memorias de calidades, planos y la información complementaria que pueda necesitar para entender la dimensión del proyecto.
No deje de comunicarte con el equipo de aProperties Real Estate para hacer de este proyecto su nuevo nuevo hogar.
Ref. VSC2410016
letzte Änderung
Aufteilung
- Fläche 389 m2
Gallery
Lage
Vallvidrera - Tibidabo - Les Planes Carrer de Marco Polo
