Favorito y comentario
Diese Info sehen nur Sie
495.000 €
Benachrichtigen, wenn sinkt
Wohngrundstück in Centre Rubí
Main characteristics
- 648 m2
- 764 €/m2
Detailed information
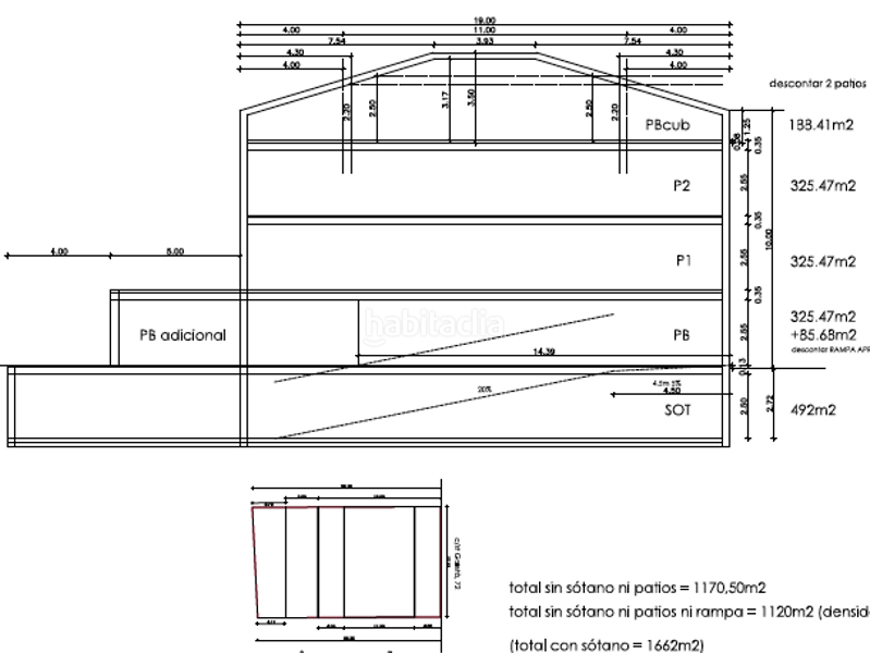
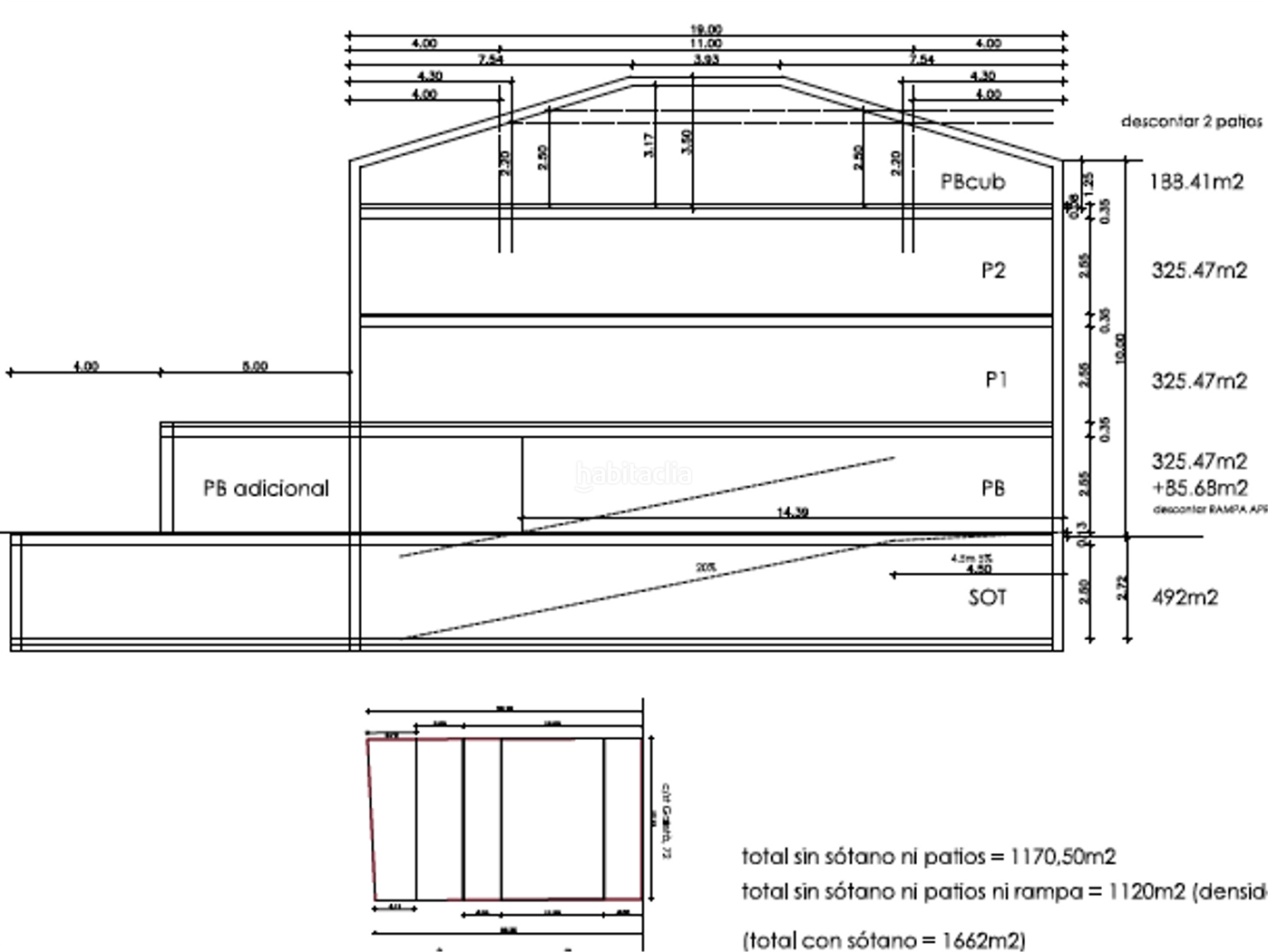
TERRENO EDIFICABLE! Se entrega con derribo! Calificación urbanistica 13/b
Excelente terreno de 648 m2 en la zona del centro de Rubí, inmejorable situación como transporte publico, supermercados, comercios etc.. .
En este terreno existe la posibilidad de construir 14 viviendas mas las plazas de aparcamiento.
Con una superficie edificable de techo de 1170 m2 sobre rasante). Edificabilidad de sótano, planta baja, planta primera, planta segunda y planta bajo cubierta.
Solicite más información y uno de nuestros comerciales contactará con usted.
letzte Änderung
Aufteilung
- Fläche 648 m2
Gallery
Lage
Centre Carrer de Sant Gaietà
Karte anklicken, um sich darauf zu bewegen

habitaclia.com haftet nicht für die Fehler, die die auf der Karte angezeigte Information unter Umständen enthält. Der Benutzer ist für die Nutzung dieser Information selbst verantwortlich.
Sollen wir Ihnen mitteilen, wenn ein Inserat wie dieses veröffentlicht wird?
Legen Sie Ihre Benachrichtigungen an und wir informieren Sie per E-Mail über neue und geänderte Inserate