Bewertung gespeichert!
Diese Info sehen nur Sie
Kommentar gespeichert!
Fügen Sie eine bewertung bzw. Einen Kommentar zu dieser Anzeige hinzu. Nurfür Sie sichtbar

Wohngrundstück in Casablanca - Calvario Vigo

  • 510 m2
  • 882 €/m2

¡Invierte hoy en uno de los barrios con más vida y proyección de Vigo!
En Rúa Barrio Ribadavia, muy próximo al Mercadona de Pizarro, te presentamos este solar urbano consolidado con todo listo para comenzar a construir.
Detalles clave:
Uso residencial
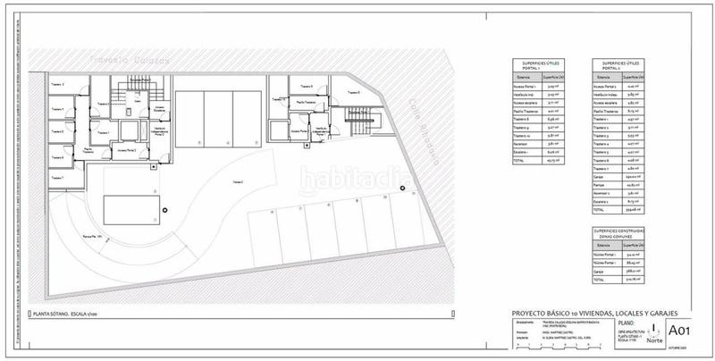
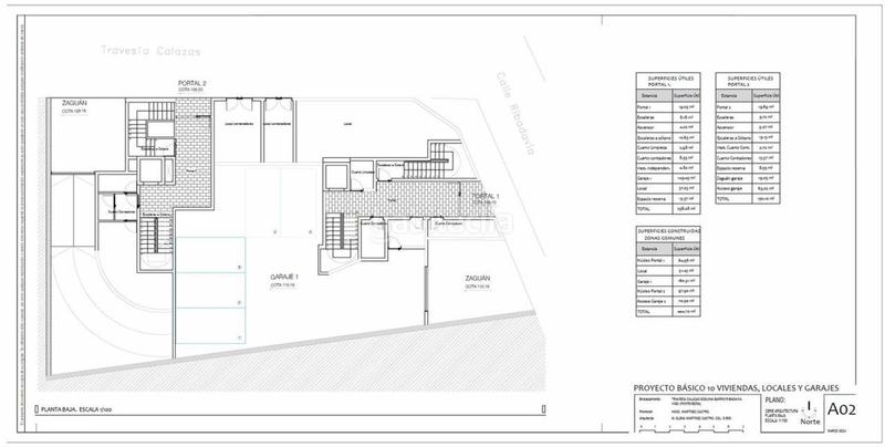
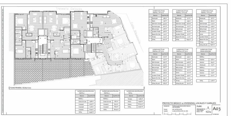
Edificabilidad sobre rasante: 1.728 m² construibles
Proyecto Básico de Ejecución aprobado y Licencia concedida
Distribución prevista:
10 viviendas (5 de ellas en formato dúplex)
1 local comercial en planta baja
16 plazas de garaje
10 trasteros
¿Por qué esta ubicación?
Ubicado en el barrio del Calvario, una de las zonas con más carácter, servicios y movimiento comercial de Vigo, con excelentes conexiones y alta demanda residencial. Rodeado de todo lo que tus futuros compradores o inquilinos buscan: comercios, colegios, transporte público y una vida de barrio vibrante.

¿Quieres más detalles o una visita a pie de parcela? ¡Estamos a tu disposición! Haz realidad tu próxima promoción sin esperas ni incertidumbres.

¡No lo puedes dejar escapar! Sí lo que quieres es información no dudes en ponerte en contacto con nosotros a través de nuestra página web o también puedes visitarnos en nuestras oficinas ubicadas en Avda de Buenos Aires 58 Bajo esquina (Ourense) y en avenida García Barbón nº 97 entreplanta 9 Vigo (Pontevedra).
Si prefieres llamanos al (Ourense) o (Vigo) estaremos encantados de atenderle.
En inmobiliaria FLY también podemos hacerle un presupuesto de lo que costaría su reforma y darle asesoramiento desde el principio hasta el final. Contamos también con un equipo de abogado, asesores financieros, tasación, arquitectos y asesores comerciales altamente cualificado. INMOBILIARIA FLY DESDE EL PRINCIPIO HASTA EL FINAL A SU LADO. '' SI LO PUEDES SOÑAR, LO PUEDES LOGRAR''. Esta información es solo orientativa del inmueble.

letzte Änderung

Aufteilung

  • Fläche 510 m2
Inserat: 33634000003114

Lage

Casablanca - Calvario Rúa do Barrio Ribadavia

Karte anklicken, um sich darauf zu bewegen
Sollen wir Ihnen mitteilen, wenn ein Inserat wie dieses veröffentlicht wird? Legen Sie Ihre Benachrichtigungen an und wir informieren Sie per E-Mail über neue und geänderte Inserate
 

Kontaktieren INMOBILIARIA FLY

Referenz der Anzeige habitaclia/S002294:

Die Telefonnummer wird angezeigt after sending your contact to the announcer to attend you.
Die Telefonnummer wird nach Kontakt angezeigt
Sending...