Bewertung gespeichert!
Diese Info sehen nur Sie
Kommentar gespeichert!
Fügen Sie eine bewertung bzw. Einen Kommentar zu dieser Anzeige hinzu. Nurfür Sie sichtbar
265.000 € Benachrichtigen, wenn sinkt
ist gesunken 4.000 €

Wohngrundstück in calle ángel guimerá 58 in Arenales - Lugo - Avenida Marítima Palmas de Gran Canaria (Las)

  • 153 m2
  • 1.732 €/m2

Su precio 265.000€.

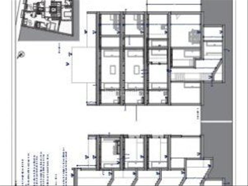
Terreno en venta en la calle Ángel Guimerà, Arenales. Con una superficie de 153m² y dos frontis, este terreno es ideal para construir. Además, cuenta con la posibilidad de construir 7 viviendas, incluyendo tres plazas de garaje y trasteros. Ubicado en una zona céntrica, en una calle paralela a Tomas Morales, este terreno está rodeado de todos los recursos necesarios. Ha sido modificado y está pendiente de presentar en el Ayuntamiento, lo que te permitirá comenzar la obra de forma inmediata. No dudes en contactarnos para obtener más información y asesoramiento sin compromiso. Los gastos e impuestos no están incluidos en el precio y los datos expuestos son orientativos y pueden contener errores u omisiones involuntarias. Superficie total del terreno: 153m². Superficie mínima en venta: 153m². Superficie edificable: 153m². Distancia al municipio más cercano: En núcleo urbano. Servicios disponibles: agua, luz, alcantarillado, alumbrado público, aceras. Tipo de terreno: urbano (solar). Tipo de construcción permitida: residencial en altura (bloques).

letzte Änderung

Aufteilung

  • Fläche 153 m2
Inserat: 34708000000999

Lage

Arenales - Lugo - Avenida Marítima Calle Ángel Guimerá 58

Karte anklicken, um sich darauf zu bewegen
Sollen wir Ihnen mitteilen, wenn ein Inserat wie dieses veröffentlicht wird? Legen Sie Ihre Benachrichtigungen an und wir informieren Sie per E-Mail über neue und geänderte Inserate
 

Kontaktieren VILCHES GESTIONES & SERVICIOS, S.L.

Referenz der Anzeige habitaclia/VG-VR-102660467:

Die Telefonnummer wird angezeigt after sending your contact to the announcer to attend you.
Die Telefonnummer wird nach Kontakt angezeigt
Sending...