Bewertung gespeichert!
Diese Info sehen nur Sie
Kommentar gespeichert!
Fügen Sie eine bewertung bzw. Einen Kommentar zu dieser Anzeige hinzu. Nurfür Sie sichtbar
380.000 € Benachrichtigen, wenn sinkt
ist gesunken 17.000 €

Reihenhaus mit heizung parking in Nucli Urbà Esparreguera

  • 520 m2
  • 6 hab.
  • 4 Badezimmer
  • 731 €/m2

Casa con posibilidad de hacer TRES PISOS CON ENTRADAS INDEPENDIENTES.
Vivienda entre medianeras en el centro de Esparreguera.
Muy soleada, con diversas posibilidades.
Parcela de 367m2 con acceso desde 2 calles.
Superficie total: 520m2 (460m2 de vivienda + 60 de garaje) y patio de 149m2 aprox.
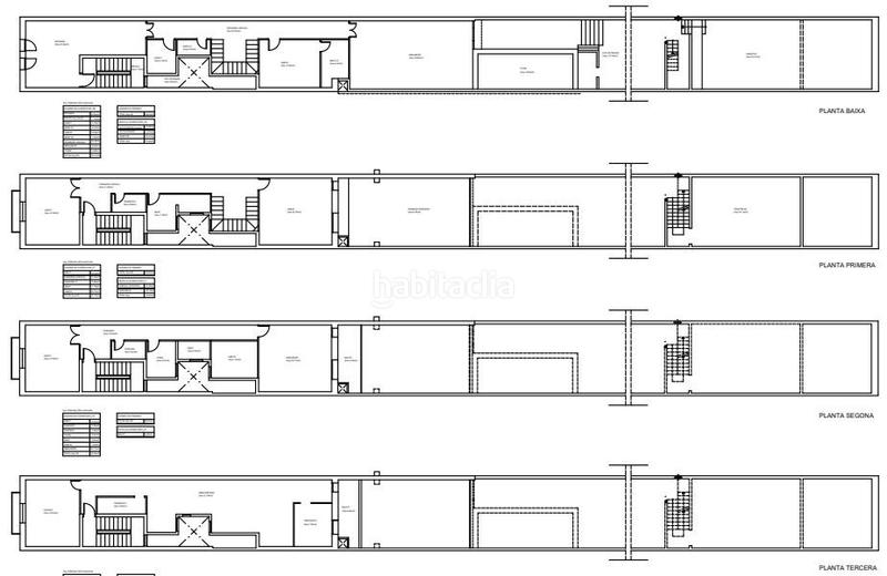
Vivienda distribuida en diferentes plantas:
- Pl. baja: 158m2
- Pl. primera: 126m2
- Pl. segunda: 88m2
- Pl. tercera: 88m2
Garaje: 60m2 capacidad para varios vehículos
Terraza parte superior garaje: 60m2
Estado de conservación Planta baja + planta primera en buen estado. Planta segunda a reformar. Planta tercera es una buhardilla.
Calefacción en pl. primera y segunda
Distribución y superficies útiles:
- Vivienda compuesta de planta baja + planta primera:
Pl. baja: Entrada + 2 habitaciones (4m2 y 12m2) + comedor de 35m2 + cocina con salida a patio muy luminosa de 14m2 + 2 baños + escalera interior + patio interior en vivienda 8m2 + patio exterior 149m2 muy luminoso +
Edificio independiente : garaje de 60m2 para varios vehículos con acceso a calle posterior, terraza en parte superior de 60m2
Pl. primera: 67m2 útiles: 2 habitaciones (15m2 + 20m2) + 1 baño de 7m2 + 2 trasteros + pasillo + escalera interior + terraza 38m2
- Pisos planta 2º y 3ª: Escalera independiente para acceso a pisos superiores des de la calle
- Pl. segunda: 67m2 útiles: Actualmente como piso independiente a reformar: Comedor + cocina + 2 habitaciones + 1 baño + tratero + pasillo + balcón 6m2
- Pl. tercera: 67m2 útiles: Boardilla bajo cubierta, en estado de origen , distribuido en diferentes estancias + balcón 6m2
Posibilidad de comprar sin garaje, y menos patio. (serà necesario segregar)
Este documento tiene una finalidad meramente informativa, y no reviste carácter contractual, si bien los datos que se facilitan se dan de buena fe y se consideran correctos, salvo error u omisión. Estos datos pueden sufrir variaciones debido a cambios ajenos a la empresa. (Impuestos no incluidos en los precios)

letzte Änderung

Aufteilung

  • 6 Zimmer
  • Fläche 520 m2
  • Gelände 367 m2
  • 4 Badezimmer
  • Küche mit Essplatz: No
  • Abstellraum

Allgemeine Merkmale

  • Heizung
  • Parkplatz
  • Ohne klimaanlage
  • Energieausweis :
    Consumo:
    E
    271 kW h m2 / año
    Emisiones:
    F
    68 kg CO2 m2 / año
Inserat: 36266000001264

Lage

Nucli Urbà

Karte anklicken, um sich darauf zu bewegen
380.000 € Preis des Inserats
2.133 €/m2€/m2 población
731 €/m2€/m2 des Inserats
66% billiger als Durchschnitt*
Entwicklung €/m2 der Zone in Esparreguera
Sollen wir Ihnen mitteilen, wenn ein Inserat wie dieses veröffentlicht wird? Legen Sie Ihre Benachrichtigungen an und wir informieren Sie per E-Mail über neue und geänderte Inserate
 

Kontaktieren BARDÉS GRUP - INDUSTRIAL

Referenz der Anzeige habitaclia/ES-C-5878.1-25:

Die Telefonnummer wird angezeigt after sending your contact to the announcer to attend you.
Die Telefonnummer wird nach Kontakt angezeigt
Sending...