Favorito y comentario
Haus in Partides Rurals Lleida
Main characteristics
- 279 m2
- 5 hab.
- 2 Badezimmer
- 1.172 €/m2
Detailed information
West Side vende:
Casa adosada de obra nueva en Lleida.
Dispone de una superficie construida de 279 m², esta propiedad ofrece amplias estancias distribuidas en:
Planta sótano destinada a almacén o garaje.
Planta baja que dispone de gran salón-comedor y cocina
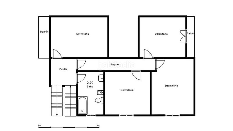
Primera planta que está distribuida en 4 dormitorios amplios 2 de ellos con balcón y 1 baño completo con bañera.
Y la planta altillo que tiene una gran estancia diáfana con 1 vestidor.
Ubicada en una zona céntrica de Lleida, esta vivienda se encuentra rodeada de servicios esenciales como la Escola Ciutat Jardí, supermercados, bibliotecas, farmacias y centros deportivos.
Además, su excelente conexión con varias paradas de autobús y acceso rápido a la N-II facilita la movilidad por la ciudad y sus alrededores.
letzte Änderung
Aufteilung
- 5 Zimmer
- Fläche 279 m2
- Gelände 600 m2
- 2 Badezimmer
Allgemeine Merkmale
- Ohne parkplatz
- Ohne klimaanlage
- Baujahr 1992
Gallery
Lage
Partides Rurals Partida Vallcalent
