Bewertung gespeichert!
Diese Info sehen nur Sie
Kommentar gespeichert!
Fügen Sie eine bewertung bzw. Einen Kommentar zu dieser Anzeige hinzu. Nurfür Sie sichtbar
5.750.000 € Benachrichtigen, wenn sinkt
ist gesunken 750.000 €

Haus mit pool in Casares golf - Casares del sol Casares

  • 552 m2
  • 4 hab.
  • 6 Badezimmer
  • 10.417 €/m2

Villa Llave en Mano Frente al Golf con Serenas Vistas en Casares
Esta promoción llave en mano está situada en el municipio de Casares. Casares es a menudo conocido como uno de los "pueblos blancos" que mantiene su encanto auténtico, mientras que abraza las comodidades de la vida contemporánea. Los entusiastas del golf se encontrarán en el paraíso del golfista, con varios campos de golf aclamados en las inmediaciones. Casares ofrece un ambiente relajado, por lo que es un destino ideal para aquellos que buscan un refugio tranquilo o una casa de vacaciones en un entorno pintoresco.
La villa en venta en Casares, España, se encuentra en las instalaciones del prestigioso Golf Resort, a tan sólo 500 m del Club de Golf y del Hotel de 5 estrellas con una variada oferta de exclusivas opciones gastronómicas. Se tarda menos de 5 minutos en coche en llegar a la carretera principal de la costa y a las playas más cercanas. Todas las comodidades y servicios diarios están al alcance de la mano. La propiedad está a 10 km del centro de la vecina Estepona, a 30 km de Marbella y Puerto Banús, y a 85 km del aeropuerto internacional de Málaga.
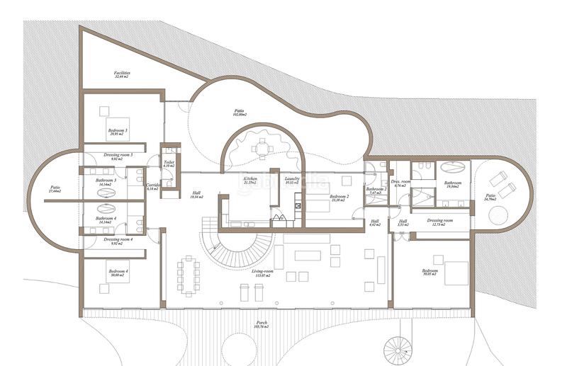
Esta excepcional villa orientada al oeste es una obra maestra de brillantez arquitectónica, que representa una mezcla perfecta de singularidad y sofisticación. Realizada por arquitectos de renombre, la estructura combina elementos futuristas con un encanto nostálgico, llamando la atención por sus líneas fluidas y su perfecta integración en el entorno, ejemplificando una coexistencia equilibrada con la naturaleza. Esta villa de última generación se alza sobre una generosa parcela de 2340 m2 en primera línea de golf y ofrece amplias zonas exteriores con una piscina en forma de huevo rodeada de cuidados jardines.
Esta impresionante villa lista para entrar a vivir cuenta con 552 m2 de superficie construida y 457 m2 de terrazas. Gracias a sus grandes ventanales y puertas correderas de cristal, la luz natural inunda el interior, conectándolo a la perfección con el exterior. Todos los espacios de estar y comedor se distribuyen en la planta baja, mientras que la planta superior sirve de entrada y está inteligentemente diseñada para el aparcamiento, así como para preparar el escenario para recibir a los invitados. La escalera de caracol del nivel superior da acceso directo al jardín y a la zona de la piscina. AGP-00869

letzte Änderung

Aufteilung

  • 4 Zimmer
  • Fläche 552 m2
  • Gelände 2342 m2
  • 6 Badezimmer
  • Abstellraum

Allgemeine Merkmale

  • Privates Schwimmbad
  • Klimaanlage
  • Energieausweis :
    Consumo:
    G
    999 kW h m2 / año
    Emisiones:
    G
    999 kg CO2 m2 / año
Inserat: 55825000001488

Lage

Casares Golf - Casares del Sol

Karte anklicken, um sich darauf zu bewegen
5.750.000 € Preis des Inserats
4.396 €/m2€/m2 población
10.417 €/m2€/m2 des Inserats
Entwicklung €/m2 der Zone in Casares
Sollen wir Ihnen mitteilen, wenn ein Inserat wie dieses veröffentlicht wird? Legen Sie Ihre Benachrichtigungen an und wir informieren Sie per E-Mail über neue und geänderte Inserate
 

Kontaktieren TEKCE

Referenz der Anzeige habitaclia/AGP-00869-4-DetachedVilla:

Die Telefonnummer wird angezeigt after sending your contact to the announcer to attend you.
Die Telefonnummer wird nach Kontakt angezeigt
Sending...