Favorito y comentario
Haus mit heizung parking in Santiago de La Ribera San Javier
Main characteristics
- 225 m2
- 5 hab.
- 3 Badezimmer
- 2.040 €/m2
Detailed information
CHALET INDIVIDUAL, situado en una de las mejores y mas tranquilas zonas de San Javier, frente a un parque, cercano a todos los servicios y a tan solo 10 minutos andando a una de las mejores playas del municipio.
Cuenta con una parcela de 500 m2 con barbacoa, variados árboles frutales, pérgola de aluminio con toldo, cerramientos perimetrales en piedra y aluminio, terreno parcialmente solado y con piedras decorativas y riego programable facilitando el mantenimiento de la zona exterior.
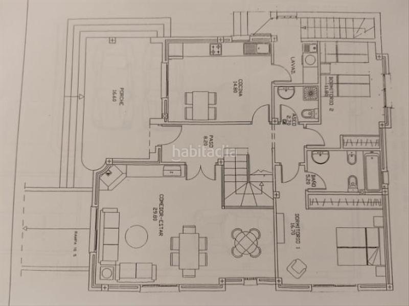
La vivienda tiene una superficie construida de 225 m2 dividida en dos alturas.
En la planta principal se encuentra un precioso porche cerrado con cortinas de cristal de primera calidad (Lumon), la cocina totalmente equipada con cuarto de lavado, un baño completo, un dormitorio o despacho, dormitorio principal con baño completo en suite y un gran salón con chimenea y amplios ventanales que proporcionan una preciosa luz natural a toda la estancia.
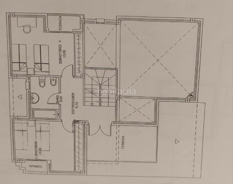
En la planta superior se encuentran 3 amplios dormitorios con armarios empotrados, dos de ellos con acceso a una terraza, y un amplísimo baño completo.
La vivienda tiene radiadores, aire acondicionado, suelos cerámicos, tarima y escalera de mármol. Calefacción individual con tanque subterráneo de 2.000 litros de gasóleo y purificador de agua que da servicio a toda la vivienda.
La carpintería interior es de madera maciza color roble, la carpintería exterior de climalit blanco con mosquiteras y toldos en todas las ventanas.
La vivienda cuenta además con un amplio garaje de mas de 100 m2 donde podrían entrar tres vehículos grandes, habitación de 15 m2, un espacio de taller y zona de almacenaje.
letzte Änderung
Aufteilung
- 5 Zimmer
- Fläche 225 m2
- Gelände 500 m2
- 3 Badezimmer
- Abstellraum
Allgemeine Merkmale
- Heizung
- Parkplatz
- Klimaanlage
- Baujahr 1998
Gallery
Lage
Santiago de La Ribera Cabo De Gata
