Bewertung gespeichert!
Diese Info sehen nur Sie
Kommentar gespeichert!
Fügen Sie eine bewertung bzw. Einen Kommentar zu dieser Anzeige hinzu. Nurfür Sie sichtbar

Haus mit heizung in Centre Rubí

  • 146 m2
  • 4 hab.
  • 3 Badezimmer
  • 3.116 €/m2

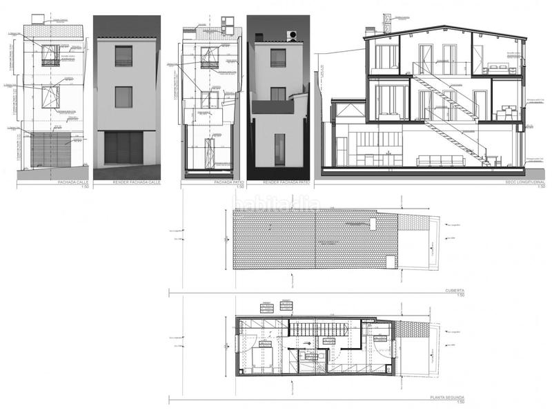
CASA DE OBRA NUEVA EN EL CENTRO DE RUBÍ CON AEROTERMIA Y PLACAS SOLARES FOTOVOLTAICAS.

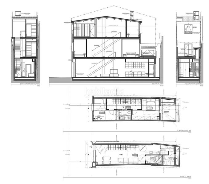
La vivienda tiene una superficie de 146,14 m² y se distribuye en 4 habitaciones de 13,15 m², 11,31 m², 11,82 m² y 15,10 m². Dispone de 3 baños completos con ducha, un amplio comedor de 31,24 m² con cocina tipo office, despensa, lavadero y terraza.

Cuenta con acabados de alta calidad como puertas lacadas en blanco, suelos de porcelánico y parquet AC5, y escaleras de madera de roble. La climatización incluye calefacción por conductos en la planta baja y aire acondicionado Split (frío y calor) en el resto de la vivienda.

Además, las ventanas son de aluminio con puente térmico, y la propiedad dispone de una puerta blindada y la posibilidad de instalar un ascensor. También cuenta con placas solares fotovoltaicas, lo que permite un ahorro energético significativo.

Distribución:

• Planta baja: Amplio comedor de 31,24 m² con cocina office, despensa, lavadero y baño de 4,14 m² con moqueta. Calefacción por conductos.
• Primera planta: Dos habitaciones de 13,15 m² y 11,31 m², una de ellas con acceso a terraza de 8 m², y un baño con plato de ducha.
• Segunda planta: Dos habitaciones de 11,82 m² y 15,10 m², baño con plato de ducha 3,28m2.

Vivienda ideal para familias en una zona tranquila y bien comunicada. ¡No pierdas esta gran oportunidad y ven a verlo sin compromiso!

Calidades:

• Vivienda autónoma por si sola con placas solares fotovoltaicas.
• Aluminio con puente rotura térmica 3 vidrios
• Suelos de porcelanico y parquet AC5
• Puertas lacadas blancas
• Escaleras de madera de roble
• Calefacción por conducto en la planta baja
• Aire acondicionado Split frío y calor
• Aerotermia para agua sanitaria
• Fibra óptica de datos independiente en toda la vivienda,
• Placas solares fotovoltaicas
• Posibilidad de ascensor

La superficie de la vivienda ha sido facilitada por el propietario, consultada en la Sede Electrónica de Catastro, pudiendo haber alguna variación con la superficie real.

En el precio ofertado de venta, no están incluidos los gastos de compraventa: notario, registro, gestoría, ITP (Impuesto de Transmisiones Patrimoniales) o gastos bancarios que pudieran generarse.

Ref.: 60651
ZONA: CENTRO (RUBÍ)

Si tienes alguna pregunta, deseas ir a visitarla, no dudes en contactar con nosotros

¡TE ESPERAMOS!

letzte Änderung

Aufteilung

  • 4 Zimmer
  • Fläche 146 m2
  • 3 Badezimmer

Allgemeine Merkmale

  • Heizung
  • Ohne parkplatz
  • Klimaanlage
  • Energieausweis :
    Consumo:
    G
    999 kW h m2 / año
    Emisiones:
    G
    999 kg CO2 m2 / año
Inserat: 51478000000035

Lage

Centre

Karte anklicken, um sich darauf zu bewegen
455.000 € Preis des Inserats
2.274 €/m2€/m2 población
3.116 €/m2€/m2 des Inserats
Entwicklung €/m2 der Zone in Rubí
Sollen wir Ihnen mitteilen, wenn ein Inserat wie dieses veröffentlicht wird? Legen Sie Ihre Benachrichtigungen an und wir informieren Sie per E-Mail über neue und geänderte Inserate
 

Kontaktieren FINCAS GIROL

Referenz der Anzeige habitaclia/27C8720:

Die Telefonnummer wird angezeigt after sending your contact to the announcer to attend you.
Die Telefonnummer wird nach Kontakt angezeigt
Sending...