Virtueller Besuch
Bewertung gespeichert!
Diese Info sehen nur Sie
Kommentar gespeichert!
Fügen Sie eine bewertung bzw. Einen Kommentar zu dieser Anzeige hinzu. Nurfür Sie sichtbar

Gebäude in Valdeacederas Madrid

  • 447 m2
  • 2.226 €/m2

CONTACTAR CON EXTENSIÓN Nº4




BAFRE Castellana ofrece edificio en venta en Tetuán, zona Bravo Murillo


Se ofrece en venta edificio de tres alturas en una ubicación estratégica, a escasos metros de la calle Bravo Murillo y con excelentes comunicaciones, tanto por transporte público (próximo a la estación de metro de Tetuán) como por acceso a las principales vías de la ciudad.


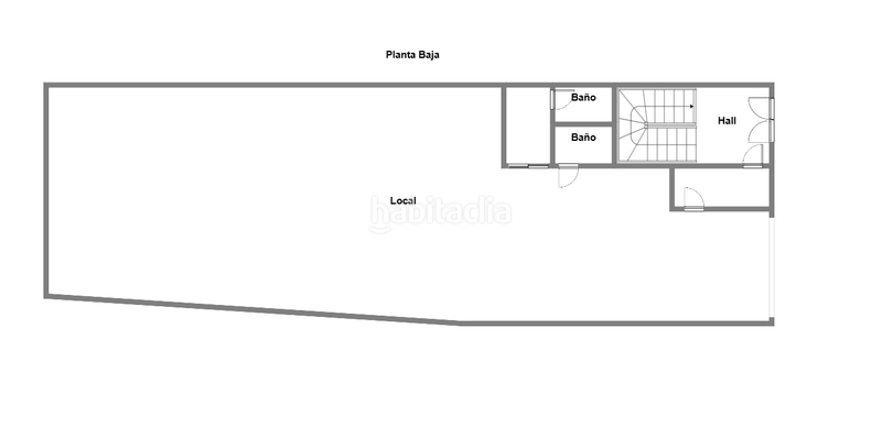
La planta baja dispone de 251 m², actualmente configurada como nave, con la posibilidad de cambio de uso a residencial u otros fines, lo que abre un amplio abanico de oportunidades de inversión. Las dos plantas superiores suman 85 m² cada una, ideales para oficinas, viviendas o estudios.


El inmueble cuenta con dos accesos independientes: entrada tipo portal y entrada de garaje, lo que facilita tanto el uso residencial como el logístico o empresarial. Asimismo, está equipado con sistema de aire acondicionado, lo que garantiza comodidad y funcionalidad desde el primer día.


El edificio ofrece además la posibilidad de edificabilidad adicional, incrementando su atractivo para promotores o inversores interesados en desarrollar un proyecto a medida en una de las zonas más demandadas de Madrid.


Una excelente oportunidad en un barrio consolidado, con todos los servicios a pie de calle y una comunicación inmejorable.


(Este anuncio no es vinculante, puede contener errores, se muestra a título informativo y no contractual.)
>

Oferta sujeta a condiciones de compra. Consulte los términos y condiciones aplicables.

letzte Änderung

Aufteilung

  • Fläche 447 m2

Allgemeine Merkmale

  • Baujahr 1965
  • Energieausweis :
    Consumo:
    G
    999 kW h m2 / año
    Emisiones:
    G
    999 kg CO2 m2 / año
Inserat: 15862000008301

Lage

Valdeacederas Calle Fereluz

Karte anklicken, um sich darauf zu bewegen
Sollen wir Ihnen mitteilen, wenn ein Inserat wie dieses veröffentlicht wird? Legen Sie Ihre Benachrichtigungen an und wir informieren Sie per E-Mail über neue und geänderte Inserate
 

Kontaktieren BAFRE GESTION Y SERVICIOS INMOBILIARIOS

Referenz der Anzeige habitaclia/BFCA-V353:

Die Telefonnummer wird angezeigt after sending your contact to the announcer to attend you.
Die Telefonnummer wird nach Kontakt angezeigt
Sending...