Bewertung gespeichert!
Diese Info sehen nur Sie
Kommentar gespeichert!
Fügen Sie eine bewertung bzw. Einen Kommentar zu dieser Anzeige hinzu. Nurfür Sie sichtbar

Etagenwohnung mit heizung parking in Centre-Estació Gavà

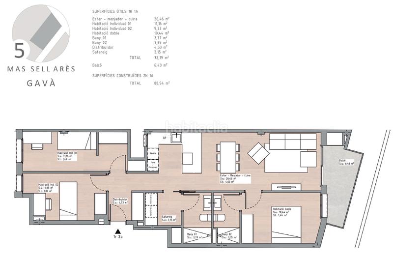
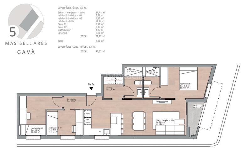
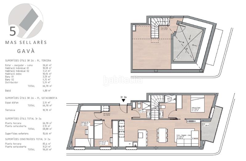
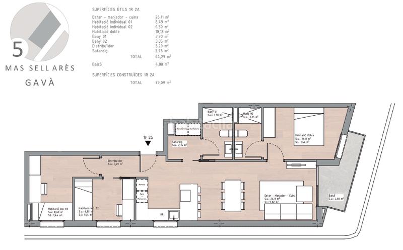
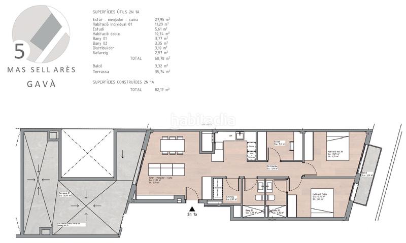
  • 76 m2
  • 3 hab.
  • 2 Badezimmer
  • 4.257 €/m2

Finques Mil·lenium presenta esta bonita promoción de obra nueva en Gavà, próxima a la riera San Lorenzo y carretera principal.
La finca consta de 9 viviendas en total, bajos, primeros, segundos y terceros dúplex, 16 plazas de aparcamiento en la misma finca.
Todas las viviendas están dotadas de 3 habitaciones y dos baños, uno de ellos en suite. Salón comedor con cocina americana, algunos de los pisos disponen de balcón, terraza o patio.

LAS IMAGINES Y LOS PLANOS MOSTRADOS SON INFORMATIVOS, SIN CARACTER CONTRACTUAL, SUSCEPTIBLES DE SER MODIFICADOS POR NECESIDADES TÉCNICAS, JÚRIDICAS O COMERCIALES.

Memoria de calidades:
? CIMENTACIÓN Y ESTRUCTURA
Cimentación y estructura de hormigón armado. Diseño y ejecución conforme a
estudio geotécnico realizado previamente y cumpliendo la normativa vigente
del Código Técnico de la Edificación. Verificación por Organismo de Control
Técnico y laboratorio homologado ASEFA.
? FACHADAS
Sistema de fachadas realizadas mediante revestimiento ligero o cerámico, con
cámara de aire y aislamiento térmico. Sistema de revoco en los lugares
identificados por el proyecto, compuesto por revestimiento impermeable a
base de mortero de resinas y aislamiento térmico exterior.
? TABIQUERÍA Y AISLAMIENTO
Tabiquería interior cerámico, tanto en interior de vivienda con ladrillo gran
formato como la separación entre viviendas y zonas comunes. En dichas zonas
será una tabiquería doble a más de la colocación de aislamiento acústico entre
viviendas y zonas comunes.
? CARPINTERÍA EXTERIOR
Carpintería de aluminio satinado, con rotura de puente térmico, de apertura
practicable u oscilo batiente según casos. Doble acristalamiento tipo CLIMALIT
con cámara de aire interior cumplimiento de salubridad según CTE (Código
técnico). Cajas de persianas mediante sistema CAJAISLANT, y persianas
motorizadas enrollables de aluminio en salón y dormitorios.
? CARPINTERÍA INTERIOR
Puerta blindada de acceso a la vivienda con acabado en madera lacada. Puertas
interiores lisas con acabado en madera lacada, abatibles o correderas según
distribución ya indicada previamente.
? PAVIMENTOS
Pavimento de gres en todas las estancias. Se podrá elegir entre una gama de
colores previo a su colocación. Los rodapiés serán correspondientes al mismo
material de pavimento material o madera lacada, según la estancia. Pavimento
de gres antideslizante en terrazas con zócalo del mismo material.

? PARAMENTOS VERTICALES Y HORIZONTALES
Revestimiento con gres en baños, se podrá elegir entre una gama de colores
propuestos previamente.
Pintura plástica lisa en paredes en color blanco. Techos de yeso con acabado de
pintura plástica lisa en salón, cocina y dormitorios. Falsos techos de placas de
yeso laminado con acabado de pintura plástica lisa en pasillos y zonas donde se
requiera para el paso de instalaciones. Falsos techos de placas hidrófugas de
yeso laminado o de lamas de aluminio registrables en baño principal o
secundario según casos.
? COCINAS
Amueblamiento de cocinas con muebles altos y bajos de gran capacidad con
tiradores integrados y muebles lacados. Encimera de silestone o similar de alta
resistencia. Frontal del mismo material entre armarios bajos y altos. Fregadero
de acero inoxidable bajo encimera. Cubeta única y grifería cromada
monomando de bajo caudal con caño giratorio. Cocina equipada con campana
extractora de acero inoxidable, placa de inducción, horno multifunción y
microondas.
? BAÑOS
Baños principal y secundario equipados con lavado, inodoro compacto y plato
de ducha de resina enrasando a nivel del pavimento, según tipología y
dimensiones de la vivienda. Baño principal equipado con lavabo con mueble
integrado, espejo. Grifería cromada monomando de bajo caudal.
? CLIMATIZACIÓN Y AGUA CALIENTE SANITARIA
La instalación térmica individual se hace mediante sistema de AEROTERMIA de
alta eficiencia energética, para la climatización frio-calor, y para la producción
de ACS. Cada vivienda dispondrá de un depósito para la producción de Agua
Caliente y control de consumos independientes. Climatización mediante
equipos de FAN COIL por conductos eficientes, y calefacción por suelo radiante
en todas las estancias, con control de temperatura mediante termostato
programable y con acceso por internet para su activación o desactivación.
? ELECTRICIDAD Y TELECOMUNICACIONES
Instalación de tomas eléctricas y telecomunicaciones según Reglamento
Electrotécnico de Baja Tensión. Instalación de lámparas LED de bajo consumo
en cocina, baños y pasillos. Tomas de televisión, radio y telefonía/datos en
salón, cocina y dormitorios. Instalación de video-portero automático.
? ZONAS COMUNES DEL EDIFICIO
Ascensores electromecánicos de acero inoxidable con puertas automáticas.
Garajes y aparcamiento de bicicletas con pavimento de hormigón fratasado.
Zonas comunes exteriores con pavimento antideslizante y Instalación de
lámparas LED de bajo consumo en zonas comunes y garaje.

letzte Änderung

Aufteilung

  • 3 Zimmer
  • Fläche 76 m2
  • 2 Badezimmer
  • Küche mit Essplatz: No

Allgemeine Merkmale

  • Heizung
  • Parkplatz
  • Klimaanlage
  • Energieausweis :
    Befreit

Gemeinschaftlich genutzte Austattung

  • Fahrstuhl
Inserat: 2552004428302

Lage

Centre-Estació

Karte anklicken, um sich darauf zu bewegen
323.500 € Preis des Inserats
3.590 €/m2€/m2 población
4.257 €/m2€/m2 des Inserats
Entwicklung €/m2 der Zone in Gavà
Sollen wir Ihnen mitteilen, wenn ein Inserat wie dieses veröffentlicht wird? Legen Sie Ihre Benachrichtigungen an und wir informieren Sie per E-Mail über neue und geänderte Inserate
 

Kontaktieren FINQUES MIL·LENIUM

Referenz der Anzeige habitaclia/PI4793 :

Die Telefonnummer wird angezeigt after sending your contact to the announcer to attend you.
Die Telefonnummer wird nach Kontakt angezeigt
Sending...