Bewertung gespeichert!
Diese Info sehen nur Sie
Kommentar gespeichert!
Fügen Sie eine bewertung bzw. Einen Kommentar zu dieser Anzeige hinzu. Nurfür Sie sichtbar
Günstiges Angebot 274.400 € Benachrichtigen, wenn sinkt
ist gesunken 24.100 €

Etagenwohnung mit heizung in Eixample Tarragona

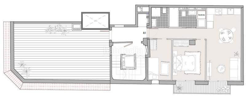
  • 84 m2
  • 2 hab.
  • 2 Badezimmer
  • 3.267 €/m2

OBRA NUEVA EN EL CORAZÓN DE TARRAGONA

Promoción única de 14 viviendas de alto standing en un edificio histórico completamente rehabilitado, situado en la estratégica esquina de Calle López Peláez con María Cristina, en pleno corazón de Tarragona.

Una ubicación inmejorable que combina la vida urbana más cómoda con una excelente conexión a toda la ciudad.

Vivir aquí significa tener colegios, hospitales, comercios y servicios esenciales a solo unos pasos, disfrutando de la comodidad y dinamismo del centro sin renunciar a la tranquilidad de un hogar de calidad.

Cada vivienda está diseñada para estrenar y disfrutar del lujo en cada detalle, con acabados de primera categoría de la mano de Porcelanosa. Compra tu piso sobre plano y recíbelo llave en mano a finales de 2026, listo para vivir o invertir con total tranquilidad.

Características principales:

• Amplio salón-comedor con cocina abierta y salida a balcón
• 2 dormitorios (uno tipo suite)
• 2 baños completos
• Edificio con ascensor
• Certificación energética C ? hasta un 80% de ahorro energético

Un proyecto único que combina la esencia de un edificio histórico con el confort de la obra nueva y los mejores acabados del mercado.

Memoria de acabados:

• Cocina Porcelanosa
• Electrodomésticos Balay
• Armarios empotrados lacados blancos en todas las habitaciones
• Carpintería exterior Cortizo con cristales antirreflectantes
• Suelo acrílico Porcelanosa en todo el piso
• Sanitarios y griferías Porcelanosa
• Componentes eléctricos Niessen
• Aire acondicionado Panasonic
• Sistema ACS por aerotermia

Además, te ayudamos con la financiación de tu hipoteca.

letzte Änderung

Aufteilung

  • 2 Zimmer
  • Fläche 84 m2
  • 2 Badezimmer
  • Küche mit Essplatz: No

Allgemeine Merkmale

  • Heizung
  • Ohne parkplatz
  • möbliert
  • Klimaanlage
  • Energieausweis :
    Consumo:
    G
    999 kW h m2 / año
    Emisiones:
    G
    999 kg CO2 m2 / año

Gemeinschaftlich genutzte Austattung

  • Fahrstuhl
Inserat: 2827002998396

Lage

Eixample LOPEZ PELAEZ

Karte anklicken, um sich darauf zu bewegen
274.400 € Preis des Inserats
1.832 €/m2€/m2 población
3.267 €/m2€/m2 des Inserats
Entwicklung €/m2 der Zone in Tarragona
Sollen wir Ihnen mitteilen, wenn ein Inserat wie dieses veröffentlicht wird? Legen Sie Ihre Benachrichtigungen an und wir informieren Sie per E-Mail über neue und geänderte Inserate
 

Kontaktieren MAREBENS

Referenz der Anzeige habitaclia/LP-004:

Die Telefonnummer wird angezeigt after sending your contact to the announcer to attend you.
Die Telefonnummer wird nach Kontakt angezeigt
Sending...