Bewertung gespeichert!
Diese Info sehen nur Sie
Kommentar gespeichert!
Fügen Sie eine bewertung bzw. Einen Kommentar zu dieser Anzeige hinzu. Nurfür Sie sichtbar

Bauernhof mit parking pool in Cap Martí - El Tossalet - Pinomar Xàbia

  • 152 m2
  • 3 hab.
  • 2 Badezimmer
  • 5.592 €/m2

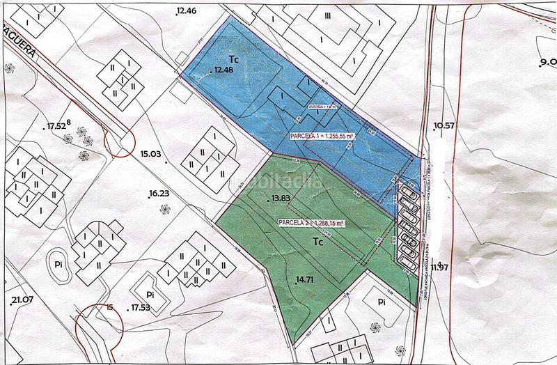
Parcela de 2.600 m2 con casa y posibilidad de división en dos parcelas edificables
Esta parcela se encuentra a muy poca distancia de la playa de arena de Jávea y ofrece una excelente oportunidad de inversión. La parcela se puede dividir perfectamente en dos parcelas edificables independientes de unos 1.300 m2 cada una, aptas para realizar dos villas de lujo.
Actualmente, la parcela contiene una villa de una sola planta con una superficie construida de 152 m². La propiedad cuenta con un salón con cocina abierta, un segundo salón-comedor con cocina cerrada, tres dormitorios, dos baños y un patio con trastero.
Esta parcela se encuentra a poca distancia de la playa de arena de Jávea y goza de una excelente ubicación cerca de todos los servicios. Supermercados, restaurantes, consultas médicas, instalaciones deportivas y otras necesidades diarias se encuentran a poca distancia. Esta ubicación combina la privacidad con la comodidad de una ubicación céntrica.

letzte Änderung

Aufteilung

  • 3 Zimmer
  • Fläche 152 m2
  • Gelände 2600 m2
  • 2 Badezimmer
  • Abstellraum

Allgemeine Merkmale

  • Privates Schwimmbad
  • Parkplatz
  • Ohne klimaanlage
  • Energieausweis :
    Consumo:
    G
    999 kW h m2 / año
    Emisiones:
    G
    999 kg CO2 m2 / año
Inserat: 28548000002672

Lage

Cap Martí - El Tossalet - Pinomar

Karte anklicken, um sich darauf zu bewegen
850.000 € Preis des Inserats
3.676 €/m2€/m2 población
5.592 €/m2€/m2 des Inserats
Wie viel würdest Du bezahlen?
Entwicklung €/m2 der Zone in Xàbia
Sollen wir Ihnen mitteilen, wenn ein Inserat wie dieses veröffentlicht wird? Legen Sie Ihre Benachrichtigungen an und wir informieren Sie per E-Mail über neue und geänderte Inserate
 

Kontaktieren ARZUAGA INMOBILIAIRA

Referenz der Anzeige habitaclia/AR55218:

Die Telefonnummer wird angezeigt after sending your contact to the announcer to attend you.
Die Telefonnummer wird nach Kontakt angezeigt
Sending...