Bewertung gespeichert!
Diese Info sehen nur Sie
Kommentar gespeichert!
Fügen Sie eine bewertung bzw. Einen Kommentar zu dieser Anzeige hinzu. Nurfür Sie sichtbar

Miete fabrikhalle in reus 11 in Santa Perpètua de Mogoda

Reus 11

  • 6.934 m2
  • 6,25 €/m2

Nave industrial en Alquiler en La Florida Santa Perpètua de Mogoda

Nave logística disponible para alquilar en el Polígono Industrial La Florida de Santa Perpètua de Mogoda.

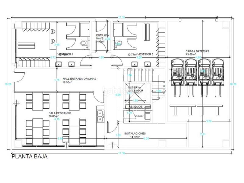
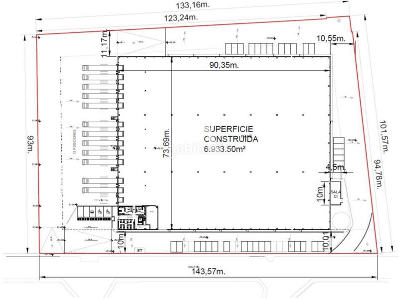
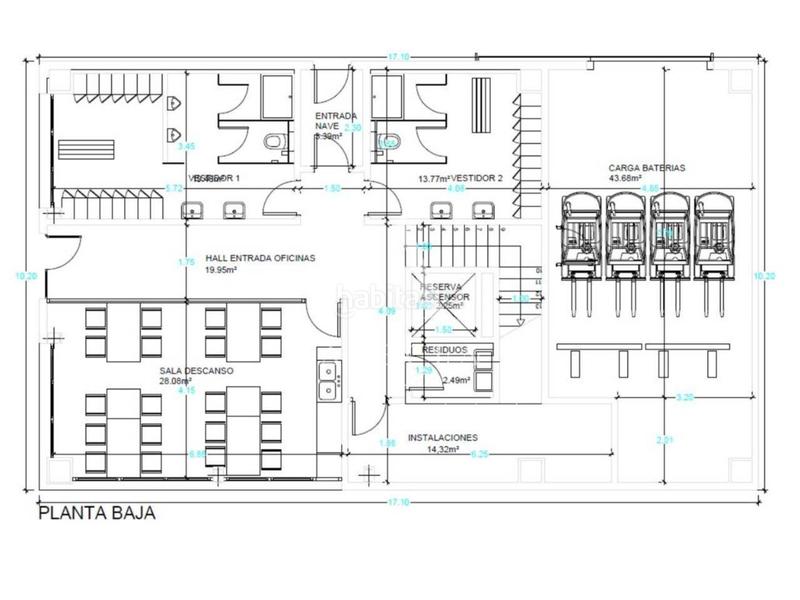
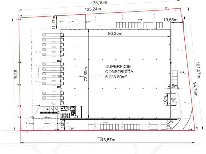
SUPERFICIES:
- Total parcela: 13.411 m2
- Total construido: 6.934 m2
- Almacén: 6.586 m2
- Oficinas: 348 m2
- Altura libre: 10,50 m

CARACTERÍSTICAS:
- Nave aislada
- Planta rectangular
- Cubierta sándwich tipo deck
- Estructura con carpintería exterior de hormigón y fachada de chapa
- Muelles de carga: 12
- Calambres de acceso
- Sala de carga de baterías
- Aire acondicionado y calefacción
- Sistema antiincendios: BIES, sprinklers, cortinas de humo, detectores de humo, depósito contra incendios


UBICACIÓN:
Cuenta con excelentes comunicaciones. Tiene accesos directos desde la AP-7/E-15, la C-17, la C-59 y la C-33, así como a su próximo acceso a la C -58. Además, tiene una ágil conexión a las vías AP-2, C-16. Y también acceso directo desde C-17 y C-33.
En cuanto a transporte público, dispone de buenas comunicaciones con líneas de bus y Renfe "La langosta".

letzte Änderung

Aufteilung

  • Fläche 6934 m2
  • Höhe 10 m
Inserat: 28314004370131

Lage

Reus 11

Karte anklicken, um sich darauf zu bewegen
Sollen wir Ihnen mitteilen, wenn ein Inserat wie dieses veröffentlicht wird? Legen Sie Ihre Benachrichtigungen an und wir informieren Sie per E-Mail über neue und geänderte Inserate
 

Kontaktieren AVECLA REALTY

Referenz der Anzeige habitaclia/10887:

Die Telefonnummer wird angezeigt after sending your contact to the announcer to attend you.
Die Telefonnummer wird nach Kontakt angezeigt
Sending...