Bewertung gespeichert!
Diese Info sehen nur Sie
Kommentar gespeichert!
Fügen Sie eine bewertung bzw. Einen Kommentar zu dieser Anzeige hinzu. Nurfür Sie sichtbar

Miete fabrikhalle in can quadres 1 in Sol i Padrís - Sant Oleguer Sabadell

  • 3.155 m2
  • 2 Badezimmer
  • 4,53 €/m2

Nave industrial en alquiler en EixampleSant Oleguer08203

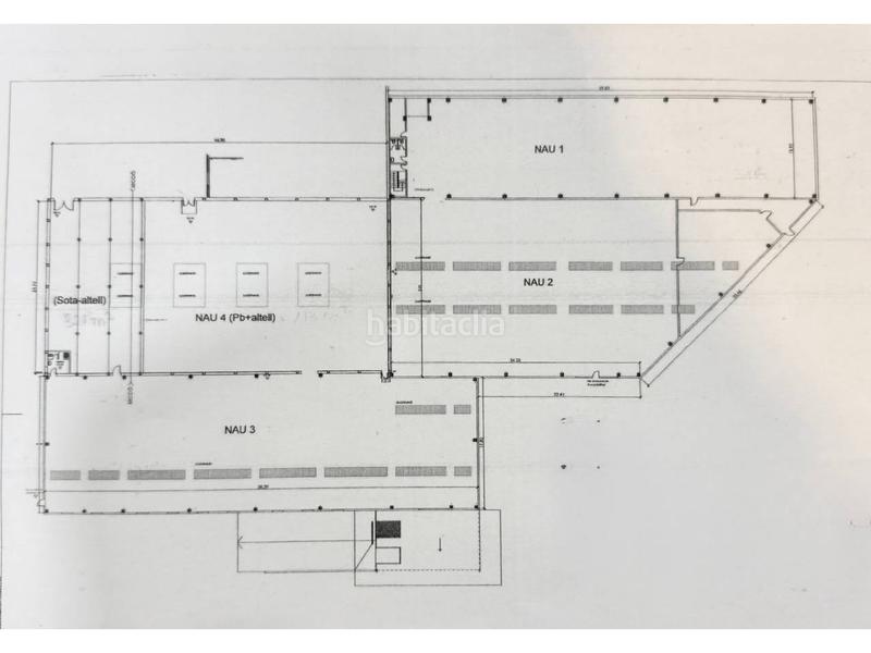
Fincamps comercializa excepcional nave en la zona de Sant Oleguer en Sabadell , la superficie de la nave es de 2.056 m² y se distribuye de la siguiente manera :
- Una primera zona con 1.000m² y unas medidas de 42m de ancho y 24m de profundidad aproximadamente todo ello con una espectacular altura de 12m , en la misma zona pero en un extremo disponemos de casi 200m² de oficina la cual se podría anular si necesitáramos mas espacio ya que disponemos de la misma altura de 12m.
Puerta de acceso TIR con 4,5 m de altura y 5,4 m de anchura.
-Una segunda zona de 866m²con una anchura de 60m y una profundidad de 14m , acceso por una puerta peatonal en un extremo y otro acceso de mas de 4m de anchura ,en esta zona la altura queda limitada a 4 m.
-Una tercera zona con una superficie total de 1099 m², disponemos de una anchura de 58 m y una profundidad de 18m aproximadamente , todo ello con una excepcional altura libre de 9 m , totalmente diáfana , la nave dispone de un acceso peatonal y una puerta TIR independiente con un muelle de carga .


Si necesita una nave de gran capacidad y excepcional altura no dude en consultarnos.
Usos permitidos , almacén y servicios.
Posibilidad de añadir otra nave de 1.134 m² con 7m de altura.

letzte Änderung

Aufteilung

  • Fläche 3155 m2

Allgemeine Merkmale

  • Baujahr 1875
Inserat: 693004449142

Lage

Sol i Padrís - Sant Oleguer Can Quadres 1

Karte anklicken, um sich darauf zu bewegen
Sollen wir Ihnen mitteilen, wenn ein Inserat wie dieses veröffentlicht wird? Legen Sie Ihre Benachrichtigungen an und wir informieren Sie per E-Mail über neue und geänderte Inserate
 

Kontaktieren FINCAMPS

Referenz der Anzeige habitaclia/011568:

Die Telefonnummer wird angezeigt after sending your contact to the announcer to attend you.
Die Telefonnummer wird nach Kontakt angezeigt
Sending...