Bewertung gespeichert!
Diese Info sehen nur Sie
Kommentar gespeichert!
Fügen Sie eine bewertung bzw. Einen Kommentar zu dieser Anzeige hinzu. Nurfür Sie sichtbar

Miete etagenwohnung mit heizung in Castellana Madrid

  • 250 m2
  • 4 hab.
  • 4 Badezimmer
  • 36,00 €/m2

Luz, elegancia y diseño frente a la Embajada de Italia

DIZA Consultores presenta esta magnífica vivienda reformada a estrenar, una joya inmobiliaria que combina elegancia, funcionalidad y una ubicación inmejorable, frente a la Embajada de Italia.

Se trata de un piso exterior, lleno de luz natural, que ofrece una amplia terraza con vistas despejadas, ideal para disfrutar de momentos de relax al aire libre en pleno corazón de la ciudad.

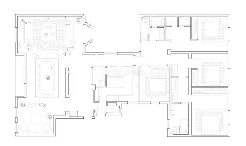
La vivienda dispone de un espacioso salón-comedor, diseñado para crear un ambiente cálido y acogedor. En él destaca un sofisticado mueble bar, perfecto para disfrutar de reuniones sociales o de un momento de relax al final del día, aportando un toque de distinción y funcionalidad al espacio.

La vivienda cuenta con cuatro dormitorios de generosas dimensiones. Dos de ellos son en suite, con baños incorporados y acabados de primer nivel, mientras que los otros dos dormitorios comparten un baño completo con ducha. Además, dispone de un aseo de cortesía para mayor comodidad de los invitados.

La cocina, moderna y versátil, puede dejarse independiente gracias a unas elegantes puertas de cristal, y se entrega completamente amueblada y equipada con electrodomésticos de alta gama. Un espacio funcional y sofisticado, pensado para disfrutar tanto del día a día como de los mejores momentos en compañía. La vivienda cuenta, además, con puerta de servicio, un detalle que aporta privacidad y practicidad.

La reforma es exquisita, con materiales de máxima calidad, una cuidada selección de tonos neutros y un diseño que transmite armonía y sofisticación en cada estancia. El piso se entrega sin amueblar, ofreciendo así la libertad de adaptarlo al estilo personal de quien lo habite.

Como valor añadido, la propiedad incluye un trastero, perfecto para optimizar el espacio y mantener el orden.

En definitiva, una vivienda exclusiva, luminosa y elegante, donde cada detalle ha sido cuidadosamente pensado para ofrecer confort, privacidad y distinción. Un hogar único en una ubicación privilegiada, ideal para quienes buscan calidad y estilo de vida.

Si quieres conocer más propiedades como esta entra en dizaconsultores.com

Convertimos sueños en hogares.

letzte Änderung

Aufteilung

  • 4 Zimmer
  • Fläche 250 m2
  • 4 Badezimmer
  • Abstellraum

Allgemeine Merkmale

  • Heizung
  • Ohne parkplatz
  • Ohne furnish
  • Klimaanlage
  • Baujahr 1947
  • Energieausweis :
    Consumo:
    G
    999 kW h m2 / año
    Emisiones:
    G
    999 kg CO2 m2 / año

Gemeinschaftlich genutzte Austattung

  • Fahrstuhl
Inserat: 16241000004694

Lage

Castellana De Padilla

Karte anklicken, um sich darauf zu bewegen
9.000 € Preis des Inserats
32,19 €/m2€/m2 distrito
36,00 €/m2€/m2 des Inserats
Wie viel würdest Du bezahlen?
Entwicklung €/m2 der Zone in Madrid (Barrio de Salamanca)
Sollen wir Ihnen mitteilen, wenn ein Inserat wie dieses veröffentlicht wird? Legen Sie Ihre Benachrichtigungen an und wir informieren Sie per E-Mail über neue und geänderte Inserate
 

Kontaktieren DIZA Consultores

Referenz der Anzeige habitaclia/ALQNZLPMP:

Die Telefonnummer wird angezeigt after sending your contact to the announcer to attend you.
Die Telefonnummer wird nach Kontakt angezeigt
Sending...