Bewertung gespeichert!
Diese Info sehen nur Sie
Kommentar gespeichert!
Fügen Sie eine bewertung bzw. Einen Kommentar zu dieser Anzeige hinzu. Nurfür Sie sichtbar

Miete büro in paseo bonanova 67 in Tres Torres Barcelona

  • 3.732 m2
  • 10,68 €/m2

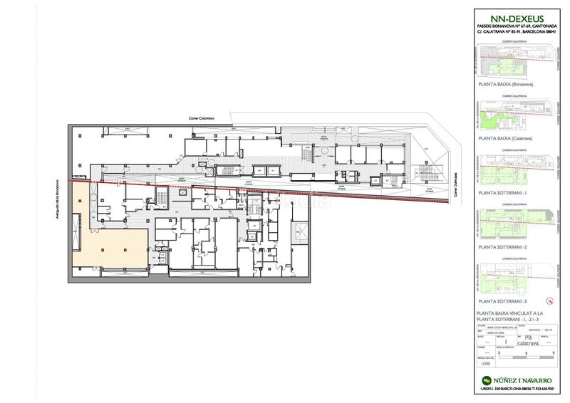
Actualizado: 28Nov Presentamos el equipamiento sanitario Bonanova 69, un espacio para desarrollar consultorios médicos y/o una clínica ambulatoria en la zona alta de Barcelona. La mejor ubicación para implantar tu equipamiento.

Situado en los bajos de la antigua sede de la Clínica Dexeus, actualmente SAR Quavitae, la zona es conocida por albergar consultorios médicos y quirófanos de todo tipo. Una de sus mejores características es su excelente ubicación.

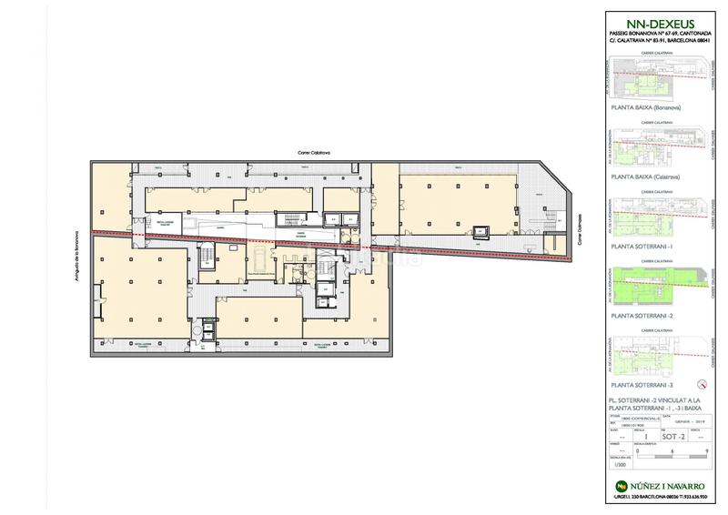
El equipamiento sanitario, con una superficie de más de 4.000 m² construidos, está dividido en 4 plantas, conectadas por 2 ascensores y con dos entradas principales: una por Bonanova, 69 y otra en el chaflán de Calatrava con Dalmases. También dispone de acceso de ambulancias.

El estado actual del local permitirá al arrendatario adecuarlo a las necesidades del uso sanitario idóneo para su actividad. Las instalaciones tienen la capacidad de cubrir las distintas especialidades de medicina, con espacios adaptados para consultorios médicos y/o quirófanos de día: traumatología, dermatología, oftalmología, etc.

Edificio ubicado estratégicamente en la ciudad de Barcelona, ya que en la zona de influencia conviven los principales y más prestigiosos grupos médicos y hospitalarios de Barcelona, con ofertas de servicios integrados y de gran calidad.

A nivel de comunicaciones y transporte público, el edificio tiene un fácil acceso desde cualquier zona de la ciudad y alrededores. Está situada a 500 metros de la boca sur del túnel de Vallvidrera y de la salida 9 de la Ronda de Dalt; autobuses urbanos líneas 75 y 123 y FGC, Estación de Sarrià (L6 y L12).

Las instalaciones no cuentan con aparcamiento propio pero disponemos de parking a pocos metros del edificio, en la calle Escoles pies, 102 (Parking NN Bonanova).

letzte Änderung

Aufteilung

  • Fläche 3732 m2
  • Terrasse 17 m2

Allgemeine Merkmale

  • Baujahr 2013
  • Energieausweis :
    Consumo:
    C
    322 kW h m2 / año
    Emisiones:
    B
    64 kg CO2 m2 / año
Inserat: 672001777271

Lage

Tres Torres PASEO BONANOVA 67

Karte anklicken, um sich darauf zu bewegen
Sollen wir Ihnen mitteilen, wenn ein Inserat wie dieses veröffentlicht wird? Legen Sie Ihre Benachrichtigungen an und wir informieren Sie per E-Mail über neue und geänderte Inserate
 

Kontaktieren Grup Núñez i Navarro

Referenz der Anzeige habitaclia/180010019000:

Die Telefonnummer wird angezeigt after sending your contact to the announcer to attend you.
Die Telefonnummer wird nach Kontakt angezeigt
Sending...