Bewertung gespeichert!
Diese Info sehen nur Sie
Kommentar gespeichert!
Fügen Sie eine bewertung bzw. Einen Kommentar zu dieser Anzeige hinzu. Nurfür Sie sichtbar

Wohngrundstück in Cap Martí - El Tossalet - Pinomar Xàbia

  • 2.600 m2
  • 327 €/m2

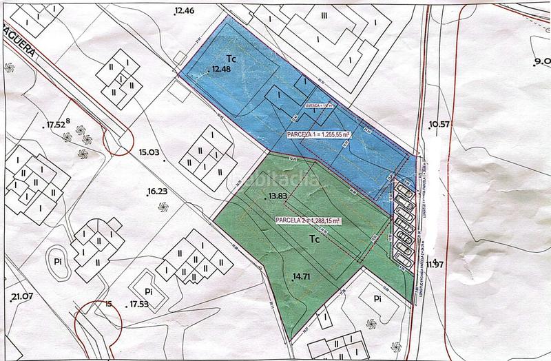
Interesante para inversores - Parcela de 2.600 m2 con casa y posibilidad de división en dos parcelas edificables
Esta parcela se encuentra a muy poca distancia de la playa de arena de Jávea y ofrece una excelente oportunidad de inversión. La parcela se puede dividir perfectamente en dos parcelas edificables independientes de unos 1.300 m2 cada una, aptas para realizar dos villas de lujo.
Actualmente, la parcela contiene una villa de una sola planta con una superficie construida de 152 m². La propiedad cuenta con un salón con cocina abierta, un segundo salón-comedor con cocina cerrada, tres dormitorios, dos baños y un patio con trastero.
Esta parcela se encuentra a poca distancia de la playa de arena de Jávea y goza de una excelente ubicación cerca de todos los servicios. Supermercados, restaurantes, consultas médicas, instalaciones deportivas y otras necesidades diarias se encuentran a poca distancia. Esta ubicación combina la privacidad con la comodidad de una ubicación céntrica.

letzte Änderung

Aufteilung

  • Fläche 2600 m2
Inserat: 15214000003949

Lage

Cap Martí - El Tossalet - Pinomar

Karte anklicken, um sich darauf zu bewegen
Sollen wir Ihnen mitteilen, wenn ein Inserat wie dieses veröffentlicht wird? Legen Sie Ihre Benachrichtigungen an und wir informieren Sie per E-Mail über neue und geänderte Inserate
 

Kontaktieren Andrea & Olaf Boutique Inmobiliaria

Referenz der Anzeige habitaclia/B20160:

Die Telefonnummer wird angezeigt after sending your contact to the announcer to attend you.
Die Telefonnummer wird nach Kontakt angezeigt
Sending...