Favorito y comentario
Wohngrundstück in Mas Alba Sant Pere de Ribes
Main characteristics
- 550 m2
- 527 €/m2
Detailed information
Solar en Mas Alba con Proyecto
Nos complace presentar este magnifico solar junto con un proyecto de vivienda unifamiliar única, concebida para quienes valoran la arquitectura personalizada, el confort contemporáneo y el contacto directo con la naturaleza. Situado en una parcela esquinera de forma singular, en el corazón de Mas Alba, este terreno ha sido la inspiración para desarrollar un diseño arquitectónico excepcional que se aleja de lo convencional.
'Ubicación y Entorno'
El solar linda directamente con una zona boscosa protegida, lo que garantiza vistas permanentes a la naturaleza, privacidad absoluta y una tranquilidad difícil de encontrar. La orientación sur, combinada con amplias aperturas acristaladas, permite disfrutar de una luminosidad natural privilegiada durante todo el año.
'Diseño Arquitectónico'
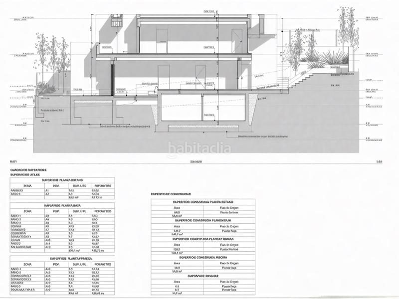
La vivienda se articula en tres niveles:
*Planta Sótano:
* Garaje subterráneo con capacidad para dos vehículos y zona de almacenaje.
*Planta Principal:
* Suite principal con baño en suite.
* Habitación doble.
* Baño completo + aseo de cortesía.
* Cocina de gran formato abierta al comedor y al salón, con un atractivo desnivel que diferencia sutilmente el área de sofás.
* Grandes ventanales que conectan con el porche, jardín y piscina, todo orientado al sur con vistas despejadas al bosque.
*Planta Superior:
* Dos suites adicionales con baños en suite.
* Un despacho o habitación polivalente, ideal como zona de trabajo por su excelente iluminación natural y vistas al entorno verde.
* Acceso a amplias terrazas con vistas despejadas y orientación óptima.
Calidad Constructiva y Eficiencia Energética*
El proyecto contempla una construcción tradicional, sólida y duradera, complementada con las tecnologías más avanzadas y materiales de alta gama. Gracias al excelente aislamiento térmico, la vivienda consigue una reducción de consumo energético de hasta un 70%, posicionándose como una opción sostenible y altamente eficiente.
Proyecto Aprobado y Personalizable*
Una ventaja estratégica de esta propuesta es que el proyecto ya cuenta con aprobación urbanística. Solo es necesario renovar la licencia, lo que permite agilizar significativamente los plazos. Además, aún existe margen para introducir modificaciones personalizadas que aseguren una adaptación perfecta al estilo de vida y necesidades específicas de su familia.
Una Vivienda Que Destaca Por Su Esencia Única*
Más que una casa, esta propuesta representa un estilo de vida. Una combinación armónica entre diseño contemporáneo, eficiencia energética, y entorno natural. Si busca una residencia especial, con carácter propio y calidad garantizada, esta es su oportunidad.
*Estamos aquí para acompañarle en cada etapa del proceso, asegurando una experiencia ágil, cercana y adaptada a sus expectativas.
Los renders, fotografías, planos y proyectos no constituyen una oferta contractual y es solo a modo informativo de como finalmente podría quedar la vivienda. Sí incluye el proyecto con acabados similares a las fotos y renders, no siendo estos definitivos.
#ref:SÒL_350
letzte Änderung
Aufteilung
- Fläche 550 m2
Gallery
Lage
Mas Alba N/A
