Bewertung gespeichert!
Diese Info sehen nur Sie
Kommentar gespeichert!
Fügen Sie eine bewertung bzw. Einen Kommentar zu dieser Anzeige hinzu. Nurfür Sie sichtbar

Wohngrundstück in avenida jaime i 30 in El Balcó-Jaume I Oropesa del Mar

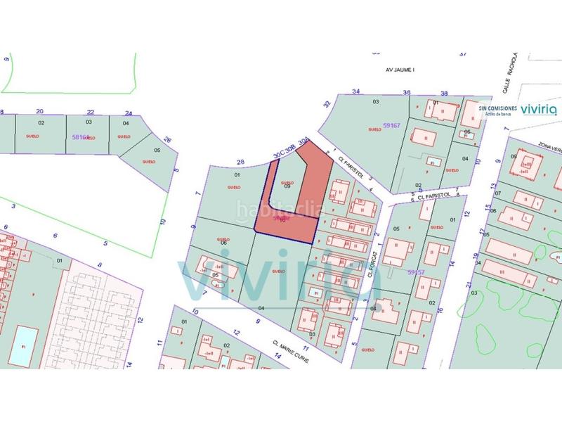
Avenida Jaime I 30

  • 463 m2
  • 121 €/m2

Suelo Urbano en venta, Av Jaume I, Oropesa del Mar

SIN COMISIONES DE AGENCIA.

Solar ubicado en Oropesa, Castellón. Se trata de un solar de 436 m² y de 464 m² que admite una edificabilidad aproximada de 249 m²t y de 265 m²t, respectivamente. Tiene como uso vivienda unifamiliar aislada, pareada y agrupada Parámetros Parcela mínima 300 m2 Ocupación máxima 40% PB+2 Retranqueos 2 m Obligación de dotar una plaza de aparcamiento en local cerrado en el interior de la parcela. El terreno cuenta con todas las infraestructuras básicas necesarias, como suministro de agua, electricidad, alumbrado público, viales y acerado, lo que lo convierte en una excelente oportunidad para desarrollar proyectos tanto residenciales como mixtos. Este solar se encuentra en una zona céntrica de Oropesa, próxima a puntos clave de la localidad. Cuenta con buenas conexiones gracias a su proximidad a la autopista AP-7 y la carretera N-340, que facilitan el acceso tanto al interior como a las playas cercanas. Además, la estación de tren de Oropesa del Mar se encuentra a una distancia cercana, ofreciendo servicio ferroviario de media y larga distancia. También hay líneas de autobús que conectan con las localidades colindantes y otros puntos de interés de la provincia. En el entorno se pueden encontrar numerosos servicios como supermercados, restaurantes, farmacias, centros deportivos y colegios. Asimismo, destaca la cercanía al Puerto Deportivo Oropesa del Mar, la Playa de La Concha, y el emblemático Parque Natural del Desierto de Las Palmas, ofreciendo una combinación única de comodidad, ocio y naturaleza. La zona es ideal tanto para proyectos residenciales como para iniciativas comerciales que aprovechen el flujo turístico que caracteriza a esta localidad.

En Viviria somos especialistas en la gestión integral de los activos inmobiliarios. Te acompañamos en todo el proceso de compraventa, tanto si eres comprador como vendedor, con servicios personalizados y exclusivos. ¡En Viviria te sentirás como en casa!

Inscritos en el registro de agentes de intermediación inmobiliaria de la Comunidad Valenciana, RAICV 1326.

También puedes contactarnos por : (teléfono oculto)

¡Ven a visitarlo! REF: 090_934
#ref:090_934

letzte Änderung

Aufteilung

  • Fläche 463 m2
Inserat: 31348000002597

Lage

El Balcó-Jaume I Avenida Jaime I 30

Karte anklicken, um sich darauf zu bewegen
Sollen wir Ihnen mitteilen, wenn ein Inserat wie dieses veröffentlicht wird? Legen Sie Ihre Benachrichtigungen an und wir informieren Sie per E-Mail über neue und geänderte Inserate
 

Kontaktieren VIVIRIA SOLUCIONES SL

Referenz der Anzeige habitaclia/090_934:

Die Telefonnummer wird angezeigt after sending your contact to the announcer to attend you.
Die Telefonnummer wird nach Kontakt angezeigt
Sending...