Bewertung gespeichert!
Diese Info sehen nur Sie
Kommentar gespeichert!
Fügen Sie eine bewertung bzw. Einen Kommentar zu dieser Anzeige hinzu. Nurfür Sie sichtbar
310.000 € Benachrichtigen, wenn sinkt
ist gesunken 10.000 €

Wohngrundstück in Güéjar Sierra

Calle Serpentina

  • 419 m2
  • 740 €/m2

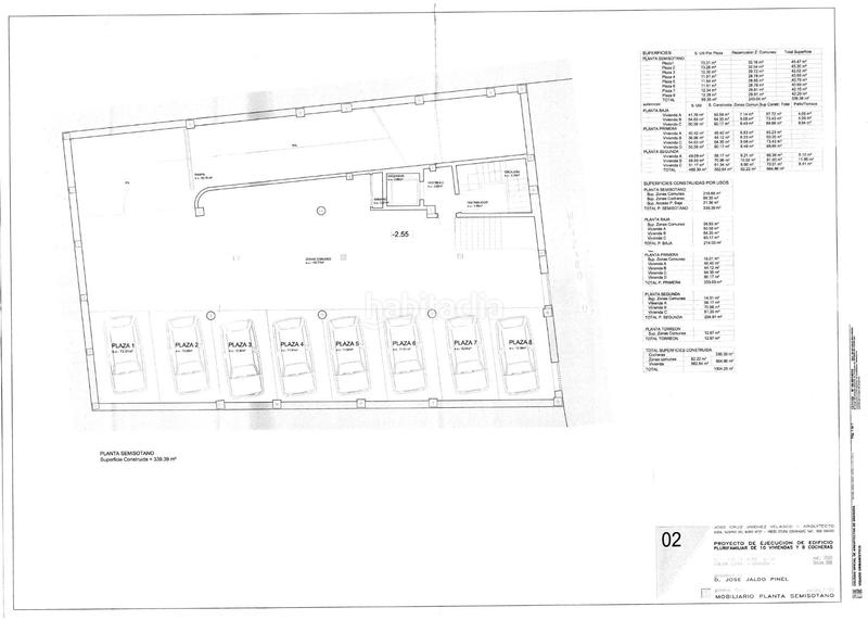
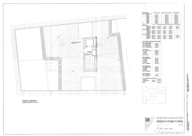
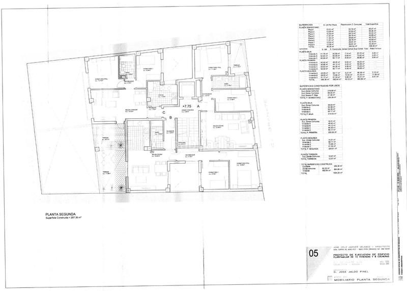
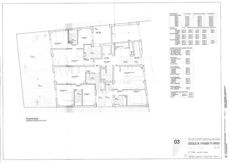
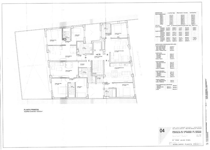
EDIFICIO en Gejar Sierra

INTERESANTE oportunidad de Inversión.

Edificio por terminar con proyecto para 10 viviendas y 8 garajes en el termino de Gúejar Sierra. En uno de los pueblos más bonitos del Parque Natural de Sierra Nevada y a escasos minutos de la Estación de Esquí. Con una ubicación excepcional y unas visitas impresionantes, hacen de más que interesante esta oportunidad. Tiene grandes posibilidades, bien como Viviendas Turísticas o bien como inversión en Promoción de Viviendas o para alquiler de larga temporada.

El PVP indicado no incluye impuestos ni gastos de escritura. Honorarios de agencia no incluidos. Las superficies expresadas en esta página tienen carácter descriptivo y son aproximadas. Los precios puedes ser susceptibles de modificación sin previo aviso.

letzte Änderung

Aufteilung

  • Fläche 419 m2
Inserat: 46454000000746

Lage

Calle Serpentina

Karte anklicken, um sich darauf zu bewegen
Sollen wir Ihnen mitteilen, wenn ein Inserat wie dieses veröffentlicht wird? Legen Sie Ihre Benachrichtigungen an und wir informieren Sie per E-Mail über neue und geänderte Inserate
 

Kontaktieren Grupo Inmobiliario Nueva Granada

Referenz der Anzeige habitaclia/UH06711:

Die Telefonnummer wird angezeigt after sending your contact to the announcer to attend you.
Die Telefonnummer wird nach Kontakt angezeigt
Sending...