Favorito y comentario
Wohngrundstück in Arenys de Munt
Main characteristics
- 3.168 m2
- 402 €/m2
Detailed information
Oportunidad Única para Constructores y Promotores en el Corazón de Arenys de Munt!
¡Oportunidad Única para Constructores y Promotores en el Corazón de Arenys de Munt!
Presentamos un paquete exclusivo de dos terrenos urbanos ubicados en el centro de Arenys de Munt, ideal para desarrolladores visionarios que buscan maximizar su inversión en una ubicación estratégica y en pleno crecimiento.
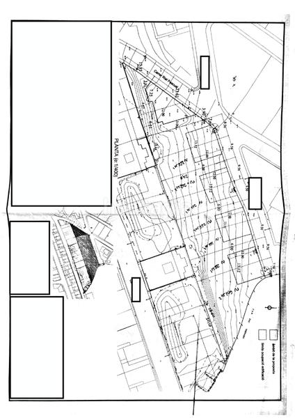
Terreno 1: 8 Parcelas para Viviendas Unifamiliares
Este primer terreno está compuesto por 8 parcelas de aproximadamente 266 m² cada una, perfectas para la construcción de 8 viviendas unifamiliares en un entorno residencial atractivo y tranquilo. La configuración del terreno permite un diseño moderno y funcional, con espacios amplios y luminosos, ideal para satisfacer la demanda de familias que buscan calidad de vida y proximidad a todos los servicios esenciales.
Características clave:
Superficie total: ~2,128 m² (8 parcelas de 266 m² aprox.)
Uso previsto: Viviendas unifamiliares
Ubicación privilegiada: En el centro de Arenys de Munt, cerca de comercios, colegios y zonas de ocio.
Proyecto urbanístico desarrollado: Listo para iniciar construcción.
Terreno 2: Complejo Residencial y Comercial
El segundo terreno cuenta con una extensión de 920 m², ideal para un desarrollo mixto con 16 pisos, 22 parkings y 2 locales comerciales. La construcción permitida es de PB+1, lo que garantiza una integración armoniosa con el entorno urbano, combinando funcionalidad y estética.
Características clave:
Superficie total: 920 m²
Capacidad constructiva:
16 pisos de diseño contemporáneo.
22 plazas de parking, cubriendo las necesidades de los residentes y visitantes.
2 locales comerciales en planta baja, perfectos para negocios de proximidad.
Construcción PB+1: Excelente relación de densidad y altura para una óptima integración urbana.
Proyecto urbanístico desarrollado: Listo para iniciar la obra.
Paquete Exclusivo para Constructores y Promotores
Ambos terrenos se venden como un paquete único, ofreciendo una gran oportunidad de inversión con un proyecto ya desarrollado, lo que reduce tiempos y costos de planificación. La ubicación en el centro de Arenys de Munt garantiza una alta demanda tanto en el mercado residencial como comercial.
¿Por Qué Invertir en Arenys de Munt?
Ubicación estratégica: A pocos minutos de la costa y con excelentes conexiones a Barcelona y Girona.
Creciente demanda habitacional: Ideal para familias y profesionales que buscan tranquilidad sin renunciar a servicios urbanos.
Potencial comercial: Perfecto para pequeños negocios y comercios de proximidad.
No Dejes Pasar Esta Oportunidad
Si eres constructor o promotor en busca de un proyecto rentable y con gran proyección de crecimiento, este paquete de terrenos en Arenys de Munt es para ti. ¡Contacta ahora y asegura tu inversión en una de las zonas con mayor potencial de la región!
¡Agenda tu visita hoy mismo!
CATALÀ:
Oportunitat Única per a Constructors i Promotors en el Cor d'Arenys de Munt!
Presentem un paquet exclusiu de dos terrenys urbans situats en el centre d'Arenys de Munt, ideal per a desenvolupadors visionaris que busquen maximitzar la seva inversió en una ubicació estratègica i en ple creixement.
Terreny 1: 8 Parcel·les per a Habitatges Unifamiliars
Aquest primer terreny està compost per 8 parcel·les d'aproximadament 266 m² cadascuna, perfectes per a la construcció de 8 habitatges unifamiliars en un entorn residencial atractiu i tranquil. La configuració del terreny permet un disseny modern i funcional, amb espais amplis i lluminosos, ideal per a satisfer la demanda de famílies que busquen qualitat de vida i proximitat a tots els serveis essencials.
Característiques clau:
Superfície total: ~2,128 m² (8 parcel·les de 266 m² aprox.)
Ús previst: Habitatges unifamiliars
Ubicació privilegiada: En el centre d'Arenys de Munt, prop de comerços, col·legis i zones d'oci.
Projecte urbanístic desenvolupat: Llest per a iniciar construcció.
Terreny 2: Complex Residencial i Comercial
El segon terreny compta amb una extensió de 920 m², ideal per a un desenvolupament mixt amb 16 pisos, 22 pàrquings i 2 locals comercials. La construcció permesa és de PB+1, la qual cosa garanteix una integració harmoniosa amb l'entorn urbà, combinant funcionalitat i estètica.
Característiques clau:
Superfície total: 920 m²
Capacitat constructiva:
16 pisos de disseny contemporani.
22 places de pàrquing, cobrint les necessitats dels residents i visitants.
2 locals comercials en planta baixa, perfectes per a negocis de proximitat.
Construcció PB+1: Excel·lent relació de densitat i altura per a una òptima integració urbana.
Projecte urbanístic desenvolupat: Llest per a iniciar l'obra.
Paquet Exclusiu per a Constructors i Promotors
Tots dos terrenys es venen com un paquet únic, oferint una gran oportunitat d'inversió amb un projecte ja desenvolupat, la qual cosa redueix temps i costos de planificació. La ubicació en el centre d'Arenys de Munt garanteix una alta demanda tant en el mercat residencial com comercial.
Per Què Invertir a Arenys de Munt?
Ubicació estratègica: A po
letzte Änderung
Aufteilung
- Fläche 3168 m2
Gallery
Lage
