Bewertung gespeichert!
Diese Info sehen nur Sie
Kommentar gespeichert!
Fügen Sie eine bewertung bzw. Einen Kommentar zu dieser Anzeige hinzu. Nurfür Sie sichtbar

Wohngrundstück in calle del maestro chapí 16 in Zona Cantereria Burjassot

Solar en esquina en Burjassot con proyecto básico para 14 viviendas oportunidad promotora junto a las universidades

??? Solar en esquina en Burjassot con proyecto básico para 14 viviendas

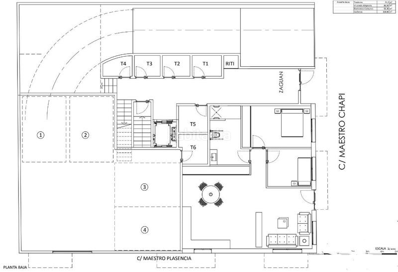
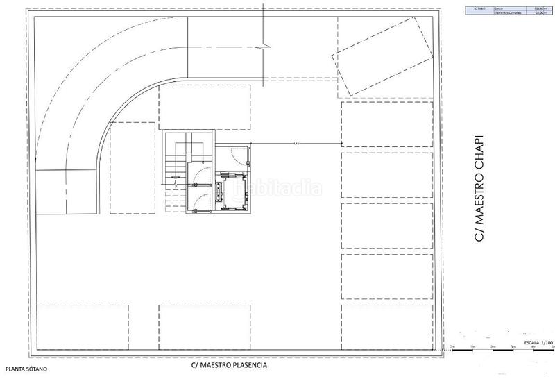
Se ofrece solar urbano en esquina de 351 m², situado en calle Maestro Chapí, Burjassot, muy próximo a las universidades y con excelentes comunicaciones con Valencia capital.

El solar dispone de proyecto básico redactado, que contempla la construcción de un edificio con planta sótano, planta baja, dos plantas tipo y una tercera planta retranqueada. La distribución prevista es de 13 viviendas en altura y 1 vivienda adaptada en planta baja, 14 plazas de garaje en sótano y 6 trasteros.

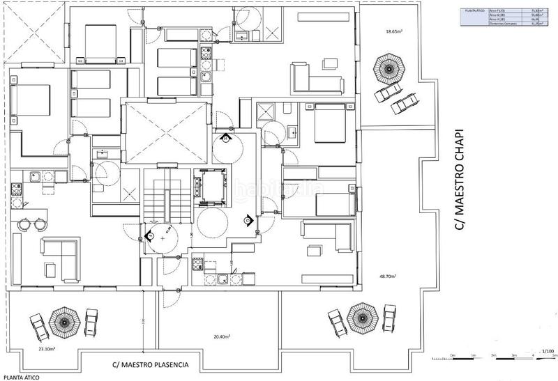
En la planta 3ª retranqueada se proyectan los áticos con amplias terrazas, aportando valor añadido y atractivo comercial al conjunto residencial.

La edificabilidad estimada es de unos 1.250 m² de techo residencial, sin incluir las superficies destinadas a estacionamiento ni almacenamiento, optimizando al máximo el aprovechamiento del solar y su doble orientación.

Burjassot mantiene una altísima demanda de vivienda en alquiler, impulsada por la proximidad al campus universitario, la excelente conexión con Valencia y la escasez de oferta de obra nueva.

Por su ubicación, características y viabilidad, este solar representa una excelente oportunidad para promotoras o inversores que buscan desarrollar un proyecto residencial rentable, moderno y con rápida absorción de mercado.d atractiva y fuerte demanda en alquiler. El propietario ha otorgado exclusiva para la comercialización lo que le garantiza información completa, veraz, servicio de calidad, trato fácil y un proceso sin interferencias de terceros.Se ruega no molestar al propietario,ocupantes,vecinos o conserjes.Las agencias inmobiliarias pueden contactar para colaborar y los compradores pueden delegar la búsqueda en Keller Williams Cpi gestión que con más de 25 años en el mercado inmobiliario,cuenta con seguro de responsabilidad profesional y caución.Registrada como Agencia Inmobiliaria 1.153 en el Registro de la C.V,Agente de la Propiedad Inmobiliaria Colegiada 1.501 y Agencia Inmobiliaria Colaboradora de la Generalitat Valenciana HDAIC_8_2022_V.Confíe sólo en profesionales cualificados,registrados,con garantías y con domicilio abierto al público para ejercer sus derechos.La oferta está sujeta a cambios de precio o retirada del mercado.Salvo que en el anuncio se indique expresamente lo contrario,el precio no incluye:honorarios de agencia,impuestos,notaría,gestoría y registro.Corresponde al vendedor el derecho a elegir notario.Este anuncio no es vinculante y puede contener errores.Se muestra a título informativo,no contractual.Para verificar detalles como medidas,circunstancias físicas,jurídicas o cualquier otra info requerida por normativas estatales y autonómicas,contacte con el agente inmobiliario anunciante.

letzte Änderung

Inserat: 8188000003577

Lage

Zona Cantereria Calle del Maestro Chapí 16

Karte anklicken, um sich darauf zu bewegen
Sollen wir Ihnen mitteilen, wenn ein Inserat wie dieses veröffentlicht wird? Legen Sie Ihre Benachrichtigungen an und wir informieren Sie per E-Mail über neue und geänderte Inserate
 

Kontaktieren KW CPI GESTIÓN

Referenz der Anzeige habitaclia/begona-217:

Die Telefonnummer wird angezeigt after sending your contact to the announcer to attend you.
Die Telefonnummer wird nach Kontakt angezeigt
Sending...