Bewertung gespeichert!
Diese Info sehen nur Sie
Kommentar gespeichert!
Fügen Sie eine bewertung bzw. Einen Kommentar zu dieser Anzeige hinzu. Nurfür Sie sichtbar

Reihenhaus in Sant Celoni

  • 374 m2
  • 6 hab.
  • 2 Badezimmer
  • 882 €/m2

Exclusiva casa a reformar en Sant Celoni

EN EL CENTRO DE SANT CELONI

Exclusivo inmueble en el centro, para reformarlo íntegramente y aprovechar la construcción actual, el edificio da a dos calles.

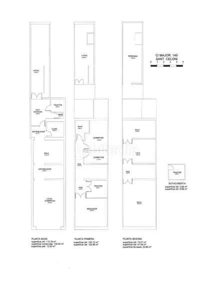
En este momento y según catastro la superficie construida es de 357m2 y la superficie gráfica es de 157m2 (Según catastro).

Según plano urbanístico se puede construir B+2 inmueble con muchas posibilidades para inversores.

Buena conexión a la autopista AP-7 y carretera comarcal C-35, a tan solo 40 minutos de Barcelona. Estación de tren cercana. Aproximadamente 3 minutos con coche, y 15 minutos con bicicleta por carril bici, iluminado por las noches.

Su envidiable localización proporciona el lujo de poder disfrutar de la montaña con el macizo del Montseny y el Montnegre a tocar de la mano y la playa a tan solo media hora de coche.

En cumplimiento de la ley 3/2917 del 13/02/2018 del Código Civil de Catalunya, por el que se aprueba el Reglamento de Información al Consumidor en la compra venta de viviendas en Catalunya, se informa al cliente que los gastos Notariales, Registrales e Impuestos que le sean de aplicación, ITP ó IVA +AJD, y otros gastos inherentes a la compraventa no están incluidos en el precio. [IW]

letzte Änderung

Aufteilung

  • 6 Zimmer
  • Fläche 374 m2
  • Gelände 157 m2
  • 2 Badezimmer

Allgemeine Merkmale

  • Baujahr 1800
  • Energieausweis :
    Consumo:
    G
    99 kW h m2 / año
    Emisiones:
    G
    99 kg CO2 m2 / año
Inserat: 42220000000133

Lage

Karte anklicken, um sich darauf zu bewegen
330.000 € Preis des Inserats
2.030 €/m2€/m2 población
882 €/m2€/m2 des Inserats
57% billiger als Durchschnitt*
Entwicklung €/m2 der Zone in Sant Celoni
Sollen wir Ihnen mitteilen, wenn ein Inserat wie dieses veröffentlicht wird? Legen Sie Ihre Benachrichtigungen an und wir informieren Sie per E-Mail über neue und geänderte Inserate
 

Kontaktieren IMMOBILIÀRIA MONTSENY MONTNEGRE

Referenz der Anzeige habitaclia/C24172:

Die Telefonnummer wird angezeigt after sending your contact to the announcer to attend you.
Die Telefonnummer wird nach Kontakt angezeigt
Sending...