Bewertung gespeichert!
Diese Info sehen nur Sie
Kommentar gespeichert!
Fügen Sie eine bewertung bzw. Einen Kommentar zu dieser Anzeige hinzu. Nurfür Sie sichtbar

Reihenhaus mit heizung parking pool in Palomas Madrid

  • 338 m2
  • 4 hab.
  • 3 Badezimmer
  • 3.831 €/m2

Chalet adosado, 4 habitaciones, buhardilla, sótano 2 baños, aseo, piscina, garaje


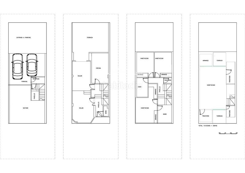
Chalet adosado en el barrio residencial Palomas. Tiene 338 m2 construidos en una parcela de 129 m2 y consta de 4 plantas: sótano y garaje, planta baja, primera planta y buhardilla.


Chalet muy luminoso con orientación sureste, que se distribuye de la siguiente manera, planta baja, que incluye el recibidor, un aseo, el salón-comedor de 38 m2 en dos alturas y salida directa al jardín de otros 38 m²; cocina independiente de 16 m², también con salida al jardín. Desde el recibidor se accede por la escalera al sótano, garaje y pisos superiores. El suelo de toda la planta baja es de mármol salvo en la cocina que es de gres.

La primera planta cuenta con tres dormitorios. El dormitorio principal es de 17 m², con baño en suite y zona de vestidor; 2 dormitorios simétricos de 12 m² cada uno, con armarios empotrados y que comparten un baño completo grande y un trastero. Los suelos de los dormitorios son de parquet.

La buhardilla, muy luminosa, cuenta con una sala diáfana de más de 35 m², con 2 terrazas y 3 cuartos más un armario de almacenaje, uno de ellos aloja la caldera de gas. Los techos están aislados y el suelo es de tarima de madera.

El sótano de 38 m² metros cuadrados cuenta con barra de bar de obra, con fregadero, encimera de madera y un trastero anexo. El garaje tiene capacidad para 2 coches y 2/3 motos y dispone de un lavadero para bicis o motos.

La urbanización tiene piscina compartida a escasos 50 metros, muy tranquila y familiar, con piscina para adultos y piscina infantil, zona de césped y vestuarios, incluyendo una acción de propietario.

Tiene caldera estanca de gas natural para agua caliente sanitaria y calefacción mediante radiadores. Todas las estancias cuentan con aire acondicionado tipo split/bomba de calor y la carpintería es de Kömmerling, con ventanas oscilo batientes, mosquiteras y toldos.

Chalet ubicado a escasa distancia de las áreas de influencia del aeropuerto e IFEMA; Centros Comerciales como El Corte Ingles, Hipercor, Arturo Soria, Plenilunio, etc; Varios parques de grandes dimensiones como Juan Carlos I, Juan Pablo II, Quinta de los Molinos, El Capricho, y el Anillo Verde; Farmacias, centros de fitness y fisioterapia en los locales cercanos; Numerosos colegios internacionales en las cercanías.

Acceso muy fácil a la A-2, M11, M12, M-40, M30 y al aeropuerto Adolfo Suárez Madrid-Barajas; A 5 minutos andando se encuentra la estación de Metro de Canillejas y numerosos autobuses que se dirigen al centro de Madrid y uno que va directo sin paradas hasta el Hospital Ramón y Cajal.
Conforme se requiere en el Decreto 98/2022 de 29 de julio de 2022, del Consell de la Comunitat Valenciana, por el que se regula el Registro de Agentes de Intermediación Inmobiliaria de la Comunitat, cumple con los siguientes requisitos y está inscrita en dicho registro con el número RAICV1427.
Asociación de agentes de la propiedad inmobiliaria de Alicante APIAL, nº de asociado A-111.
El precio de venta no incluye ITP, GASTOS DE NOTARÍA Y REGISTRO.




letzte Änderung

Aufteilung

  • 4 Zimmer
  • Fläche 338 m2
  • 3 Badezimmer
  • Küche mit Essplatz: No
  • Abstellraum

Allgemeine Merkmale

  • Heizung
  • Privates Schwimmbad
  • Parkplatz
  • Klimaanlage
  • Baujahr 1997
  • Energieausweis :
    Consumo:
    G
    999 kW h m2 / año
    Emisiones:
    G
    999 kg CO2 m2 / año

Gemeinschaftlich genutzte Austattung

  • Gemeinschaftsschwimmbad
Inserat: 46154000000192

Lage

Palomas

Karte anklicken, um sich darauf zu bewegen
1.295.000 € Preis des Inserats
4.851 €/m2€/m2 distrito
3.831 €/m2€/m2 des Inserats
21% billiger als Durchschnitt*
Wie viel würdest Du bezahlen?
Entwicklung €/m2 der Zone in Madrid (Hortaleza)
Sollen wir Ihnen mitteilen, wenn ein Inserat wie dieses veröffentlicht wird? Legen Sie Ihre Benachrichtigungen an und wir informieren Sie per E-Mail über neue und geänderte Inserate
 

Kontaktieren Amura Inmobiliaria Alicante

Referenz der Anzeige habitaclia/2098:

Die Telefonnummer wird angezeigt after sending your contact to the announcer to attend you.
Die Telefonnummer wird nach Kontakt angezeigt
Sending...