Bewertung gespeichert!
Diese Info sehen nur Sie
Kommentar gespeichert!
Fügen Sie eine bewertung bzw. Einen Kommentar zu dieser Anzeige hinzu. Nurfür Sie sichtbar

Reihenhaus mit parking in El Brillante -El Naranjo - El Tablero Córdoba

  • 160 m2
  • 4 hab.
  • 2 Badezimmer
  • 2.188 €/m2

Chalet adosado con jardín en zona Calasancio Todo exterior y listo para entrar a vivir!

Vivir en Calasancio es elegir tranquilidad, entorno familiar y una ubicación privilegiada dentro de la ciudad. Esta vivienda unifamiliar te ofrece justo eso: independencia, privacidad y una vida cómoda sin gastos de comunidad.

Ubicado en una zona residencial muy demandada, rodeada de naturaleza, colegios, comercios de proximidad y perfectamente comunicada con el centro, El Brillante y la Ronda Norte.

Un hogar listo para entrar a vivir.

La vivienda se encuentra en excelente estado, sin necesidad de reformas. Su diseño funcional permite que todas las estancias sean exteriores, con ventilación y luz natural durante todo el día, algo que marca la diferencia en cualquier época del año.

Con una superficie generosa y una distribución equilibrada, este chalet está pensado para quienes buscan espacio, comodidad y la calidez de un verdadero hogar.

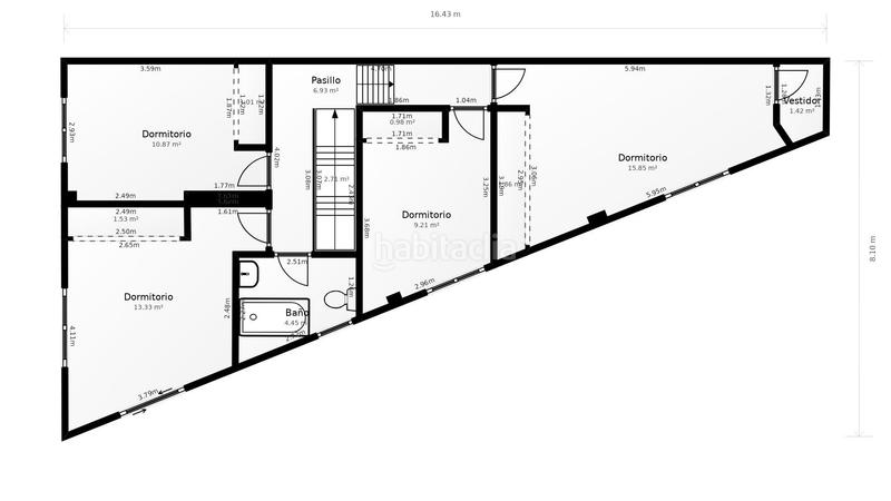
Distribución interior:
4 dormitorios amplios, todos con luz natural y espacio suficiente para armarios o zona de estudio

2 baños completos en perfecto estado.

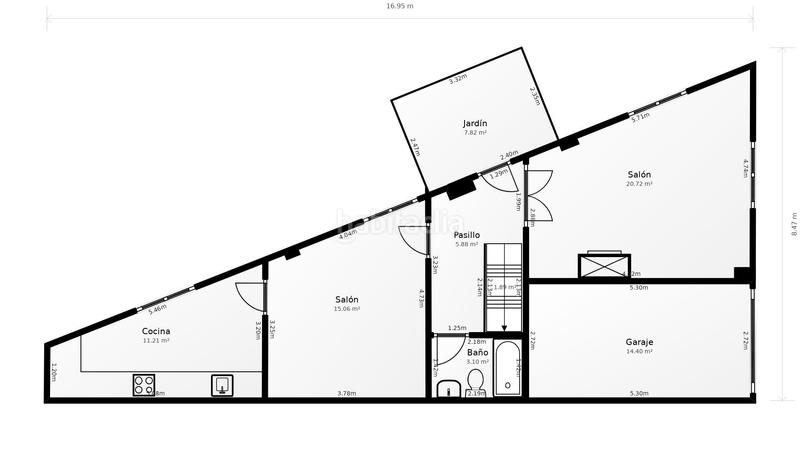
Salón independiente con chimenea, un espacio acogedor para reuniones familiares o tardes tranquilas en invierno

Cocina muy espaciosa con comedor integrado, perfecta para el día a día y también para recibir

Garaje privado con acceso directo a la vivienda.

Exterior privado y con encanto.

El jardín rodea la vivienda, con zonas ideales para comer al aire libre, disfrutar del buen tiempo, o crear un espacio de juegos para niños.


Acabados y detalles de calidad:
Suelo de mármol, elegante y duradero

Carpintería exterior de aluminio con cerramientos de calidad.

Instalaciones cuidadas, estructura sólida y materiales que reflejan el valor de una casa construida para durar

Una propiedad así no aparece cada semana: sin comunidad, con jardín, totalmente exterior y lista para entrar.

Ideal tanto para una familia que busca estabilidad como para quienes desean una segunda residencia cómoda y accesible dentro de la ciudad.

Llámanos y ven a conocer este chalet con alma propia, en una de las zonas más tranquilas y mejor valoradas de Córdoba.

Contáctanos para más información o para concertar tu visita. Tu nuevo hogar en Córdoba te está esperando.

INMOLIKE, tu inmobiliaria de confianza en Córdoba.
Infórmese sin compromiso, estamos encantados de atenderle. Le ofrecemos asesoramiento financiero gratuito.
INFORMACIÓN ADICIONAL: Para cumplir con la normativa vigente tenemos a disposición del cliente el Documento Informativo Abreviado (DIA) así como la información mínima solicitada en el artículo 31 de la Ley 12/2023, de 24 de mayo, por el Derecho a la Vivienda. Los precios indicados no tienen caducidad, pero pueden ser alterados sin previo aviso. En caso de venta, el precio corresponde únicamente al inmueble, no están incluidos el mobiliario ni los elementos decorativos. Los gastos de la compraventa serán según ley (Notaría, Registro de la Propiedad e Impuestos) y no están incluidos en el precio del inmueble reflejado, al igual que no están incluidos los honorarios de la Agencia Inmobiliaria que ascienden a un 2% del precio final de venta más el 21% de IVA, con un mínimo de 3.000 € más el 21% de IVA.

letzte Änderung

Aufteilung

  • 4 Zimmer
  • Fläche 160 m2
  • Gelände 161 m2
  • 2 Badezimmer

Allgemeine Merkmale

  • Parkplatz
  • Baujahr 1990
  • Energieausweis :
    Consumo:
    D
    35 kW h m2 / año
    Emisiones:
    E
    204 kg CO2 m2 / año
Inserat: 25472000001804

Lage

El Brillante -El Naranjo - El Tablero Calle de Agustín de la Oliva

Karte anklicken, um sich darauf zu bewegen
350.000 € Preis des Inserats
1.857 €/m2€/m2 distrito
2.188 €/m2€/m2 des Inserats
Entwicklung €/m2 der Zone in Córdoba (Norte-Sierra)
Sollen wir Ihnen mitteilen, wenn ein Inserat wie dieses veröffentlicht wird? Legen Sie Ihre Benachrichtigungen an und wir informieren Sie per E-Mail über neue und geänderte Inserate
 

Kontaktieren INMOLIKE

Referenz der Anzeige habitaclia/KSV-N257 :

Die Telefonnummer wird angezeigt after sending your contact to the announcer to attend you.
Die Telefonnummer wird nach Kontakt angezeigt
Sending...