Bewertung gespeichert!
Diese Info sehen nur Sie
Kommentar gespeichert!
Fügen Sie eine bewertung bzw. Einen Kommentar zu dieser Anzeige hinzu. Nurfür Sie sichtbar

Reihenhaus mit heizung parking in El Tablero San Bartolomé de Tirajana

  • 215 m2
  • 4 hab.
  • 3 Badezimmer
  • 2.488 €/m2

CASA UNIFAMILIAR EN CONSTRUCCIÓN EL TABLERO

PRIME CASAS vende exclusivo chalet de lujo adosado de construcción nueva y diseño moderno en EL TABLERO – San Bartolomé de Tirajana

Precio: 535.000 €

Superficie: 215 m² construidos
4 dormitorios | 3 baños | Garaje privado

Con una superficie construida de 215 m², esta propiedad combina diseño contemporáneo, materiales de alta calidad y un equipamiento tecnológico de última generación, ofreciendo el máximo confort y funcionalidad. La atención al detalle se aprecia en la iluminación, diseñada para regalar por la noche un ambiente acogedor e íntimo, un juegos de luces increíble. Hay aire condicionado en cada Habitación y en el salón.
Cada planta tiene su vídeo portero.
El cierre de la puerta principal es a través de aplicación, o si quiere con llaves tradicional.
La luces de las escaleras tienen sensores, como se sube o bajas se encienden automáticamente.

LA CONSTRUCCION SE TERMINÓ EL 5 DE OCTUBRE 2025, tiene GARANTIA CERTIFICADA POR PARTE DEL CONSTRUCTOR POR 10 AÑOS.

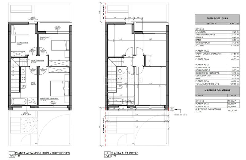
Planta baja: amplio y luminoso salón con grandes ventanales, cocina abierta totalmente equipada, aseo con ducha y terraza exterior ideal para disfrutar del clima canario todo el año.

Planta alta: tres dormitorios, el principal con amplias vistas al mar, y un elegante baño completo con doble lavabo, ducha de cristal y bañera.

Semisótano: dormitorio tipo suite con baño privado, zona de lavandería y acceso directo al garaje.

Equipamiento y extras:

- Aire acondicionado en todas las estancias.
- Videoportero en cada planta y cierre de puerta principal con control móvil.
- Iluminación inteligente y sensores de presencia.
- Mosquiteras en salón y dormitorios.
- Conexión LAN directa en todas las habitaciones.
- Doble contador eléctrico (semisótano independiente).
- Garantía de construcción de 10 años.

Ubicación:

Situado en una zona residencial tranquila, bien comunicada y cercana a colegios, centros comerciales, farmacias y servicios esenciales. A tan solo 500 m de la autopista y a pocos minutos de las playas del sur.

No dejes pasar esta oportunidad única.
Contáctanos para más información o para concertar una visita.

Información: Gastos e impuestos no incluidos.
Los datos expuestos son meramente orientativos
y pueden estar sujetos a errores u omisiones involuntarias.

letzte Änderung

Aufteilung

  • 4 Zimmer
  • Fläche 215 m2
  • Gelände 100 m2
  • 3 Badezimmer
  • Abstellraum

Allgemeine Merkmale

  • Heizung
  • Parkplatz
  • Klimaanlage
  • Baujahr 2025
  • In der Nähe von öffentlichen Verkehrsmitteln
  • Energieausweis :
    Consumo:
    G
    999 kW h m2 / año
    Emisiones:
    G
    999 kg CO2 m2 / año
Inserat: 44170000000115

Lage

El Tablero

Karte anklicken, um sich darauf zu bewegen
535.000 € Preis des Inserats
3.844 €/m2€/m2 población
2.488 €/m2€/m2 des Inserats
35% billiger als Durchschnitt*
Entwicklung €/m2 der Zone in San Bartolomé de Tirajana
Sollen wir Ihnen mitteilen, wenn ein Inserat wie dieses veröffentlicht wird? Legen Sie Ihre Benachrichtigungen an und wir informieren Sie per E-Mail über neue und geänderte Inserate
 

Kontaktieren PRIME CASAS - Real Estate by Daniela

Referenz der Anzeige habitaclia/V-83:

Die Telefonnummer wird angezeigt after sending your contact to the announcer to attend you.
Die Telefonnummer wird nach Kontakt angezeigt
Sending...