Bewertung gespeichert!
Diese Info sehen nur Sie
Kommentar gespeichert!
Fügen Sie eine bewertung bzw. Einen Kommentar zu dieser Anzeige hinzu. Nurfür Sie sichtbar

Landgut in Cala Vinyes Calvià

  • 1.600 m2
  • 622 €/m2

Solar residencial con proyecto y licencia en venta en Cala Vinyes, Mallorca

Este generoso solar de unos 1.600m2 se ofrece a la venta en una fantástica ubicación, a un paso de la playa y de los servicios de Cala Vinyes.

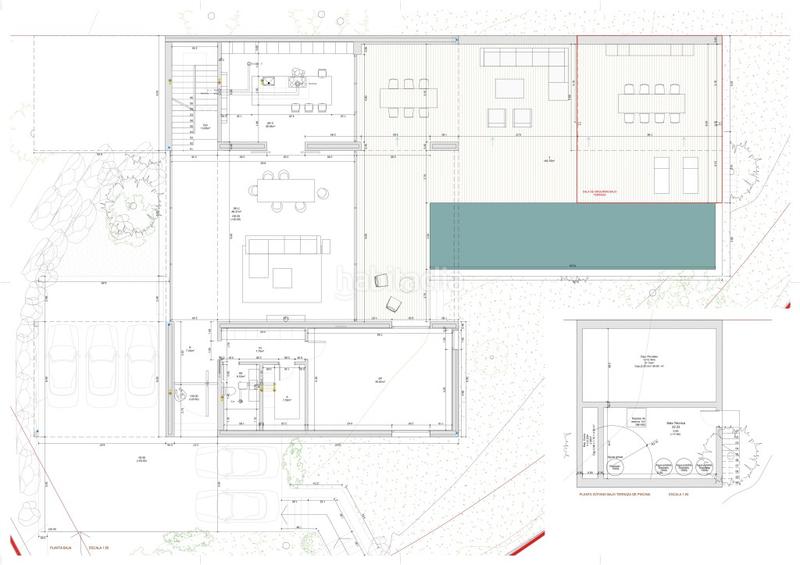
El solar se vende con licencia de obra y proyecto para villa moderna de 535m2 con cuatro dormitorios dobles, piscina y mucha privacidad.

Póngase en contacto con nosotros para obtener más información acerca de esta parcela con proyecto, a la venta en la codiciada localidad de Cala Vinyes en Calvià.

Calvià se encuentra en el oeste de Mallorca, a sólo 20 minutos de Palma y de su aeropuerto. Calvià cuenta con grandes playas y con una infraestructura moderna con tiendas, bares y restaurantes. Al mismo tiempo, ha sabido conservar su encanto de pueblo antiguo y la tradición. La zona se ha convertido en un destino popular para visitantes y para residentes extranjeros. El clima suave y estable ofrece una temperatura media de 30ºC en verano y 14ºC en invierno. Alrededor de 300 días de sol al año.

Para obtener más información, póngase en contacto con BALEARIC PROPERTIES ESTATE AGENTS MALLORCA por correo electrónico o llame a la oficina de Puerto Portals (+34) - Ver más detalles sobre otros Chalets en San Augustin o solicite información para comprar un chalet en San Augustin.

"Balearic Properties ha estado en el sector de inmobiliaria durante muchos años. La sede de la compañía está en Mallorca y con los años, hemos acumulado una incomparable cartera de propiedades para todos los presupuestos, por medio de la cual hemos ayudado con éxito a 10.000 clientes a encontrar su nuevo hogar en las Baleares. Nuestras empresas de gestión de proyectos y construcción ofrecen una gama única de villas ""llave en mano"" lujosas para satisfacer todas las necesidades individuales y personales. También ofrecemos más de 200 villas vacacionales que garantizan a nuestros clientes una experiencia inolvidable.

Balearic Properties es el socio exclusivo de Savills en Mallorca. La empresa ofrece a los clientes una gran experiencia de más de 20 años en el mercado inmobiliario local. Nuestra cartera incluye todo tipo de villas modernas, casas de campo y nuevos desarrollos que están de moda en las mejores zonas de Mallorca. Balearic Properties también se especializa en propiedades de primera linea al mar y grandes propiedades. La empresa ofrece un servicio completo de propiedades que incluye administración de propiedades, alquileres de vacaciones, administración de proyectos y servicios legales."

letzte Änderung

Aufteilung

  • Fläche 1600 m2
Inserat: 47177000000004

Lage

Cala Vinyes

Karte anklicken, um sich darauf zu bewegen
Sollen wir Ihnen mitteilen, wenn ein Inserat wie dieses veröffentlicht wird? Legen Sie Ihre Benachrichtigungen an und wir informieren Sie per E-Mail über neue und geänderte Inserate
 

Kontaktieren Balearic Properties

Referenz der Anzeige habitaclia/SWOCAV0275:

Die Telefonnummer wird angezeigt after sending your contact to the announcer to attend you.
Die Telefonnummer wird nach Kontakt angezeigt
Sending...