Bewertung gespeichert!
Diese Info sehen nur Sie
Kommentar gespeichert!
Fügen Sie eine bewertung bzw. Einen Kommentar zu dieser Anzeige hinzu. Nurfür Sie sichtbar

Haus in carreró 39 in Centre Mataró

Carreró 39

  • 334 m2
  • 5 hab.
  • 3 Badezimmer
  • 1.722 €/m2

Casa en venta en Mataró Oportunidad única casa natal de Puig i Cadafalch

Casa en venta en Mataró
Se pone a la venta una propiedad exclusiva con un inmenso valor histórico y arquitectónico: la casa natal de Josep Puig i Cadafalch, una joya catalogada que conserva el encanto y la esencia del modernismo catalán, existe un volumen anexo al patio, obra de la primera etapa del arquitecto.

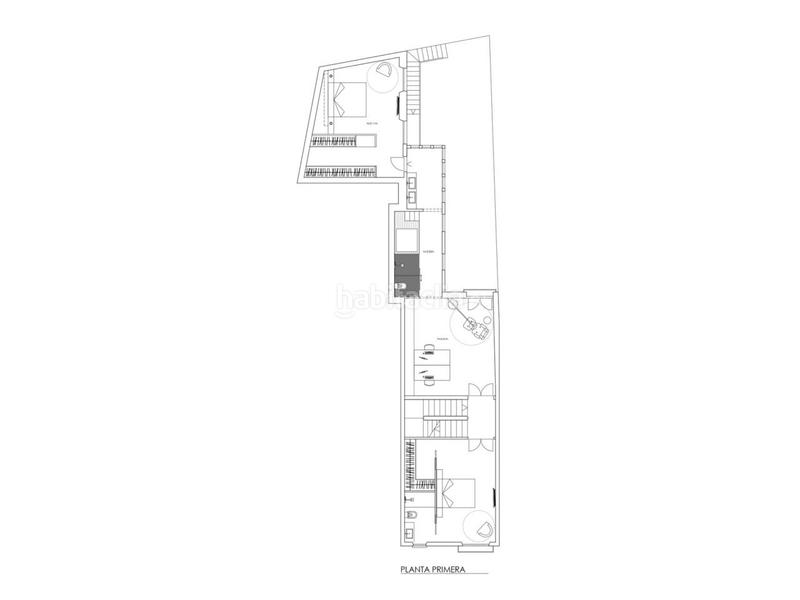
Ubicada en el corazón del casco antiguo de Mataró en una parcela de 169 m², esta casa de cuerpo entre medianeras se distribuye en planta baja, dos plantas piso y un patio trasero, ofreciendo un total de 334 m² construidos. Su valor patrimonial y su diseño original la convierten en una pieza única dentro del panorama arquitectónico.

??? Edificio catalogado, con nivel A de protección urbanística, ideal para uso residencial, institucional o cultural
? Detalles arquitectónicos únicos, con el carácter original de la época
?? Ubicación privilegiada en el centro de Mataró
?? Para actualizar y restaurar, brindando la oportunidad de realzar su esplendor histórico.

Esta es una oportunidad excepcional para inversores, instituciones o amantes del patrimonio que buscan una propiedad con historia y personalidad.

?? Dado el valor arquitectónico y la exclusividad de esta propiedad, las visitas están reservadas para compradores realmente interesados. Para coordinar una visita, requerimos una breve acreditación de interés y capacidad de compra. Si desea más información, estaré encantada de facilitarla tras este proceso. Gracias por su comprensión.

letzte Änderung

Aufteilung

  • 5 Zimmer
  • Fläche 334 m2
  • Gelände 166 m2
  • 3 Badezimmer

Allgemeine Merkmale

  • Baujahr 1716
  • Energieausweis :
    Consumo:
    G
    10 kW h m2 / año
    Emisiones:
    G
    10 kg CO2 m2 / año
Inserat: 47953000000415

Lage

Centre Carreró 39

Karte anklicken, um sich darauf zu bewegen
575.000 € Preis des Inserats
3.009 €/m2€/m2 distrito
1.722 €/m2€/m2 des Inserats
43% billiger als Durchschnitt*
Entwicklung €/m2 der Zone in Mataró (Centre)
Sollen wir Ihnen mitteilen, wenn ein Inserat wie dieses veröffentlicht wird? Legen Sie Ihre Benachrichtigungen an und wir informieren Sie per E-Mail über neue und geänderte Inserate
 

Kontaktieren HABITAT SANT CELONI

Referenz der Anzeige habitaclia/3881:

Die Telefonnummer wird angezeigt after sending your contact to the announcer to attend you.
Die Telefonnummer wird nach Kontakt angezeigt
Sending...