Bewertung gespeichert!
Diese Info sehen nur Sie
Kommentar gespeichert!
Fügen Sie eine bewertung bzw. Einen Kommentar zu dieser Anzeige hinzu. Nurfür Sie sichtbar

Haus in Norte - Barrio del Pilar - El Reñidero Vélez - Málaga

  • 167 m2
  • 2 hab.
  • 1 Badezimmer
  • 1.077 €/m2

Casa en Venta Cerca del Centro en VélezMálaga

¡VENTA!

CASA PARA REFORMAR
PROYECTO DE OBRA Y LICENCIAS LISTAS
CASA CON MUCHAS POSIBILIDADES
167M2 EN TOTAL
MUY CERCA DEL CENTRO
MUY BIEN COMUNICADA

Hoy les traemos este gran proyecto, de hacer el hogar de tus sueños a tu gusto, una increíble vivienda de unos 77m2 y un sótano de unos 90m2. Con la posibilidad de hacerlo a tu gusto, a día de hoy cuenta con permisos y proyecto de ayuntamiento para poder iniciar la construcción para rehabilitar toda la vivienda, además de poder ampliar una planta más, consiguiendo mejores vistas aún.

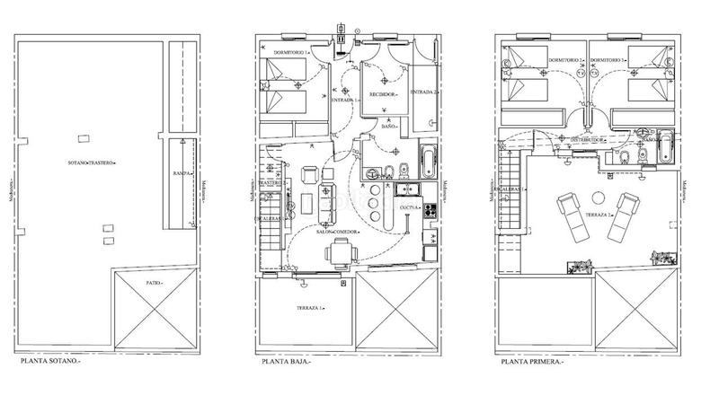
Teniendo en Total según el proyecto 3 plantas:

Planta 1: Sótano de 67m2 con un patio de 12m2

Planta 2: Vivienda de 60m2 con salón comedor, cocina completa, 1 baño, recibidor y 1 dormitorio, todo esto junto a una terraza de 13m2.

Planta 3: Tenemos un distribuidor, 2 dormitorios, un baño completo y una terraza de 31m2. Además de unas espectaculares vistas despejadas de todo Vélez-Málaga.

En total esta vivienda según proyecto tendría 44m2 de terraza para disfrutar del clima de la zona, 12m2 de patio, 67m2 de sótano y 95m2 de vivienda. Con unos 220m2 en total.

Si estás pensando de hacerte la vivienda de tus sueños, un nuevos proyecto, con todas las comodidades cerca, zona tranquila, muy bien comunicado y empezar una nueva vida, este es tu hogar.

LLÁMANOS Y AGENDA TU VISITA PARA TU GRAN PROYECTO!!

Pl. Carmelitas, 5
@mamboinmobiliaria

letzte Änderung

Aufteilung

  • 2 Zimmer
  • Fläche 167 m2
  • 1 Badezimmer

Allgemeine Merkmale

  • Baujahr 1975
  • Energieausweis :
    Consumo:
    G
    999 kW h m2 / año
    Emisiones:
    G
    999 kg CO2 m2 / año
Inserat: 48070000000223

Lage

Norte - Barrio del Pilar - El Reñidero CRUZ CORDERO

Karte anklicken, um sich darauf zu bewegen
179.900 € Preis des Inserats
1.924 €/m2€/m2 población
1.077 €/m2€/m2 des Inserats
44% billiger als Durchschnitt*
Entwicklung €/m2 der Zone in Vélez - Málaga
Sollen wir Ihnen mitteilen, wenn ein Inserat wie dieses veröffentlicht wird? Legen Sie Ihre Benachrichtigungen an und wir informieren Sie per E-Mail über neue und geänderte Inserate
 

Kontaktieren Mambo Inmobiliaria

Referenz der Anzeige habitaclia/1201380:

Die Telefonnummer wird angezeigt after sending your contact to the announcer to attend you.
Die Telefonnummer wird nach Kontakt angezeigt
Sending...