Bewertung gespeichert!
Diese Info sehen nur Sie
Kommentar gespeichert!
Fügen Sie eine bewertung bzw. Einen Kommentar zu dieser Anzeige hinzu. Nurfür Sie sichtbar

Haus mit heizung pool in Desert Spring Golf Cuevas del Almanzora

  • 136 m2
  • 3 hab.
  • 4 Badezimmer
  • 6.434 €/m2

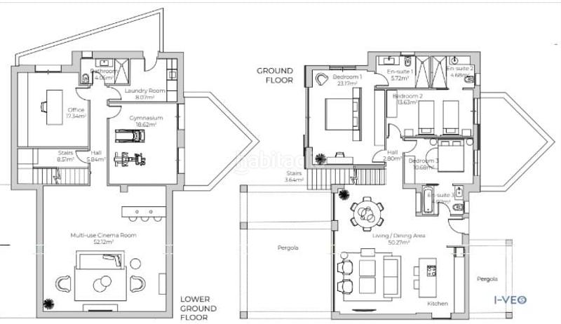
Villa moderna de 3 dormitorios en Desert Springs con vistas al golf, piscina privada, sótano multifuncional y diseño contemporáneo

Descubre esta moderna y elegante villa de 3 dormitorios en Desert Springs, el único resort familiar galardonado de Europa.
Con impresionantes vistas al hoyo 15 del campo de golf Indiana y a las montañas circundantes, esta villa ofrece lujo y confort.

El dormitorio principal, con baño en suite, tiene acceso directo a la amplia veranda y a la piscina privada. Las otras dos habitaciones también cuentan con baño en suite.
En el sótano se encuentran una sala de juegos, un cine, un lavadero, una oficina y un cuarto baño adicional.

La villa incluye un sistema de ventilación mecánica en la planta baja y sótano, paneles fotovoltaicos conectados al acumulador de agua caliente, aire acondicionado frío/calor controlado individualmente, piscina de 8x4m, jardines privados y terrazas sombreadas. Además, dispone de aparcamiento privado y áreas exteriores diseñadas para disfrutar de largos días de verano.

Nota legal: Los gastos notariales, registrales, impuestos (ITP, IVA, AJD) y otros inherentes a la compraventa no están incluidos en el precio.

No esperes más, contacta con nosotros!

letzte Änderung

Aufteilung

  • 3 Zimmer
  • Fläche 136 m2
  • Terrasse 159 m2
  • Gelände 725 m2
  • 4 Badezimmer

Allgemeine Merkmale

  • Heizung
  • Privates Schwimmbad
  • Energieausweis :
    Consumo:
    G
    999 kW h m2 / año
    Emisiones:
    G
    999 kg CO2 m2 / año
Inserat: 26725000000909

Lage

Desert Spring Golf

Karte anklicken, um sich darauf zu bewegen
875.000 € Preis des Inserats
1.835 €/m2€/m2 población
6.434 €/m2€/m2 des Inserats
Entwicklung €/m2 der Zone in Cuevas del Almanzora
Sollen wir Ihnen mitteilen, wenn ein Inserat wie dieses veröffentlicht wird? Legen Sie Ihre Benachrichtigungen an und wir informieren Sie per E-Mail über neue und geänderte Inserate
 

Kontaktieren I-VEO

Referenz der Anzeige habitaclia/IV835:

Die Telefonnummer wird angezeigt after sending your contact to the announcer to attend you.
Die Telefonnummer wird nach Kontakt angezeigt
Sending...