Bewertung gespeichert!
Diese Info sehen nur Sie
Kommentar gespeichert!
Añade tu valoración y/o un comentario para este anuncio. Sólo lo verás tú
Günstiges Angebot 560.000 € Benachrichtigen, wenn sinkt
ist gesunken 5.000 €

Haus in Centre Mataró

Calle BARCELONA

  • 368 m2
  • 7 hab.
  • 3 Badezimmer
  • 1.522 €/m2

Casa y local céntrico en rentabilidad

Coldwell Banker Anteris presenta esta finca centenaria construida en 1885 ubicada en el corazón del centro histórico de Mataró con un total de 368m2 que combina encanto arquitectónico, valor patrimonial y rentabilidad desde el primer día. Ideal para inversores, proyectos turísticos o amantes de la arquitectura con historia.

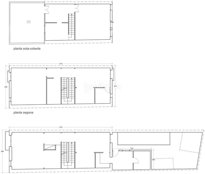
La vivienda, de estilo clásico y rehabilitada en 1995, conserva elementos originales como suelos hidráulicos, vigas de madera y pinturas murales. Se distribuye en tres plantas, consta de 7 habitaciones, 3 baños, estancias amplias, techos altos y mucha luz natural. Incluye terraza privada, estudio exterior, lavadero y trastero.

En planta baja a pie de calle; un local comercial de 130 m2 con patio interior de 42 m2 funciona actualmente como restaurante, con contrato de alquiler activo hasta 2032 y una rentabilidad de hasta el 7 % aproximadamente. La finca cuenta también con licencia turística (HUT) concedida en 2024, lo que amplía su potencial de uso.

Una propiedad única que une historia, carácter y proyección de futuro en una ubicación privilegiada.
Contáctanos y agenda tu visita.

Información al consumidor: El precio de venta no incluye impuestos ni gastos derivados de la compraventa que, conforme a la normativa vigente, corresponden al comprador (ITP o, en su caso, IVA y AJD), así como aranceles notariales y registrales. La información publicada, incluidas las superficies, tiene carácter meramente orientativo y no contractual. La oferta puede estar sujeta a cambios de precio o retirada del mercado sin previo aviso. Los honorarios de intermediación inmobiliaria se aplicarán según el encargo de comercialización suscrito. Se facilitará a toda persona interesada información detallada antes de la entrega de cualquier cantidad a cuenta, conforme a la normativa estatal y autonómica aplicable.

letzte Änderung

Aufteilung

  • 7 Zimmer
  • Fläche 368 m2
  • Gelände 194 m2
  • 3 Badezimmer
  • Abstellraum

Allgemeine Merkmale

  • möbliert
  • In der Nähe von öffentlichen Verkehrsmitteln
  • Energieausweis :
    Consumo:
    G
    339 kW h m2 / año
    Emisiones:
    E
    57 kg CO2 m2 / año
Inserat: 55093000000015

Lage

Centre Calle BARCELONA

Karte anklicken, um sich darauf zu bewegen
560.000 € Preis des Inserats
3.330 €/m2€/m2 distrito
1.522 €/m2€/m2 des Inserats
54% billiger als Durchschnitt*
Entwicklung €/m2 der Zone in Mataró (Centre)
Sollen wir Ihnen mitteilen, wenn ein Inserat wie dieses veröffentlicht wird? Legen Sie Ihre Benachrichtigungen an und wir informieren Sie per E-Mail über neue und geänderte Inserate
 

Kontaktieren Coldwell Banker Anteris

Referenz der Anzeige habitaclia/AV246:

Die Telefonnummer wird angezeigt after sending your contact to the announcer to attend you.
Die Telefonnummer wird nach Kontakt angezeigt
Sending...