Favorito y comentario
Geschäftsraum in La Felguera Langreo
Main characteristics
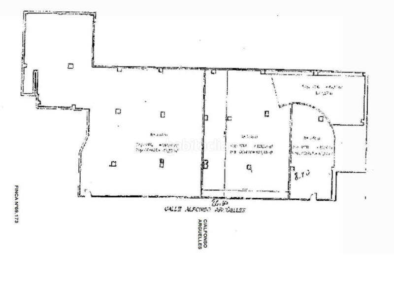
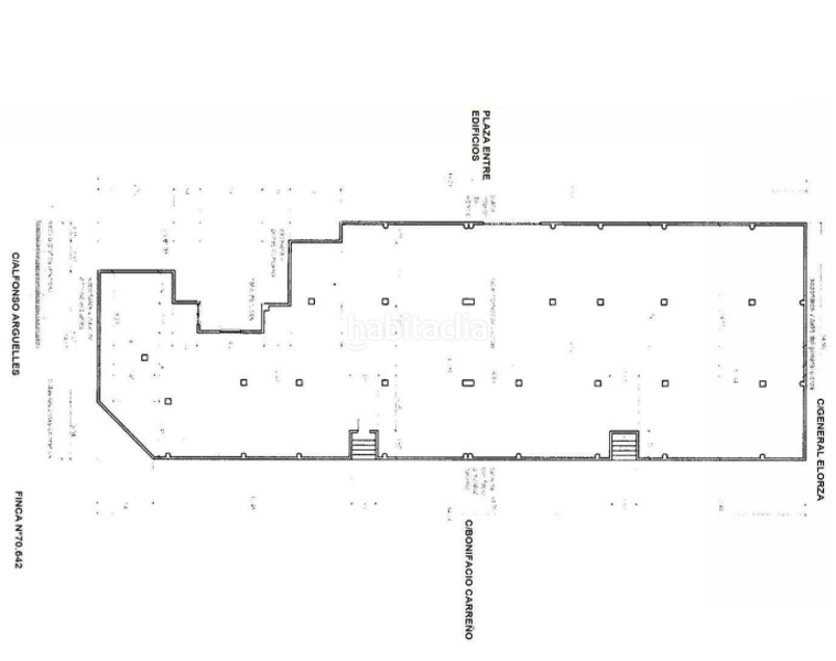
- 587 m2
- 148 €/m2
Detailed information
NO COBRAMOS COMISIÓN DE INTERMEDIACIÓN AL COMPRADOR
Excelente oportunidad de adquirir en propiedad este local comercial con una amplia superficie, ubicado en la localidad de Langreo. Dispone de buenos accesos y está bien comunicado.
Aprovecha las múltiples posibilidades de distribución, adecuación y reforma para configurar tu nuevo negocio en el local que te ofrecemos. Además , por su gran tránsito comercial, visibilidad desde la vía pública y cómodos accesos, lo convierten en perfecto e inigualable en la localidad.
Localizado en zona inmejorable, a tan sólo 2 km del centro de la localidad de Langreo, dónde disponer y disfrutar de todos los servicios y equipamientos ( Hostelería, comercios, supermercados, centros educativos, polideportivo, etc. ) . Local comercial en bruto, por lo tanto es adaptable a multitud de usos ( restaurantes, tiendas, centros deportivos, etc.).
Por sus posibilidades de distribución, visibilidad y tránsito comercial ; lo convierten en perfecto para el desarrollo de tu idea de nuevo negocio.
Zona de mucho tránsito y de alto interés comercial, junto al Parque Antonio García Lago y multitud de comercios.Perfectamente comunicado por la AS-1 y cercano al núcleo de la población dónde disfrutar de todos los servicios. Junto al río Nalón y a tan sólo 25 minutos de Gijón.
Por lo tanto, el local comercial tiene cercanos todos los servicios, equipamientos y atractivos necesarios para una gran afluencia de clientes. Empieza ya tu idea de emprendimiento.
No lo dudes, invertir en el local que te ofrecemos será una apuesta segura.
Hipoges es una plataforma inmobiliaria donde podrás acceder a miles de activos inmobiliarios de diferentes tipos como viviendas, locales comerciales, terrenos, nueva obra... tanto a nivel particular como para inversores. Hipoges cuenta con una amplia cartera de activos inmuebles tanto en España como en Portugal y Grecia.
¿Necesitas financiación? Te ofrecemos la posibilidad de financiaciones de hasta el 100% para la compra de este inmueble. Entra en Finanwin.com, haz tu simulación y obtén la mejor oferta para tu Hipoteca de la manera más ágil y sencilla.
letzte Änderung
Aufteilung
- Fläche 587 m2
Allgemeine Merkmale
- Befreit
Gallery
Lage
La Felguera ALFONSO ARGUELLES
