Bewertung gespeichert!
Diese Info sehen nur Sie
Kommentar gespeichert!
Fügen Sie eine bewertung bzw. Einen Kommentar zu dieser Anzeige hinzu. Nurfür Sie sichtbar

Etagenwohnung 253m2 in rúa colón 22 in Centro - Areal Vigo

  • von 253 m2
  • 3 hab.
  • 3 Badezimmer
  • 4.941 €/m2
COLON 22
Teil des Neubauprojekts

COLON 22

Esta promoción tiene 4 tipos de wohnungen Projekt anzeigen

"PROMOCIÓN EXCLUSIVA EN EL DISTRITO CENTRO
6 Viviendas de Alto Standing en un Edificio Emblemático de Estilo Neoclásico
En el corazón histórico y vibrante de Vigo, en una de sus calles más representativas, se alza un edificio singular de arquitectura neoclásica proyectado por Jenaro de la Fuente en 1912 y que ha sido testigo del paso del tiempo y la evolución de la ciudad. Hoy, este inmueble, cuidadosamente rehabilitado, se transforma para ofrecer una promoción irrepetible de tan solo 6 viviendas de alto standing, concebidas para quienes buscan lo extraordinario.
Esta promoción parte de un concepto claro: respetar la esencia arquitectónica original del edificio, valorando su identidad y carácter, y dotarlo a la vez de las más altas prestaciones del siglo XXI. El resultado es una fusión perfecta entre clasicismo y vanguardia, donde cada detalle ha sido proyectado para ofrecer una experiencia de vida única, elegante y sofisticada.
Las viviendas, todas diferentes y cuidadosamente diseñadas, destacan por sus techos altos, espacios generosos, y una cuidada distribución que privilegia la luz natural, la funcionalidad y el confort. El respeto por la arquitectura tradicional se traduce en elementos restaurados como molduras, balcones de hierro forjado o grandes ventanales, que conviven con materiales y tecnologías de última generación."

letzte Änderung

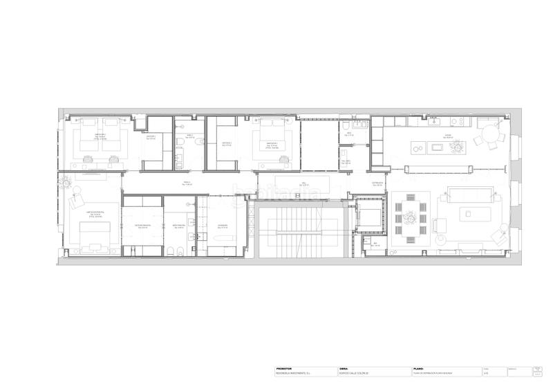
Aufteilung

  • 3 Zimmer
  • Fläche 253 m2
  • 3 Badezimmer
  • Küche mit Essplatz

Allgemeine Merkmale

  • Heizung
  • Ohne parkplatz
  • Ohne klimaanlage
  • Nummer des Stockwerks 2
  • Energieausweis :
    Consumo:
    G
    999 kW h m2 / año
    Emisiones:
    G
    999 kg CO2 m2 / año

Gemeinschaftlich genutzte Austattung

  • Fahrstuhl
Inserat: 34046000000386

Lage

Centro - Areal Rúa Colón 22

Karte anklicken, um sich darauf zu bewegen
1.250.000 € Preis des Inserats
2.933 €/m2€/m2 distrito
4.941 €/m2€/m2 des Inserats
Entwicklung €/m2 der Zone in Vigo (Centro Urbano)
Sollen wir Ihnen mitteilen, wenn ein Inserat wie dieses veröffentlicht wird? Legen Sie Ihre Benachrichtigungen an und wir informieren Sie per E-Mail über neue und geänderte Inserate
 

Teil des Neubauprojekts COLON 22

Vigo - Rúa Colón, 22
Promoción COLON 22 Vigo - Rúa Colón, 22 von 975.000 € Projekt anzeigen
Andere Wohnungen dieses Projekts

Kontaktieren Faramon Real Estate

Referenz der Anzeige habitaclia/2º:

Die Telefonnummer wird angezeigt after sending your contact to the announcer to attend you.
Die Telefonnummer wird nach Kontakt angezeigt
Sending...